SD
The Parish Meeting Rooms, West End, Ashton Hayes, Chester CH3 8DG
By SDL Property Auctions
£ 90,000
Reviews
2 out of 5 stars
SDL Property Auctions says ..
For sale on 25 September 2025 Our national property auction will be broadcast online with live auctioneers. To bid by proxy, online, or by phone, please submit your registration form no later than 5pm the day before the auction. The auction will commence at 10:00.
Property Oracle says ..
Therefore, we give this property 4 / 10. *Disclaimer: This is our option and does constitute a recommendation or financial advice. Do your own research. *
- Price
- 8
- Condition
- 3
- Location
- 7
- Land
- 1
- Bedrooms
- 0
- Bathrooms
- 0
- Sqft (est)
- 646.16
The heatmap indicates the level of crime in the area. The color of the heatmap indicates the crime severity and recency.
Metrics Year-on-Year
- Average area value
- 756,250.00 £Increased by 54.84 %
- Est sale value
- 611,913.52 £Increased by 264.23 %
- Average area rental value
- 1,450.00 £/moIncreased by 11.54 %
- Est letting value
- 646.16 £/mo
- Est rental Yield
- 2.30 %Decreased by 27.90 %
- Crime Rate
- 29.00 %Unchanged by 0.00 %
from 488,411.00 £
from 168,001.60 £
from 1,300.00 £/mo
from 0.00 £/mo
from 3.19 %
from 29.00 %
Agent Activity
SDL Property Auctions created the listing.
Nearby Schools
| Name | Type | Ofsted | Distance |
|---|---|---|---|
| Ashton Hayes Primary School | Community School | Good | 0.61 KM |
| Kelsall Primary And Nursery School | Academy Converter | 3.58 KM | |
| Tarvin Primary School | Academy Converter | 3.78 KM | |
| Imap Centre | Other Independent Special School | Good | 4.86 KM |
| Alvanley And Manley Village School | Community School | Good | 4.88 KM |
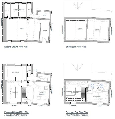
Images
Nearby Streets
| Name | Average Price | Average Sqft | Distance |
|---|---|---|---|
| Ashton Lane | £ 550,000 | 0 | 0.00 KM |
| Shay Lane | £ 0 | 0 | 0.00 KM |
| Willow Hayes | £ 0 | 0 | 0.00 KM |
Nearby Transport
| Name | NLC | TLC | Distance |
|---|---|---|---|
| Mouldsworth | 2158 | MLD | 2.06 KM |
| Helsby | 2149 | HSB | 6.95 KM |
| Delamere | 2306 | DLM | 8.76 KM |
| Frodsham | 2284 | FRD | 8.93 KM |
Nearby Listings
| Address | Price | Type | Score | Distance |
|---|---|---|---|---|
| The Parish Meeting Rooms, West End, Ashton Hayes, Chester CH3 8DG | £ 90,000 | BUY | 4 / 10 | 0.00 KM |
| Peel Hall Lane, Ashton Hayes, CH3 | £ 230,000 | BUY | 5 / 10 | 0.03 KM |
| Peel Hall Lane, Ashton Hayes, Chester, Cheshire, CH3 | £ 260,000 | BUY | Unknown | 0.04 KM |
| West End, CHESTER, Cheshire, CH3 | £ 425,000 | BUY | 6 / 10 | 0.11 KM |
| Peel Crescent, Ashton Hayes, CH3 | £ 350,000 | BUY | 7 / 10 | 0.11 KM |
Nearby Properties
| Address | Price | Distance |
|---|---|---|
| 36 Peel Crescent | £ 246,000 | 0.09 KM |
| 32 Peel Crescent | £ 210,000 | 0.09 KM |
| 22 Peel Crescent | £ 280,000 | 0.09 KM |
| 20 Peel Crescent | £ 277,500 | 0.09 KM |
| 8 Peel Crescent | £ 210,000 | 0.09 KM |