Gray Street, York
PR

Gray Street, York

By Prime Residential

£ 425,000

Reviews

3 out of 5 stars

Prime Residential says ..

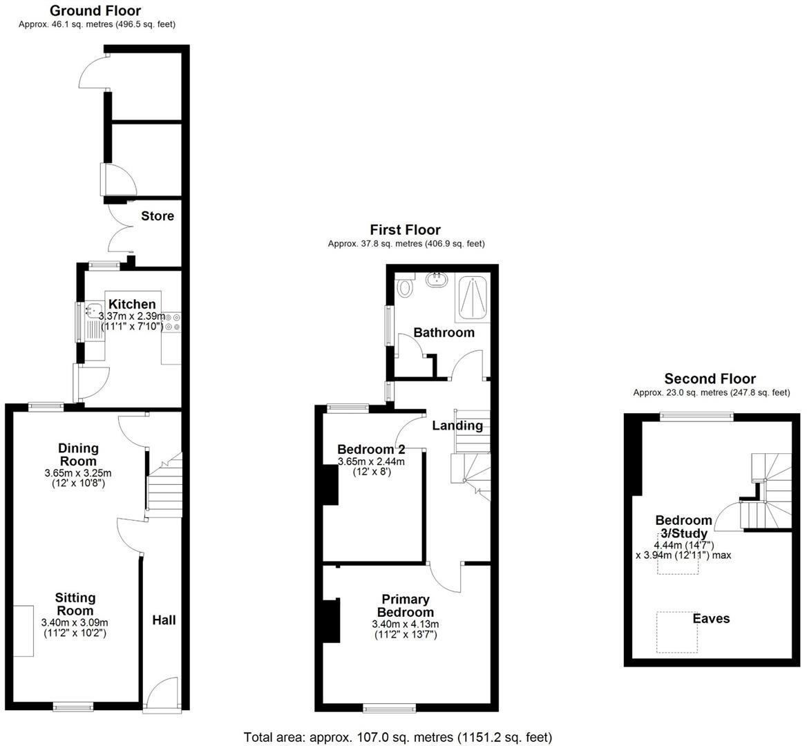
This stylish 3 bedroom home is ideally positioned on Gray Street, a quiet, no through road, adjacent to Scarcroft park and close to all the amenities of 'Bishy Road' VIEWINGS COMMENCE FRIDAY 21 NOVEMBER Accommodation comprises:- Entrance hall, double reception room, kitchen,...

Property Oracle says ..

The terraced property at Gray Street, York, offers a blend of traditional charm and modern updates. Its location in the Micklegate area provides convenient access to local amenities, schools, and transportation. The interior of the property appears to be well-maintained, with a modern kitchen and bathroom. While the outdoor space is limited, it provides a private area. The price is reasonable compared to the average price per square foot in the area, making it an attractive option for potential buyers.

Therefore, we give this property 6 / 10. *Disclaimer: This is our option and does constitute a recommendation or financial advice. Do your own research. *

Price
7
Condition
7
Location
8
Land
5
Bedrooms
3
Bathrooms
1
Sqft (est)
1,151.74

The heatmap indicates the level of crime in the area. The color of the heatmap indicates the crime severity and recency.

Metrics Year-on-Year

Average area value
542,496.00 £
Increased by 34.28 %
from 404,000.00 £
Est sale value
481,427.32 £
Increased by 33.55 %
from 360,494.62 £
Average area rental value
1,435.00 £/mo
Increased by 6.30 %
from 1,350.00 £/mo
Est letting value
1,151.74 £/mo
Unchanged by 0.00 %
from 1,151.74 £/mo
Est rental Yield
3.17 %
Decreased by 20.95 %
from 4.01 %
Crime Rate
12.00 %
Unchanged by 0.00 %
from 12.00 %

Agent Activity

  • Prime Residential created the listing.

Nearby Schools

NameTypeOfstedDistance
Scarcroft Primary SchoolAcademy Converter0.10 KM
Millthorpe SchoolAcademy ConverterGood0.38 KM
Knavesmire Children'S CentreChildren's Centre0.88 KM
Knavesmire Primary SchoolAcademy Converter0.88 KM
The Mount School (York)Other Independent School0.92 KM

Images

38-DJI_20251112124645_0332_D-HDR-Edit.jpg 4-_DSC5936-HDR.jpg 30-_DSC5960.jpg 31-_DSC5961.jpg 36-_DSC5969.jpg 6-_DSC5942-HDR.jpg 9-_DSC5954-HDR.jpg 35-_DSC5968.jpg 5-_DSC5939-HDR.jpg 7-_DSC5948-HDR.jpg 22-_DSC6007-HDR.jpg 37-_DSC6011.jpg 14-_DSC5980-HDR.jpg 18-_DSC5995-HDR.jpg 19-_DSC5998-HDR.jpg 15-_DSC5983-HDR.jpg 17-_DSC5992-HDR.jpg 24-_DSC6017-HDR.jpg 23-_DSC6014-HDR.jpg 26-_DSC6023-HDR-Edit.jpg 28-_DSC6029-HDR-Edit.jpg 40-DJI_20251112124723_0342_D-HDR-Edit.jpg

Nearby Streets

NameAverage PriceAverage SqftDistance
Nunnery Lane £ 000.00 KM
Drake Street £ 180,00000.00 KM
Trinity Court £ 282,50000.00 KM
Barker Lane £ 2,950,00000.00 KM
Riverside Lodge £ 000.00 KM

Nearby Transport

NameNLCTLCDistance
York8263YRK0.78 KM
Poppleton8254POP7.06 KM

Nearby Listings

AddressPriceTypeScoreDistance
Gray Street, York £ 425,000BUY6 / 100.00 KM
Gray Street, Scarcroft Road, York £ 395,000BUY6 / 100.01 KM
Gray Street, York, YO23 £ 350,000BUYUnknown0.01 KM
13 Gray Street, York £ 365,000BUY7 / 100.02 KM
Upper Price Street, York, YO23 £ 575,000BUY7 / 100.06 KM

Nearby Properties

AddressPriceDistance
4 Gray Street £ 250,0000.01 KM
8 Gray Street £ 388,0000.01 KM
15 Gray Street £ 230,0000.01 KM
2 Gray Street £ 280,0000.01 KM
6 Gray Street £ 270,5000.01 KM