Rhode, Bridgwater, Somerset, TA5
By Greenslade Taylor Hunt
£ 250,000
Reviews
3 out of 5 stars
Greenslade Taylor Hunt says ..
A semi-detached cottage situated in a semi-rural location with off-road parking and a good sized garden. No onward chain.
Property Oracle says ..
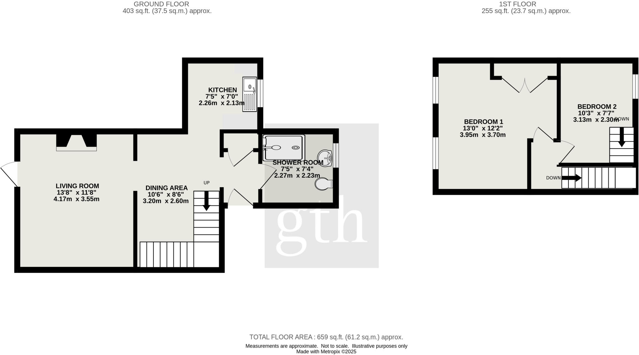
The property is a 2 bedroom semi-detached house located in Rhode Lane, North Petherton, Somerset. It is listed at £250,000 and has 658.75 sqft of living space. The property includes a garden. The property appears to be in reasonable condition. While some modernisation may be desirable, it does not appear to be in need of significant repair or renovation. The kitchen and bathroom appear functional, although a modern update might increase the property’s value. The location in North Petherton offers proximity to several schools, with St Mary’s Voluntary Controlled Church of England Primary School, Haygrove School, and North Petherton Primary School all within a reasonable distance. The proximity to Bridgwater provides access to transportation links via Great Western Railway. The availability of local amenities in North Petherton would need further investigation. Considering the average house price in the area is £330,826 and the average price per sqft is £310, the listed price of £250,000 for this 658.75 sqft property seems relatively low. However, the smaller size and possibly the need for some modernisation could justify this lower price point compared to larger, more modern properties in the area. Further analysis of comparable properties in the immediate vicinity would be beneficial to confirm this assessment. The lack of plot size data makes it difficult to fully assess the value, as this is a significant factor in property pricing.
Therefore, we give this property 6 / 10. *Disclaimer: This is our option and does constitute a recommendation or financial advice. Do your own research. *
- Price
- 6
- Condition
- 7
- Location
- 7
- Land
- 5
- Bedrooms
- 2
- Bathrooms
- 1
- Sqft (est)
- 658.75
The heatmap indicates the level of crime in the area. The color of the heatmap indicates the crime severity and recency.
Metrics Year-on-Year
- Average area value
- 317,492.00 £Decreased by 9.44 %
- Est sale value
- 155,465.00 £Decreased by 15.71 %
- Average area rental value
- 1,550.00 £/moIncreased by 15.07 %
- Est letting value
- 658.75 £/moUnchanged by 0.00 %
- Est rental Yield
- 5.86 %Increased by 27.11 %
- Crime Rate
- 0.00 %
Agent Activity
Greenslade Taylor Hunt created the listing.
Nearby Schools
| Name | Type | Ofsted | Distance |
|---|---|---|---|
| St Mary'S Voluntary Controlled Church Of England Primary School | Voluntary Controlled School | Good | 2.43 KM |
| Haygrove School | Academy Converter | Good | 2.57 KM |
| North Petherton Primary School | Community School | Good | 3.08 KM |
| Wembdon St George'S Church School | Academy Sponsor Led | 3.31 KM | |
| Petherton Park School | Other Independent Special School | Requires improvement | 3.38 KM |
Images
Nearby Streets
| Name | Average Price | Average Sqft | Distance |
|---|---|---|---|
| Cornflower Close | £ 0 | 0 | 0.00 KM |
| Daffodil Place | £ 0 | 0 | 0.00 KM |
Nearby Transport
| Name | NLC | TLC | Distance |
|---|---|---|---|
| Bridgwater | 3449 | BWT | 5.73 KM |
Nearby Listings
| Address | Price | Type | Score | Distance |
|---|---|---|---|---|
| Rhode, Bridgwater, Somerset, TA5 | £ 250,000 | BUY | 6 / 10 | 0.00 KM |
| Chantry Barn, Bridgwater, Somerset, TA5 | £ 350,000 | BUY | Unknown | 0.16 KM |
| Rhode, Bridgwater, Somerset, TA5 | £ 725,000 | BUY | 7 / 10 | 0.22 KM |
| Rhode, Bridgwater, Somerset, TA5 | £ 400,000 | BUY | 7 / 10 | 0.22 KM |
| Huntstile, Goathurst, Bridgwater, TA5 | £ 1,999,995 | BUY | Unknown | 1.57 KM |
Nearby Properties
| Address | Price | Distance |
|---|---|---|
| 1 Bells Cottage | £ 235,000 | 1.36 KM |
| 2 Bells Cottage | £ 365,000 | 1.36 KM |
| 28 Huntstile | £ 160,000 | 1.52 KM |
| Wagon House | £ 487,500 | 1.68 KM |
| 2 Enmore Road | £ 94,950 | 1.68 KM |