Midway Road, Midway, Swadlincote, DE11
By Newton Fallowell
£ 280,000
Reviews
3 out of 5 stars
Newton Fallowell says ..
Newton Fallowell are pleased the be able to offer for sale this immaculately presented three bedroomed semi detached home on a prominent road in Midway. The property is finished to an extremely high standard and has an abundance of traditional features. The single storey extension ...
Property Oracle says ..
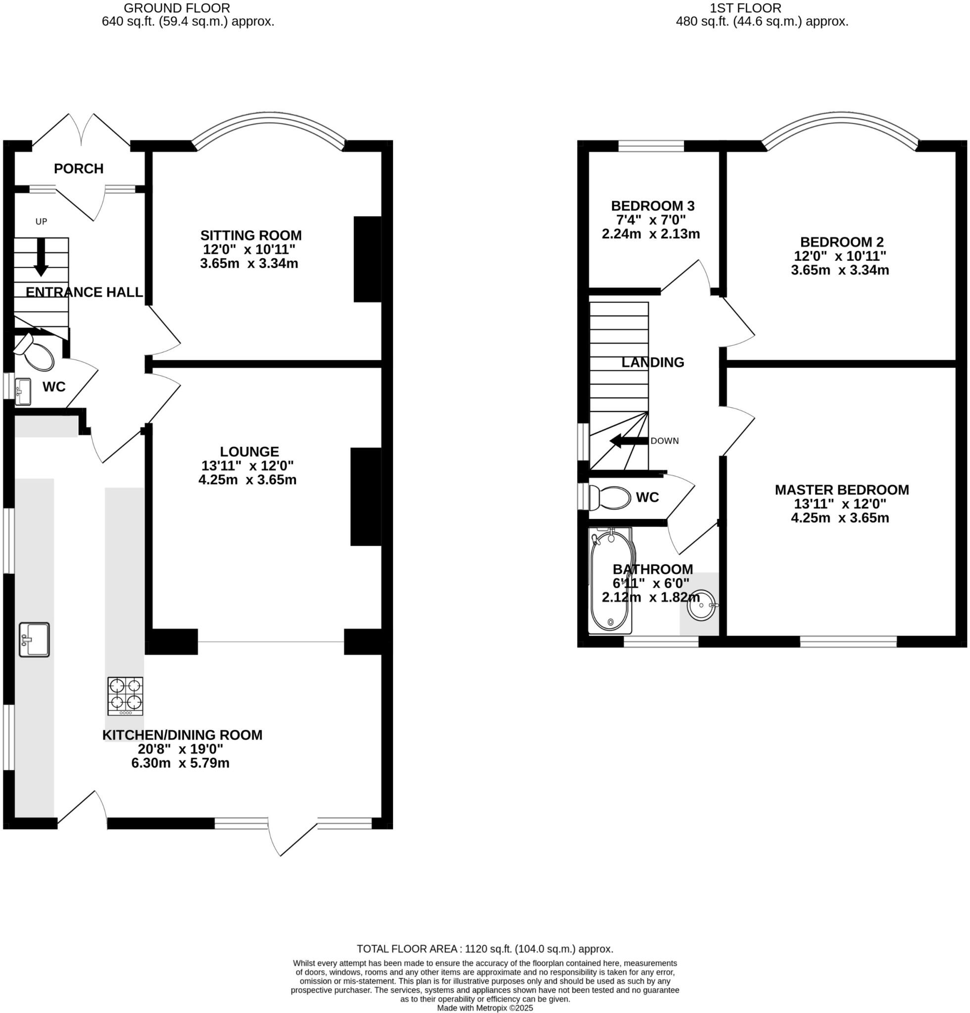
The property is a 3-bedroom semi-detached house located on Midway Road in Midway, Swadlincote, Derbyshire. The list price is £280,000. The property appears to be in good condition, with a recently modernised kitchen and bathrooms. The images show a well-maintained interior and exterior, including a garden. The property benefits from a good-sized garden, with a patio area and pergola. There is also off-street parking. Midway is a residential area located close to Swadlincote. Several primary schools are within a reasonable distance, including Belmont Primary School and Eureka Primary School, both rated \‘Good\’ by Ofsted. Willington train station is approximately 8.39km away, providing access to East Midlands Railway services. The proximity to schools and transport links makes the location reasonably convenient. Considering the average house price in the area is £283,676 and the average price per square foot is £258, the list price of £280,000 for this 1,120 sq ft property seems reasonable, particularly given its condition, garden and parking. The property is similar in size and price to other nearby properties.
Therefore, we give this property 7 / 10. *Disclaimer: This is our option and does constitute a recommendation or financial advice. Do your own research. *
- Price
- 7
- Condition
- 8
- Location
- 7
- Land
- 7
- Bedrooms
- 3
- Bathrooms
- 1
- Sqft (est)
- 1,120.00
The heatmap indicates the level of crime in the area. The color of the heatmap indicates the crime severity and recency.
Metrics Year-on-Year
- Average area value
- 228,750.00 £Decreased by 3.14 %
- Est sale value
- 360,640.00 £Increased by 22.90 %
- Average area rental value
- 1,395.00 £/moIncreased by 46.84 %
- Est letting value
- 1,120.00 £/moUnchanged by 0.00 %
- Est rental Yield
- 7.32 %Increased by 51.55 %
- Crime Rate
- 4.00 %Unchanged by 0.00 %
Agent Activity
Newton Fallowell created the listing.
Nearby Schools
| Name | Type | Ofsted | Distance |
|---|---|---|---|
| Belmont Primary School | Foundation School | Good | 0.41 KM |
| Springfield Junior School | Academy Sponsor Led | 0.68 KM | |
| Eureka Primary School | Community School | Good | 0.97 KM |
| St Edward'S Catholic Academy | Academy Sponsor Led | Good | 1.06 KM |
| Elmsleigh Infant & Nursery School | Academy Converter | 1.06 KM |
Images
Nearby Streets
| Name | Average Price | Average Sqft | Distance |
|---|---|---|---|
| Browning Road | £ 230,000 | 0 | 0.00 KM |
| Wordsworth Avenue | £ 0 | 0 | 0.00 KM |
| Hamilton Grove | £ 699,000 | 0 | 0.00 KM |
| Keats Drive | £ 195,000 | 0 | 0.00 KM |
| Ely Close | £ 0 | 0 | 0.00 KM |
Nearby Transport
| Name | NLC | TLC | Distance |
|---|---|---|---|
| Willington | 1905 | WIL | 8.39 KM |
Nearby Listings
| Address | Price | Type | Score | Distance |
|---|---|---|---|---|
| Midway Road, Swadlincote, DE11 | £ 280,000 | BUY | Unknown | 0.00 KM |
| Midway Road, Midway, Swadlincote, DE11 | £ 280,000 | BUY | 7 / 10 | 0.00 KM |
| Midway Road, Midway, Swadlincote, DE11 | £ 280,000 | BUY | Unknown | 0.00 KM |
| Midway Road, Swadlincote, DE11 | £ 160,000 | BUY | 7 / 10 | 0.13 KM |
| Midway Road, Swadlincote, DE11 | £ 160,000 | BUY | 7 / 10 | 0.13 KM |
Nearby Properties
| Address | Price | Distance |
|---|---|---|
| 44 Midway Road | £ 180,000 | 0.00 KM |
| 28 Midway Road | £ 150,000 | 0.00 KM |
| 31 Midway Road | £ 290,000 | 0.00 KM |
| 20 Midway Road | £ 175,000 | 0.00 KM |
| 41 Midway Road | £ 260,000 | 0.00 KM |