Chancellors says ..
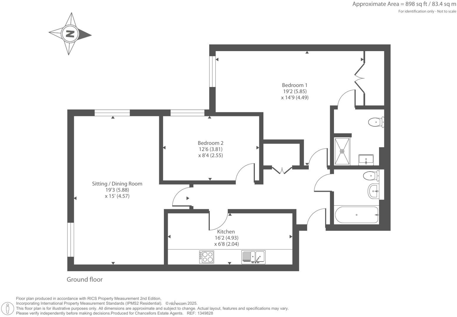
Located in the heart of Abingdon, this well-presented two-bedroom first floor apartment offers modern living within the highly regarded Quakers Court development.
Property Oracle says ..
Therefore, we give this property 6 / 10. *Disclaimer: This is our option and does constitute a recommendation or financial advice. Do your own research. *
- Price
- 9
- Condition
- 8
- Location
- 7
- Land
- 1
- Bedrooms
- 2
- Bathrooms
- 1
- Sqft (est)
- 784.37
The heatmap indicates the level of crime in the area. The color of the heatmap indicates the crime severity and recency.
Metrics Year-on-Year
- Average area value
- 383,375.00 £Increased by 1.32 %
- Est sale value
- 584,355.65 £Increased by 100.81 %
- Average area rental value
- 1,869.00 £/moIncreased by 43.00 %
- Est letting value
- 2,353.11 £/moIncreased by 200.00 %
- Est rental Yield
- 5.85 %Increased by 41.30 %
- Crime Rate
- 55.00 %Unchanged by 0.00 %
from 378,393.00 £
from 291,001.27 £
from 1,307.00 £/mo
from 784.37 £/mo
from 4.14 %
from 55.00 %
Agent Activity
Chancellors created the listing.
Nearby Schools
| Name | Type | Ofsted | Distance |
|---|---|---|---|
| Our Lady'S Abingdon | Other Independent School | 0.51 KM | |
| Abingdon Children And Family Centre | Children's Centre | 0.69 KM | |
| St Nicolas Church Of England Primary School, Abingdon | Voluntary Controlled School | Good | 0.72 KM |
| St Edmund'S Catholic Primary School | Voluntary Aided School | Good | 0.83 KM |
| Dunmore Primary School | Community School | Good | 0.97 KM |
Images
Nearby Streets
| Name | Average Price | Average Sqft | Distance |
|---|---|---|---|
| Old Station Yard | £ 625,000 | 0 | 0.00 KM |
| Sutton Close | £ 0 | 0 | 0.00 KM |
| Aston Close | £ 675,000 | 0 | 0.00 KM |
| The Square | £ 235,000 | 0 | 0.00 KM |
| Gosling Court | £ 350,000 | 0 | 0.00 KM |
Nearby Transport
| Name | NLC | TLC | Distance |
|---|---|---|---|
| Radley | 3118 | RAD | 4.57 KM |
| Culham | 3107 | CUM | 5.20 KM |
| Appleford | 3109 | APF | 5.53 KM |
| Didcot Parkway | 3030 | DID | 7.98 KM |
| Oxford | 3115 | OXF | 9.05 KM |
Nearby Listings
| Address | Price | Type | Score | Distance |
|---|---|---|---|---|
| Abingdon, Oxfordshire, OX14 | £ 325,000 | BUY | 6 / 10 | 0.00 KM |
| Quakers Court, Abingdon, OX14 | £ 235,000 | BUY | 7 / 10 | 0.03 KM |
| Quakers Court, Abingdon, OX14 | £ 230,000 | BUY | 5 / 10 | 0.03 KM |
| Quakers Court, Abingdon, OX14 | £ 275,000 | BUY | Unknown | 0.03 KM |
| Quakers Court, Abingdon, Oxfordshire, OX14 | £ 275,000 | BUY | 6 / 10 | 0.04 KM |
Nearby Properties
| Address | Price | Distance |
|---|---|---|
| 47 Quakers Court | £ 224,950 | 0.02 KM |
| 28 Quakers Court | £ 255,000 | 0.02 KM |
| 50 Quakers Court | £ 184,950 | 0.02 KM |
| 34 Quakers Court | £ 270,000 | 0.02 KM |
| 45 Quakers Court | £ 234,950 | 0.02 KM |