Julian Marks says ..
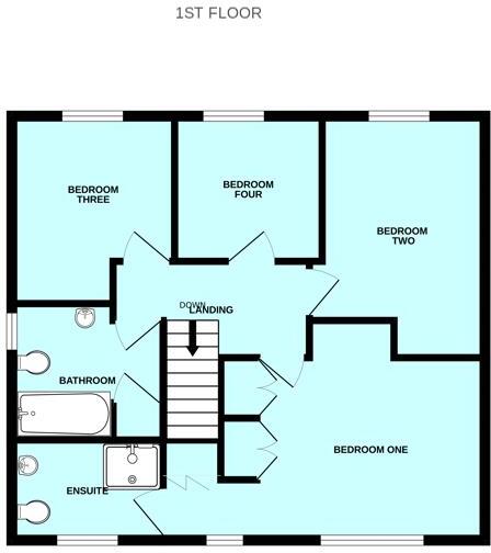
Nicely-positioned modern detached house situated in this highly sought-after location. The accommodation briefly comprises an entrance hall, lounge, separate dining room, kitchen, separate utility, ground floor study & downstairs cloakroom/wc. A first floor landing provides access to 4 bedrooms, ...
Property Oracle says ..
Location: The property is located in Plymstock, Plymouth, which is a desirable area in Devon. The proximity to several good-rated schools (Oreston Community Academy, Plymstock School, Hooe Primary Academy, and Goosewell Primary Academy all rated ‘Good’ by Ofsted) is a significant positive for families. The presence of nearby transportation links (Great Western Railway stations within a reasonable distance) adds to the convenience of the location. While specific distances to shops and other amenities are not provided, the overall impression is one of a reasonably convenient and family-friendly location.
Condition: Based on the provided images, the property appears to be in good condition. The interior is clean, modern, and well-maintained. There is no visible evidence of significant wear and tear or the need for major renovations. The exterior also presents well, with a neat garden and well-maintained landscaping.
Land: The property includes a garden, which is a desirable feature, especially for families. The size of the garden is not specified, but the images suggest a reasonably sized space for outdoor activities.
Price: The list price of £425,000 is above the average price for the area (£301,788). However, the average price per square foot is not a reliable indicator given the missing square footage data for the subject property and the nearby listings. The property is a detached house, and comparable nearby detached properties are listed at prices ranging from £235,000 to £345,000. The higher end of this range suggests that the list price of £425,000 might be slightly on the high side, but not unreasonably so, especially considering the apparent good condition of the property and presence of a garden. More information on the square footage would allow for a more precise assessment of value.
Therefore, we give this property 7 / 10. *Disclaimer: This is our option and does constitute a recommendation or financial advice. Do your own research. *
- Price
- 7
- Condition
- 9
- Location
- 8
- Land
- 7
- Bedrooms
- 4
- Bathrooms
- 2
The heatmap indicates the level of crime in the area. The color of the heatmap indicates the crime severity and recency.
Metrics Year-on-Year
- Average area value
- 339,996.00 £Increased by 4.84 %
- Average area rental value
- 1,581.00 £/moIncreased by 51.87 %
- Est rental Yield
- 5.58 %Increased by 44.94 %
- Crime Rate
- 1.00 %Unchanged by 0.00 %
Agent Activity
Julian Marks created the listing.
Nearby Schools
| Name | Type | Ofsted | Distance |
|---|---|---|---|
| Oreston Community Academy | Academy Converter | Good | 1.33 KM |
| Plymstock School | Academy Converter | Good | 1.49 KM |
| Pomphlett Primary School | Academy Converter | 1.55 KM | |
| Hooe Primary Academy | Academy Converter | Good | 1.58 KM |
| Goosewell Primary Academy | Academy Sponsor Led | Good | 1.60 KM |
Images
Nearby Streets
| Name | Average Price | Average Sqft | Distance |
|---|---|---|---|
| Paddock Close | £ 0 | 0 | 0.00 KM |
| Meadow Park | £ 0 | 0 | 0.00 KM |
| Moor View | £ 0 | 0 | 0.00 KM |
| Houldsworth Road | £ 300,000 | 0 | 0.00 KM |
| Sunnyside | £ 0 | 0 | 0.00 KM |
Nearby Transport
| Name | NLC | TLC | Distance |
|---|---|---|---|
| Plymouth | 3580 | PLY | 5.73 KM |
| Devonport | 3579 | DPT | 8.53 KM |
| Dockyard (Devonport) | 3588 | DOC | 9.21 KM |
| Keyham | 3571 | KEY | 9.92 KM |
Nearby Listings
| Address | Price | Type | Score | Distance |
|---|---|---|---|---|
| Plymstock, Plymouth | £ 425,000 | BUY | 7 / 10 | 0.00 KM |
| Green Park Road, Plymstock | £ 390,000 | BUY | Unknown | 0.08 KM |
| Green Park Road, Plymstock | £ 375,000 | BUY | 7 / 10 | 0.13 KM |
| Plymstock, Plymouth | £ 475,000 | BUY | 7 / 10 | 0.14 KM |
| White Lady Road, Plymstock, Plymouth. | £ 535,000 | BUY | 6 / 10 | 0.21 KM |
Nearby Properties
| Address | Price | Distance |
|---|---|---|
| 48 Mitchell Close | £ 235,000 | 0.01 KM |
| 64 Mitchell Close | £ 330,000 | 0.01 KM |
| 6 Mitchell Close | £ 345,000 | 0.01 KM |
| 62 Mitchell Close | £ 315,000 | 0.01 KM |
| 46 Mitchell Close | £ 239,995 | 0.01 KM |