JA
Molesey Road, Hersham
By James Neave - The Estate Agent
£ 250,000
Reviews
3 out of 5 stars
James Neave - The Estate Agent says ..
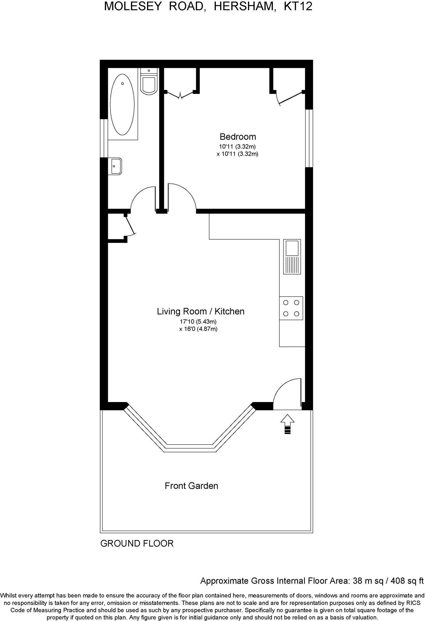
For sale with no onward chain, a stylish one-bedroom ground floor maisonette with allocated parking and low running costs. Converted in 2015, the property features modern finishes throughout and has been well maintained. The open-plan living room and kitchen create a bright and sociable space...
Property Oracle says ..
Therefore, we give this property 7 / 10. *Disclaimer: This is our option and does constitute a recommendation or financial advice. Do your own research. *
- Price
- 8
- Condition
- 8
- Location
- 7
- Land
- 5
- Bedrooms
- 1
- Bathrooms
- 1
- Sqft (est)
- 409.03
The heatmap indicates the level of crime in the area. The color of the heatmap indicates the crime severity and recency.
Metrics Year-on-Year
- Average area value
- 1,532,000.00 £Increased by 47.20 %
- Est sale value
- 651,993.82 £Increased by 112.53 %
- Average area rental value
- 4,103.00 £/moIncreased by 15.06 %
- Est letting value
- 1,636.12 £/moIncreased by 100.00 %
- Est rental Yield
- 3.21 %Decreased by 21.90 %
- Crime Rate
- 10.00 %Unchanged by 0.00 %
from 1,040,775.00 £
from 306,772.50 £
from 3,566.00 £/mo
from 818.06 £/mo
from 4.11 %
from 10.00 %
Agent Activity
James Neave - The Estate Agent created the listing.
Nearby Schools
| Name | Type | Ofsted | Distance |
|---|---|---|---|
| North East Surrey Secondary Short Stay School | Pupil Referral Unit | Good | 0.27 KM |
| Cardinal Newman Catholic Primary School | Academy Converter | Good | 0.50 KM |
| Bell Farm Primary School | Community School | Good | 0.67 KM |
| Burhill Sure Start Children'S Centre | Children's Centre | 0.73 KM | |
| Burhill Primary School | Foundation School | Good | 0.80 KM |
Images
Nearby Streets
| Name | Average Price | Average Sqft | Distance |
|---|---|---|---|
| Heathfield Road | £ 0 | 0 | 0.00 KM |
| Faulkner's Road | £ 0 | 0 | 0.00 KM |
| Willow House | £ 2,495,000 | 0 | 0.00 KM |
| Tudor Drive | £ 0 | 0 | 0.00 KM |
| Cleveland Close | £ 0 | 0 | 0.00 KM |
Nearby Transport
| Name | NLC | TLC | Distance |
|---|---|---|---|
| Hersham | 5590 | HER | 0.91 KM |
| Walton-On-Thames | 5575 | WAL | 2.20 KM |
| Esher | 5558 | ESH | 4.72 KM |
| Oxshott | 5602 | OXS | 5.21 KM |
| Claygate | 5556 | CLG | 5.26 KM |
Nearby Listings
| Address | Price | Type | Score | Distance |
|---|---|---|---|---|
| Molesey Road, Hersham | £ 250,000 | BUY | 7 / 10 | 0.00 KM |
| Molesey Road, Hersham, Surrey, KT12 | £ 290,000 | BUY | 8 / 10 | 0.01 KM |
| Homefield Road, Walton-on-Thames, Surrey, KT12 | £ 545,000 | BUY | Unknown | 0.09 KM |
| Molesey Road, Hersham, KT12 | £ 250,000 | BUY | Unknown | 0.10 KM |
| Rydens Grove, Hersham, KT12 | £ 547,500 | BUY | 7 / 10 | 0.12 KM |
Nearby Properties
| Address | Price | Distance |
|---|---|---|
| 150 Molesey Road | £ 475,000 | 0.01 KM |
| 148 Molesey Road | £ 425,000 | 0.01 KM |
| 108 Molesey Road | £ 650,000 | 0.01 KM |
| 132 Molesey Road | £ 458,000 | 0.01 KM |
| 136 Molesey Road | £ 350,000 | 0.01 KM |