AN
Trafford Road, Alderley Edge
By Andrew J Nowell
£ 595,000
Reviews
3 out of 5 stars
Andrew J Nowell says ..
An immaculately presented detached residence situated in heart of Alderley Edge village within easy walking distance of shops, leisure, transport and other facilities. The Toll House is a unique Grade II Listed detached home, steeped in local history. Having been professionally restored ...
Property Oracle says ..
Therefore, we give this property 7 / 10. *Disclaimer: This is our option and does constitute a recommendation or financial advice. Do your own research. *
- Price
- 7
- Condition
- 9
- Location
- 8
- Land
- 7
- Bedrooms
- 3
- Bathrooms
- 1
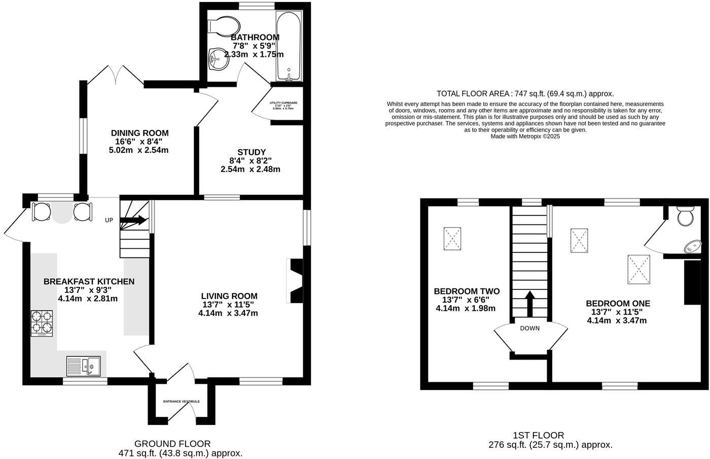
- Sqft (est)
- 779.58
The heatmap indicates the level of crime in the area. The color of the heatmap indicates the crime severity and recency.
Metrics Year-on-Year
- Average area value
- 430,000.00 £Decreased by 45.17 %
- Est sale value
- 240,110.64 £Decreased by 45.87 %
- Average area rental value
- 4,000.00 £/moIncreased by 70.00 %
- Est letting value
- 1,559.16 £/moIncreased by 100.00 %
- Est rental Yield
- 11.16 %Increased by 210.00 %
- Crime Rate
- 23.00 %Unchanged by 0.00 %
from 784,260.00 £
from 443,581.02 £
from 2,353.00 £/mo
from 779.58 £/mo
from 3.60 %
from 23.00 %
Agent Activity
Andrew J Nowell created the listing.
Nearby Schools
| Name | Type | Ofsted | Distance |
|---|---|---|---|
| Alderley Edge School For Girls | Other Independent School | 0.68 KM | |
| Alderley Edge Community Primary School | Community School | Outstanding | 0.81 KM |
| The Ryleys School | Other Independent School | 1.20 KM | |
| Nether Alderley Primary School | Academy Converter | Good | 1.78 KM |
| Wilmslow High School | Community School | Good | 2.27 KM |
Images
Nearby Streets
| Name | Average Price | Average Sqft | Distance |
|---|---|---|---|
| Greystoke Drive | £ 0 | 0 | 0.00 KM |
| West Bank | £ 0 | 0 | 0.00 KM |
| Orme Street | £ 350,000 | 0 | 0.00 KM |
| Marlborough Avenue | £ 1,000,000 | 0 | 0.00 KM |
| Congleton Close | £ 0 | 0 | 0.00 KM |
Nearby Transport
| Name | NLC | TLC | Distance |
|---|---|---|---|
| Alderley Edge | 2760 | ALD | 0.47 KM |
| Wilmslow | 2774 | WML | 2.86 KM |
| Styal | 2868 | SYA | 5.22 KM |
| Handforth | 2767 | HTH | 5.39 KM |
| Chelford (Cheshire) | 2764 | CEL | 6.33 KM |
Nearby Listings
| Address | Price | Type | Score | Distance |
|---|---|---|---|---|
| Trafford Road, Alderley Edge | £ 595,000 | BUY | 7 / 10 | 0.00 KM |
| Moss Lane, Alderley Edge | £ 1,150,000 | BUY | 9 / 10 | 0.06 KM |
| Clifton Street, Alderley Edge | £ 615,000 | BUY | 7 / 10 | 0.10 KM |
| Trafford Road, Alderley Edge, SK9 | £ 1,000,000 | BUY | 8 / 10 | 0.10 KM |
| Orchard Green, Alderley Edge | £ 535,000 | BUY | 7 / 10 | 0.12 KM |
Nearby Properties
| Address | Price | Distance |
|---|---|---|
| 35 Trafford Road | £ 570,000 | 0.04 KM |
| 37 Trafford Road | £ 449,119 | 0.04 KM |
| 41 Trafford Road | £ 725,000 | 0.04 KM |
| 34 Trafford Road | £ 1,175,000 | 0.09 KM |
| 19 Trafford Road | £ 950,000 | 0.09 KM |