Princess Street, Abertillery, Gwent, Blaenau Gwent, NP13
By Cariad Property
£ 114,995
Reviews
3 out of 5 stars
Cariad Property says ..
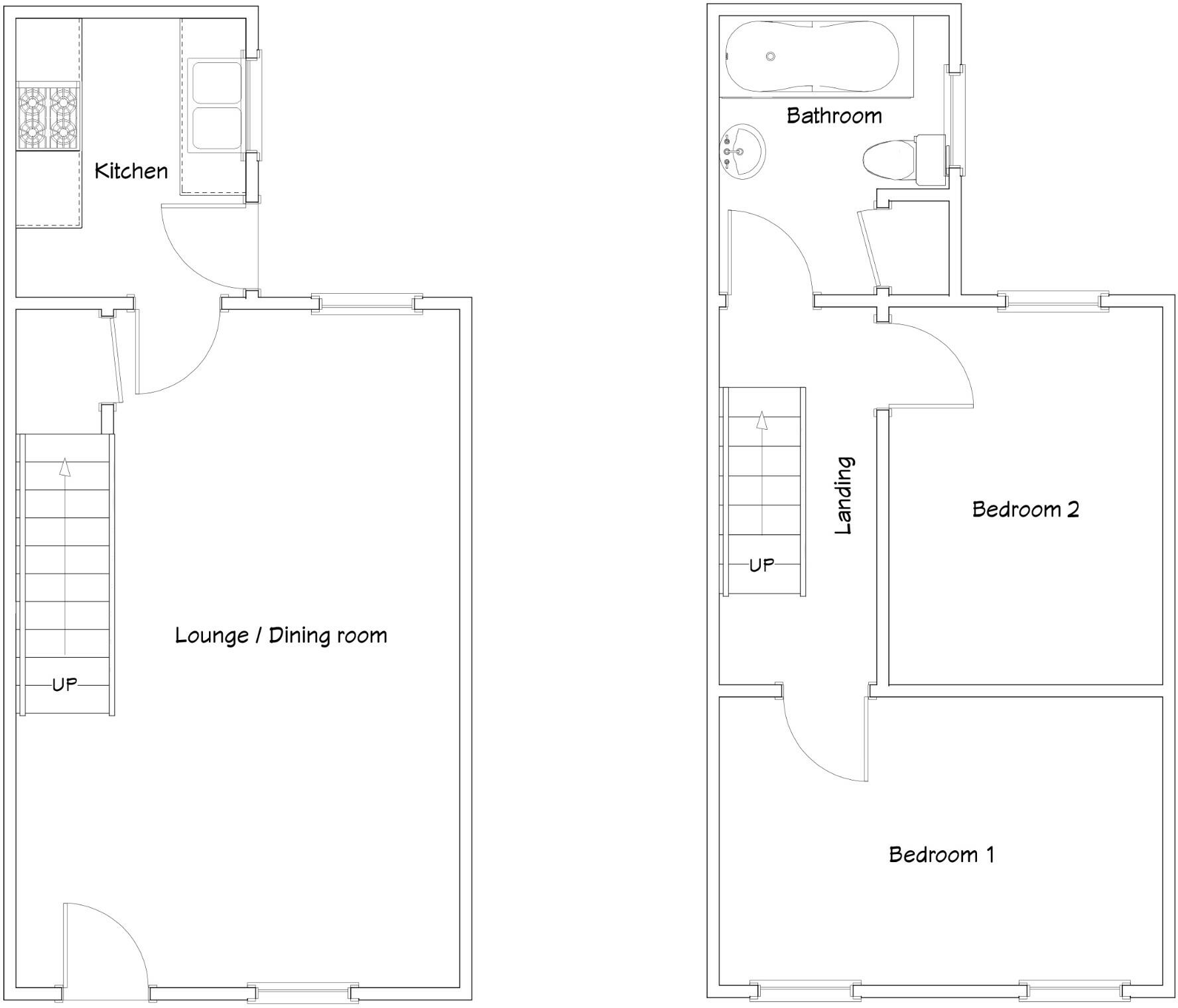
Beautiful, traditional property, super modern inside, refurbished throughout, new kitchen, first floor bathroom, and furnishings. Two double bedrooms, front and rear garden, no chain.
Property Oracle says ..
This 2-bedroom, 1-bathroom terraced house in Abertillery, Blaenau Gwent, is presented as a recently refurbished property. The photos reveal a modern interior with a new kitchen, bathroom, and flooring. The exterior is a traditional stone-fronted terrace, seemingly well-maintained. The property boasts a small paved rear garden/patio area, offering some outdoor space. The listing price of £114,995 seems competitive compared to other similar properties on Princess Street and neighboring streets. However, there is not enough information to draw a decisive conclusion on the property’s value. The property is within reasonable proximity to Abertillery’s amenities and benefits from relatively close rail connections, although the specifics of nearby schools and the overall desirability of the Abertillery location may vary based on individual preferences. More information on the property’s structural condition, plot size, and detailed school ratings would allow for a more comprehensive evaluation. The absence of square footage data for comparable properties makes a definitive price-per-square-foot analysis impossible. Further investigation may be necessary to fully assess its value and potential investment worth. The house appears suitable for first-time buyers or as a buy-to-let investment, particularly given the low average rental price for comparable properties in the area.
Therefore, we give this property 6 / 10. *Disclaimer: This is our option and does constitute a recommendation or financial advice. Do your own research. *
- Price
- 7
- Condition
- 8
- Location
- 6
- Land
- 3
- Bedrooms
- 2
- Bathrooms
- 1
- Sqft (est)
- 818.81
The heatmap indicates the level of crime in the area. The color of the heatmap indicates the crime severity and recency.
Metrics Year-on-Year
- Average area value
- 300,000.00 £Decreased by 22.28 %
- Est sale value
- 346,356.63 £Decreased by 3.86 %
- Average area rental value
- 1,073.00 £/moDecreased by 13.47 %
- Est letting value
- 818.81 £/moUnchanged by 0.00 %
- Est rental Yield
- 4.29 %Increased by 11.43 %
- Crime Rate
- 25.00 %Unchanged by 0.00 %
Agent Activity
Cariad Property marked this listing as sold.
Cariad Property created the listing.
Nearby Schools
| Name | Type | Ofsted | Distance |
|---|---|---|---|
| Trinant Primary School | Welsh Establishment | 3.73 KM | |
| St Illtyd'S | Welsh Establishment | 4.81 KM | |
| Ystruth Primary | Welsh Establishment | 5.00 KM | |
| Sofrydd C.P. School | Welsh Establishment | 5.07 KM | |
| Crumlin High Level Primary School | Welsh Establishment | 5.87 KM |
Images
Nearby Streets
| Name | Average Price | Average Sqft | Distance |
|---|---|---|---|
| Duke Street | £ 95,000 | 0 | 0.00 KM |
| Melbourne Road | £ 0 | 0 | 0.00 KM |
| Princess Street | £ 100,712 | 0 | 0.00 KM |
| Darren Road | £ 150,000 | 0 | 0.00 KM |
| Heolgerrig | £ 160,000 | 0 | 0.00 KM |
Nearby Transport
| Name | NLC | TLC | Distance |
|---|---|---|---|
| Llanhilleth | 9916 | LTH | 3.14 KM |
| Newbridge | 9919 | NBE | 7.06 KM |
| Ebbw Vale Parkway | 9915 | EBV | 7.85 KM |
| Ebbw Vale Town | 3628 | EBB | 9.54 KM |
Nearby Listings
| Address | Price | Type | Score | Distance |
|---|---|---|---|---|
| Princess Street, Abertillery, Gwent, Blaenau Gwent, NP13 | £ 114,995 | BUY | 6 / 10 | 0.00 KM |
| Princess Street, Abertillery | £ 100,000 | BUY | Unknown | 0.02 KM |
| Princess Street, Abertillery | £ 130,000 | BUY | 6 / 10 | 0.03 KM |
| Princess Street, Abertillery | £ 80,000 | BUY | 6 / 10 | 0.05 KM |
| The Willows, Abertillery | £ 430,000 | BUY | 7 / 10 | 0.06 KM |
Nearby Properties
| Address | Price | Distance |
|---|---|---|
| 69 Princess Street | £ 50,000 | 0.00 KM |
| 43 Princess Street | £ 40,000 | 0.00 KM |
| 19 Princess Street | £ 89,995 | 0.00 KM |
| 97 Princess Street | £ 64,000 | 0.00 KM |
| 55 Princess Street | £ 66,000 | 0.00 KM |