Harrow View, Harrow
BR

Harrow View, Harrow

By Brian Cox

£ 1,300,000

Reviews

4 out of 5 stars

Brian Cox says ..

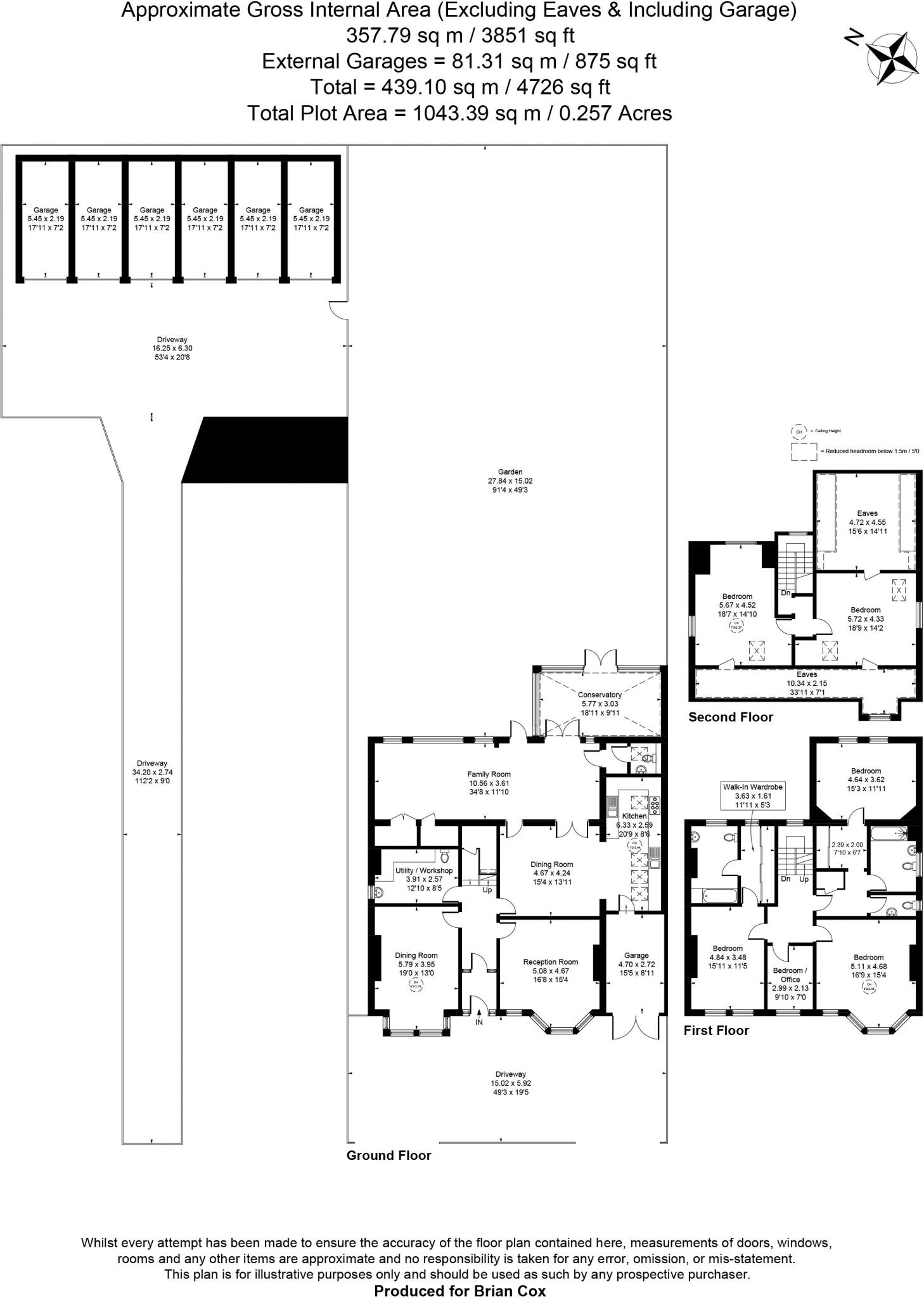
SIX BEDROOMS - FOUR RECEPTION ROOMS - TWO BATHROOMS - DOWNSTAIRS W/C - UTILITY ROOM - CARRIAGE DRIVEWAY. Welcome to this stunning detached family home in the heart of Harrow, North West London. Boasting 6 bedrooms, including a luxurious master bedroom with en-suite and walk-in wardrobe, this p...

Property Oracle says ..

The property is a 6 bedroom detached house located in Harrow View, Harrow, Greater London. It has a list price of £1,300,000, and a plot size of 11,230.96 sqft. The property is situated within easy reach of several transport links including Harrow-on-the-Hill and Harrow & Wealdstone underground stations, both approximately 1km away. There are also several primary and secondary schools nearby, with Marlborough Primary School being the closest at 0.37km and rated as ‘Outstanding’ by Ofsted.

The property itself appears to be a period property, showing traditional features but with some evidence of modernisation. The images show a well-maintained garden, suggesting a good land score. The interior images show a mix of updated and original features, with some rooms appearing more modern than others. The overall condition of the property seems to be good, although some minor updates might enhance its value.

Considering the average house price in the area is £334,550 and the average price per sqft is £328, this property, at £1,300,000 and 10,869.72 sqft, is significantly more expensive. However, the considerably larger plot size and the number of bedrooms (6) compared to the average in the area justify the higher price. The property’s proximity to good schools and transport links also contributes to its value.

Therefore, we give this property 8 / 10. *Disclaimer: This is our option and does constitute a recommendation or financial advice. Do your own research. *

Price
7
Condition
8
Location
9
Land
9
Bedrooms
6
Bathrooms
2
Sqft (est)
10,869.72
Lot (est)
11,230.96

The heatmap indicates the level of crime in the area. The color of the heatmap indicates the crime severity and recency.

Metrics Year-on-Year

Average area value
439,857.00 £
Decreased by 2.67 %
from 451,914.00 £
Est sale value
7,760,980.08 £
Increased by 34.21 %
from 5,782,691.04 £
Average area rental value
2,319.00 £/mo
Increased by 18.98 %
from 1,949.00 £/mo
Est letting value
32,609.16 £/mo
Increased by 50.00 %
from 21,739.44 £/mo
Est rental Yield
6.33 %
Increased by 22.20 %
from 5.18 %
Crime Rate
5.00 %
Unchanged by 0.00 %
from 5.00 %

Agent Activity

  • Brian Cox created the listing.

Nearby Schools

NameTypeOfstedDistance
Marlborough Primary SchoolCommunity SchoolOutstanding0.37 KM
Norbury SchoolCommunity SchoolGood0.45 KM
Alpha Preparatory SchoolOther Independent School0.81 KM
Nisai Virtual Academy LtdSpecial Post 16 Institution0.82 KM
The Jubilee AcademyFree Schools Alternative ProvisionGood0.92 KM

Images

Photo 37 Photo 39 Photo 8 Photo 6 Photo 4 Photo 12 Photo 16 Photo 14 Photo 27 Photo 23 Photo 9 Photo 10 Photo 11 Photo 15 Photo 17 Photo 7 Photo 18 Photo 19 Photo 20 Photo 21 Photo 22 Photo 24 Photo 25 Photo 26 Photo 28 Photo 30 Photo 31 Photo 33 Photo 36 Photo 5 Photo 3 Photo 2 Photo 38 Photo 29 Photo 32 Photo 34 Photo 35

Nearby Streets

NameAverage PriceAverage SqftDistance
Byron Road £ 000.00 KM
Grafton Road £ 360,00000.00 KM
Clarendon Road £ 000.00 KM
Barratt Way £ 000.00 KM
Milton Road £ 000.00 KM

Nearby Transport

NameNLCTLCDistance
Harrow-On-The-Hill598HOH1.01 KM
Harrow And Wealdstone1397HRW1.03 KM
Headstone Lane1434HDL2.42 KM
Kenton1399KNT2.85 KM
Sudbury Hill Harrow1484SDH3.24 KM

Nearby Listings

AddressPriceTypeScoreDistance
Harrow View, Harrow £ 1,300,000BUY8 / 100.00 KM
Harrow View, Harrow On The Hill, HA1 £ 325,000BUY7 / 100.05 KM
Radnor Road, Harrow, HA1 £ 500,000BUYUnknown0.07 KM
Radnor Road, Harrow £ 425,000BUY6 / 100.07 KM
Harrow View, HA1 1RQ £ 325,000BUY6 / 100.07 KM

Nearby Properties

AddressPriceDistance
75b Harrow View £ 300,0000.01 KM
55 Harrow View £ 470,0000.01 KM
49 Harrow View £ 650,0000.01 KM
61a Harrow View £ 148,5000.01 KM
75a Harrow View £ 291,0000.01 KM