Buck Street, Worcester WR2 5LL
By Platinum Property Support Ltd
£ 240,000
Reviews
3 out of 5 stars
Platinum Property Support Ltd says ..
Don't miss this opportunity to own a spacious 4-bedroom semi-detached house in Worcester, featuring two reception areas, a back garden, and student let potential, just a short walk from the University of Worcester Arena.
Property Oracle says ..
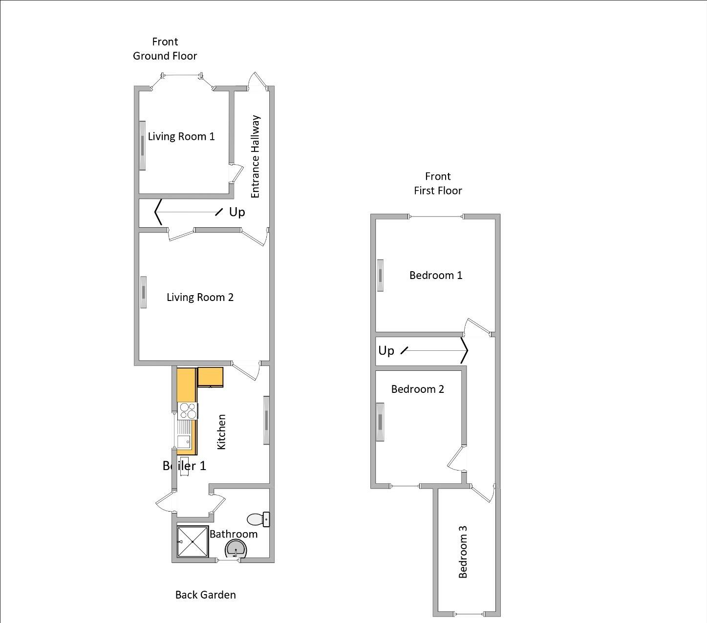
This property is a four-bedroom semi-detached house located on Buck Street in Worcester. The location is reasonably convenient, with several primary schools within a kilometer and train stations within a few kilometers. The property itself appears to be in good condition based on the provided images; it seems recently renovated or well-maintained, with modern flooring and updated kitchen appliances. The lack of information on plot size makes it difficult to assess the land aspect accurately. However, the images show a small yard. Considering the average price per square foot in the area is £305, and this property is listed at £240,000 with 755 sqft, it appears to be priced competitively, slightly below the average price for the area. However, the average house size is significantly larger than this property. More information on the plot size would be helpful in providing a more comprehensive analysis.
Therefore, we give this property 6 / 10. *Disclaimer: This is our option and does constitute a recommendation or financial advice. Do your own research. *
- Price
- 7
- Condition
- 8
- Location
- 7
- Land
- 3
- Bedrooms
- 4
- Bathrooms
- 1
- Sqft (est)
- 755.00
The heatmap indicates the level of crime in the area. The color of the heatmap indicates the crime severity and recency.
Metrics Year-on-Year
- Average area value
- 323,333.00 £Decreased by 1.15 %
- Est sale value
- 209,135.00 £Decreased by 7.05 %
- Average area rental value
- 627.00 £/moDecreased by 17.93 %
- Est letting value
- 0.00 £/mo
- Est rental Yield
- 2.33 %Decreased by 16.79 %
- Crime Rate
- 7.00 %Unchanged by 0.00 %
Agent Activity
Platinum Property Support Ltd created the listing.
Nearby Schools
| Name | Type | Ofsted | Distance |
|---|---|---|---|
| Our Lady Queen Of Peace Catholic Primary | Voluntary Aided School | Good | 0.68 KM |
| Perryfields Primary Pupil Referral Unit | Pupil Referral Unit | Outstanding | 0.69 KM |
| St Clement'S Cofe Primary | Academy Converter | 0.74 KM | |
| Oldbury Park Primary Rsa Academy | Academy Converter | 0.76 KM | |
| University Of Worcester | Higher Education Institutions | 0.79 KM |
Images
Nearby Streets
| Name | Average Price | Average Sqft | Distance |
|---|---|---|---|
| Graham Road | £ 197,500 | 0 | 0.00 KM |
| Barn Close | £ 0 | 0 | 0.00 KM |
| Holywell Hill | £ 0 | 0 | 0.00 KM |
| Pearman Walk | £ 0 | 0 | 0.00 KM |
| Alexander Road | £ 0 | 0 | 0.00 KM |
Nearby Transport
| Name | NLC | TLC | Distance |
|---|---|---|---|
| Worcester Foregate Street | 4893 | WOF | 2.28 KM |
| Worcester Shrub Hill | 4891 | WOS | 3.60 KM |
| Worcestershire Parkway | 6580 | WOP | 9.80 KM |
Nearby Listings
| Address | Price | Type | Score | Distance |
|---|---|---|---|---|
| Buck Street, Worcester WR2 5LL | £ 240,000 | BUY | 6 / 10 | 0.00 KM |
| Buck Street, Worcester, Worcestershire, WR2 | £ 260,000 | BUY | Unknown | 0.01 KM |
| Buck Street, Worcester, Worcestershire. | £ 240,000 | BUY | 6 / 10 | 0.03 KM |
| Rowley Hill Street, Worcester | £ 270,000 | BUY | 7 / 10 | 0.04 KM |
| Rowley Hill Street, WR2 | £ 235,000 | BUY | 6 / 10 | 0.05 KM |
Nearby Properties
| Address | Price | Distance |
|---|---|---|
| 1a Buck Street | £ 177,500 | 0.01 KM |
| 2b Buck Street | £ 125,000 | 0.01 KM |
| 3 Buck Street | £ 119,495 | 0.01 KM |
| 1 Buck Street | £ 162,000 | 0.01 KM |
| 8 Buck Street | £ 187,500 | 0.01 KM |