Chertsey, Surrey, KT16
Hodders logo

Chertsey, Surrey, KT16

By Hodders

£ 600,000

Reviews

4 out of 5 stars

Hodders says ..

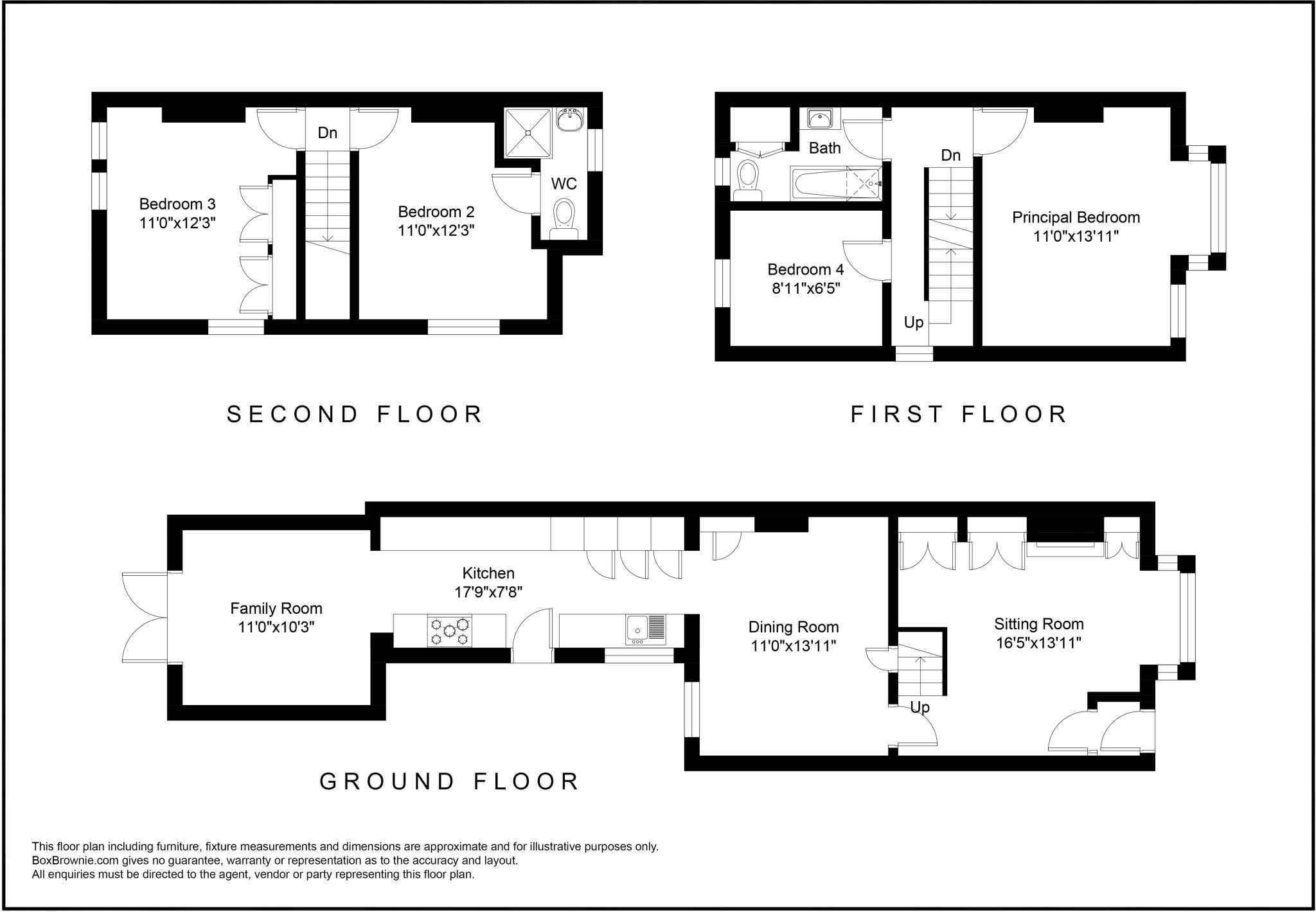
This stunning four-bedroom semi-detached home has been beautifully updated by the current owners, blending timeless period character with modern family living. Arranged over three spacious floors, the property features generous rooms with high ceilings, a charming sitting room with a feature fire...

Property Oracle says ..

This property is a 4-bedroom, 2-bathroom semi-detached house located in Chertsey, Surrey. The property is presented in excellent condition and has undergone a tasteful modernisation. The kitchen and bathrooms have been recently updated to a high standard. The property benefits from a good-sized rear garden. The location is desirable, with good access to local schools and transport links. The asking price of £600,000 is in line with comparable properties in the area, considering the condition and location.

Therefore, we give this property 8 / 10. *Disclaimer: This is our option and does constitute a recommendation or financial advice. Do your own research. *

Price
8
Condition
9
Location
8
Land
7
Bedrooms
4
Bathrooms
2
Sqft (est)
1,096.33

The heatmap indicates the level of crime in the area. The color of the heatmap indicates the crime severity and recency.

Metrics Year-on-Year

Average area value
651,238.00 £
Increased by 36.68 %
from 476,465.00 £
Est sale value
1,123,738.25 £
Increased by 103.78 %
from 551,453.99 £
Average area rental value
2,117.00 £/mo
Increased by 31.57 %
from 1,609.00 £/mo
Est letting value
3,288.99 £/mo
Increased by 200.00 %
from 1,096.33 £/mo
Est rental Yield
3.90 %
Decreased by 3.70 %
from 4.05 %
Crime Rate
9.00 %
Unchanged by 0.00 %
from 9.00 %

Agent Activity

  • Hodders created the listing.

Nearby Schools

NameTypeOfstedDistance
Stepgates Community SchoolCommunity SchoolGood0.53 KM
Chertsey High SchoolFree Schools0.62 KM
Philip Southcote SchoolCommunity Special SchoolGood0.80 KM
St Anne'S Catholic Primary SchoolAcademy ConverterGood0.87 KM
St George'S College WeybridgeOther Independent School1.98 KM

Images

Picture No. 25 1285116 (2).JPG 1285116 (3).JPG 1285116 (4).JPG 1285116 (9).JPG 1285116 (10).JPG 1285116 (16).JPG 1285116 (17).JPG 1285116 (12).JPG 1285116 (21).JPG 1285116 (22).JPG 1285116 (7).JPG 1285116 (8).JPG 1285116 (11).JPG 1285116 (15).JPG 1285116 (18).JPG 1285116 (5).JPG 1285116 (6).JPG 1285116 (13).JPG 1285116 (14).JPG

Nearby Streets

NameAverage PriceAverage SqftDistance
Foxglove Close £ 474,97500.00 KM
Ford Road £ 275,00000.00 KM
Ford Road £ 000.00 KM
Chertsey Bridge £ 000.00 KM
Abbeyfields £ 205,00000.00 KM

Nearby Transport

NameNLCTLCDistance
Chertsey5553CHY1.80 KM
Addlestone5550ASN1.97 KM
Byfleet And New Haw5689BFN4.50 KM
Weybridge5577WYB4.91 KM
Staines5670SNS5.02 KM

Nearby Listings

AddressPriceTypeScoreDistance
Abbey Road, Chertsey, Surrey, KT16 £ 500,000BUY7 / 100.00 KM
Chertsey, Surrey, KT16 £ 600,000BUY8 / 100.00 KM
Chertsey, Surrey, KT16 £ 675,000BUY8 / 100.00 KM
Chertsey, Surrey, KT16 £ 439,950BUY6 / 100.07 KM
Mead Lane, Chertsey, KT16 £ 550,000BUY6 / 100.08 KM

Nearby Properties

AddressPriceDistance
66 Abbey Road £ 760,0000.00 KM
53 Abbey Road £ 475,0000.00 KM
57 Abbey Road £ 400,0000.00 KM
46 Abbey Road £ 210,0000.00 KM
67 Abbey Road £ 464,0000.00 KM