Copplehouse Lane, Liverpool, L10
By FREYJA NORTH LIMITED
£ 150,000
Reviews
2 out of 5 stars
FREYJA NORTH LIMITED says ..
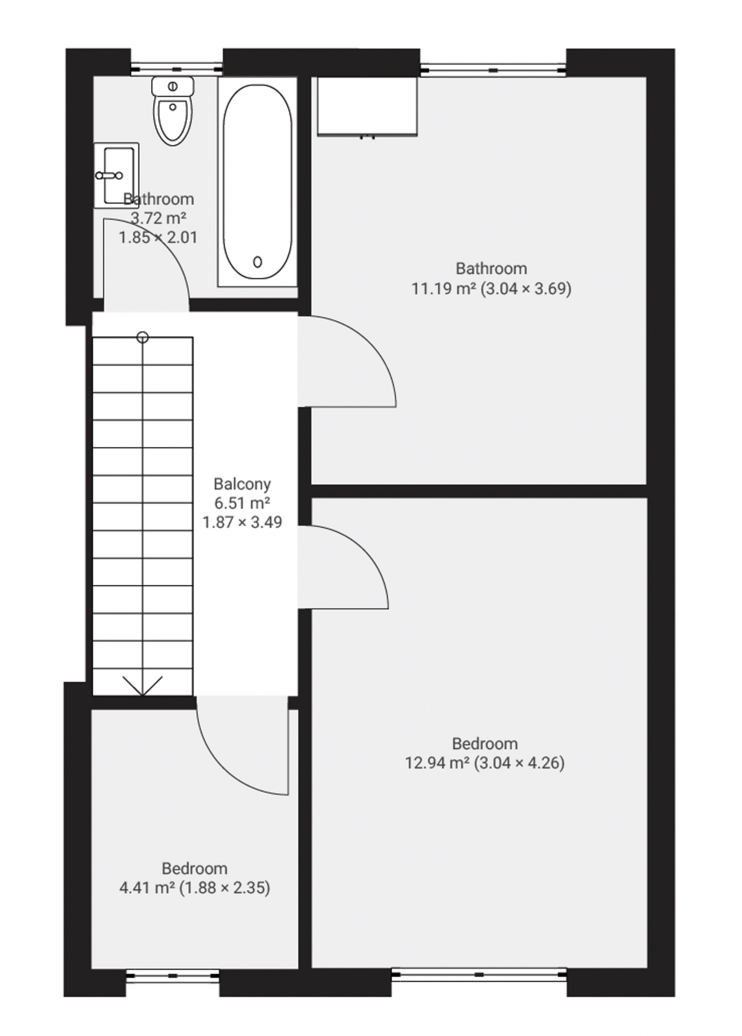
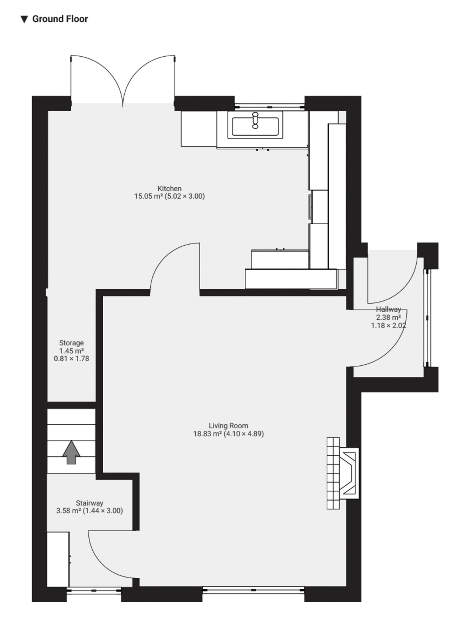
This 3 bedroom semi-detached house is a combination of modern convenience and classic charm.
Property Oracle says ..
This semi-detached property in Fazakerley, Liverpool is listed at £150,000. The property has three bedrooms and one bathroom, and a small garden. While the location is convenient to local schools and transport links, the property shows signs of needing some updating and modernisation. The average house price in the area is significantly higher than the list price, however, the average property size is also considerably larger. Given the condition and size of the property, the price may be reasonable for a buyer looking for a project.
Therefore, we give this property 5 / 10. *Disclaimer: This is our option and does constitute a recommendation or financial advice. Do your own research. *
- Price
- 6
- Condition
- 5
- Location
- 7
- Land
- 3
- Bedrooms
- 3
- Bathrooms
- 1
- Sqft (est)
- 444.44
The heatmap indicates the level of crime in the area. The color of the heatmap indicates the crime severity and recency.
Metrics Year-on-Year
- Average area value
- 191,661.00 £Increased by 27.22 %
- Est sale value
- 121,332.12 £Increased by 50.00 %
- Average area rental value
- 880.00 £/moIncreased by 5.39 %
- Est letting value
- 444.44 £/moUnchanged by 0.00 %
- Est rental Yield
- 5.51 %Decreased by 17.14 %
- Crime Rate
- 10.00 %Unchanged by 0.00 %
Agent Activity
FREYJA NORTH LIMITED marked this listing as sold.
FREYJA NORTH LIMITED created the listing.
Nearby Schools
| Name | Type | Ofsted | Distance |
|---|---|---|---|
| Fazakerley Primary School | Community School | Good | 0.97 KM |
| Dixons Fazakerley Academy | Academy Sponsor Led | 1.28 KM | |
| Holy Name Catholic Primary School | Voluntary Aided School | Good | 1.57 KM |
| St John Bosco Arts College | Voluntary Aided School | Good | 1.70 KM |
| Our Lady And St Swithin'S Catholic Primary School | Voluntary Aided School | Good | 1.84 KM |
Images
Nearby Streets
| Name | Average Price | Average Sqft | Distance |
|---|---|---|---|
| Drake Close | £ 0 | 0 | 0.00 KM |
| Winifred Road | £ 135,000 | 0 | 0.00 KM |
| Lower Lane | £ 200,000 | 0 | 0.00 KM |
| Ladysmith Road | £ 0 | 0 | 0.00 KM |
| Rufford Close | £ 255,000 | 0 | 0.00 KM |
Nearby Transport
| Name | NLC | TLC | Distance |
|---|---|---|---|
| Fazakerley | 2126 | FAZ | 2.44 KM |
| Kirkby (Merseyside) | 2124 | KIR | 2.58 KM |
| Old Roan | 2258 | ORN | 4.61 KM |
| Aintree | 2125 | AIN | 4.66 KM |
| Maghull | 2155 | MAG | 4.80 KM |
Nearby Listings
| Address | Price | Type | Score | Distance |
|---|---|---|---|---|
| Copplehouse Lane, Liverpool, L10 | £ 150,000 | BUY | 5 / 10 | 0.00 KM |
| Kestrel Dene, Fazakerley, Liverpool | £ 125,000 | BUY | 6 / 10 | 0.07 KM |
| Gribble Road, Liverpool, L10 | £ 145,000 | BUY | 6 / 10 | 0.09 KM |
| Copplehouse Lane, Liverpool, Merseyside | £ 169,950 | BUY | 6 / 10 | 0.11 KM |
| Copplehouse Lane, Liverpool, L10 | £ 125,000 | BUY | 5 / 10 | 0.11 KM |
Nearby Properties
| Address | Price | Distance |
|---|---|---|
| 69 Copplehouse Lane | £ 45,000 | 0.04 KM |
| 79 Copplehouse Lane | £ 95,000 | 0.04 KM |
| 57 Copplehouse Lane | £ 60,000 | 0.04 KM |
| 23b Copplehouse Lane | £ 87,550 | 0.04 KM |
| 113 Copplehouse Lane | £ 130,000 | 0.04 KM |