Othello Drive, Waterlooville
By Archbold & Edwards
£ 159,995
Reviews
3 out of 5 stars
Archbold & Edwards says ..
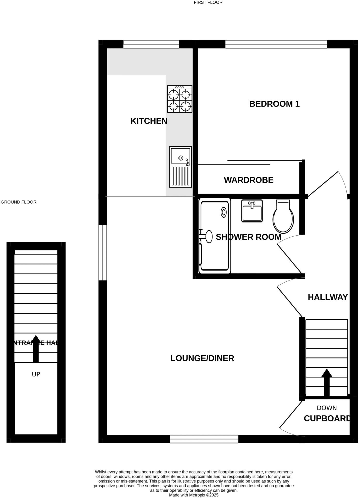
AN IDEAL FIRST TIME OR INVESTMENT PURCHASE. A one bedroom first floor flat located in a popular Tempest cul-de-sac location, in Waterlooville. This property benefits from double glazing, gas central heating system, allocated parking space, lounge/dining room, modern fitted kitchen, modern fitted ...
Property Oracle says ..
This 1-bedroom flat in Waterlooville is smaller than average for the area but is well maintained and presented. The location is convenient with good schools and transport links nearby. The price is significantly lower than the average price per sqft, which may reflect the smaller size and lack of garden. Overall, it could represent good value for money for a first-time buyer or investor.
Therefore, we give this property 6 / 10. *Disclaimer: This is our option and does constitute a recommendation or financial advice. Do your own research. *
- Price
- 8
- Condition
- 8
- Location
- 7
- Land
- 2
- Bedrooms
- 1
- Bathrooms
- 1
- Sqft (est)
- 560.00
The heatmap indicates the level of crime in the area. The color of the heatmap indicates the crime severity and recency.
Metrics Year-on-Year
- Average area value
- 358,250.00 £Increased by 16.15 %
- Est sale value
- 163,520.00 £Decreased by 7.30 %
- Average area rental value
- 1,179.00 £/moIncreased by 21.30 %
- Est letting value
- 0.00 £/mo
- Est rental Yield
- 3.95 %Increased by 4.50 %
- Crime Rate
- 3.00 %Unchanged by 0.00 %
Agent Activity
Archbold & Edwards marked this listing as sold.
Archbold & Edwards created the listing.
Nearby Schools
| Name | Type | Ofsted | Distance |
|---|---|---|---|
| Queen'S Inclosure Primary School | Community School | Good | 0.66 KM |
| Springwood Infant School | Community School | Good | 1.07 KM |
| Springwood Junior School | Community School | Good | 1.18 KM |
| Padnell Infant School | Community School | Good | 1.32 KM |
| Padnell Junior School | Community School | Good | 1.42 KM |
Images
Nearby Streets
| Name | Average Price | Average Sqft | Distance |
|---|---|---|---|
| Monarch Close | £ 400,000 | 0 | 0.00 KM |
| Robinia Close | £ 410,000 | 0 | 0.00 KM |
| Old Orchard | £ 0 | 0 | 0.00 KM |
| Bramley Close | £ 0 | 0 | 0.00 KM |
| Bluebell Close | £ 0 | 0 | 0.00 KM |
Nearby Transport
| Name | NLC | TLC | Distance |
|---|---|---|---|
| Bedhampton | 5538 | BDH | 3.93 KM |
| Havant | 5532 | HAV | 4.99 KM |
| Warblington | 5264 | WBL | 6.37 KM |
| Rowlands Castle | 5658 | RLN | 6.64 KM |
| Cosham | 5896 | CSA | 7.19 KM |
Nearby Listings
| Address | Price | Type | Score | Distance |
|---|---|---|---|---|
| Othello Drive, Waterlooville | £ 159,995 | BUY | 6 / 10 | 0.00 KM |
| Sebastian Grove, Waterlooville | £ 307,500 | BUY | 6 / 10 | 0.05 KM |
| Sebastian Grove, Waterlooville | £ 315,000 | BUY | 7 / 10 | 0.06 KM |
| Lysander Way, Waterlooville, PO7 8LE | £ 299,995 | BUY | 6 / 10 | 0.06 KM |
| Oberon Close, Waterlooville, Hampshire, PO7 | £ 320,000 | BUY | 7 / 10 | 0.08 KM |
Nearby Properties
| Address | Price | Distance |
|---|---|---|
| 10 Othello Drive | £ 164,000 | 0.01 KM |
| 3 Othello Drive | £ 237,000 | 0.01 KM |
| 14 Othello Drive | £ 186,500 | 0.01 KM |
| 7 Othello Drive | £ 142,500 | 0.01 KM |
| 11 Othello Drive | £ 164,000 | 0.01 KM |