Church Road Northolt Middlesex UB5 5AE
By Grey & Co
£ 230,000
Reviews
2 out of 5 stars
Grey & Co says ..
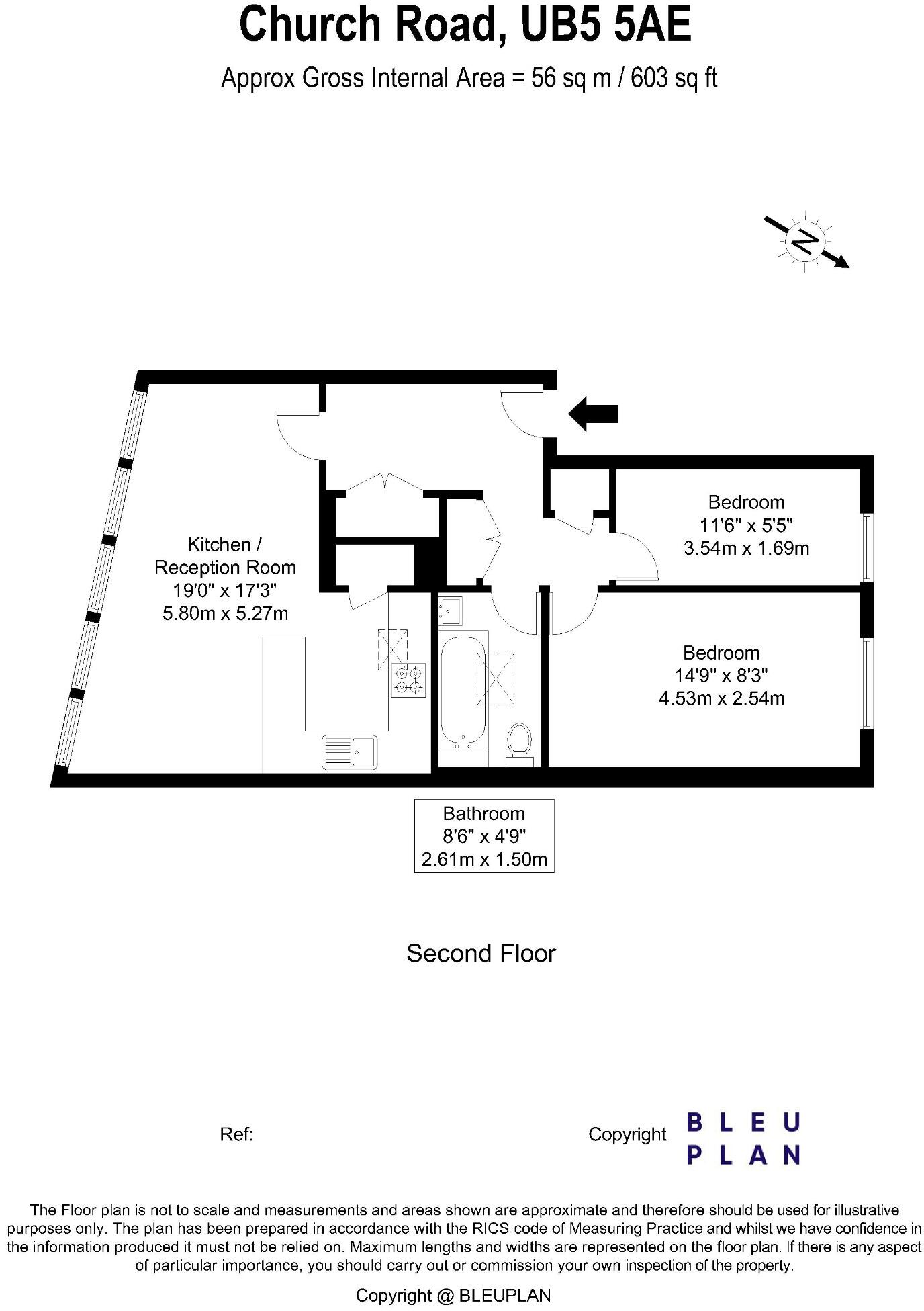
Bright and well-presented second floor flat in Northolt featuring a spacious open plan kitchen, ample storage, and gas central heating. Ideal for first-time buyers or as a buy to let investment
Property Oracle says ..
This two-bedroom flat located on Church Road in Northolt, Middlesex, is listed for £230,000. The property is presented in good order, with a clean and neutrally decorated interior. Images suggest a relatively standard-sized kitchen and bathroom. The flat benefits from ample natural light thanks to the large windows featured in the main living area. The location is convenient, within walking distance of Northolt station and a range of local amenities including shops and schools. Several primary and secondary schools with good Ofsted ratings are situated nearby, making it potentially attractive to families. Transport links to central London via the Central Line are within reach. However, it’s important to note that, despite the proximity to local amenities and transport, Northolt itself isn’t a prime London location, and might be less desirable for some buyers. Furthermore, the property is a flat and does not include any garden space. The listed price is in line with other similar properties on Church Road, suggesting good value, considering other factors like proximity to transport and amenities.
Therefore, we give this property 5 / 10. *Disclaimer: This is our option and does constitute a recommendation or financial advice. Do your own research. *
- Price
- 7
- Condition
- 6
- Location
- 7
- Land
- 1
- Bedrooms
- 2
- Bathrooms
- 1
- Sqft (est)
- 603.00
The heatmap indicates the level of crime in the area. The color of the heatmap indicates the crime severity and recency.
Metrics Year-on-Year
- Average area value
- 514,444.00 £Increased by 17.24 %
- Est sale value
- 361,800.00 £Increased by 25.26 %
- Average area rental value
- 1,788.00 £/moIncreased by 4.26 %
- Est letting value
- 1,206.00 £/moIncreased by 100.00 %
- Est rental Yield
- 4.17 %Decreased by 11.09 %
- Crime Rate
- 8.00 %Unchanged by 0.00 %
Agent Activity
Grey & Co marked this listing as sold.
Grey & Co created the listing.
Nearby Schools
| Name | Type | Ofsted | Distance |
|---|---|---|---|
| Islip Manor Children'S Centre | Children's Centre | 0.50 KM | |
| Belvue School | Community Special School | Good | 0.77 KM |
| Willow Tree Primary School | Community School | Good | 0.85 KM |
| Alec Reed Academy | Academy Sponsor Led | Good | 0.85 KM |
| Northolt High School | Foundation School | Good | 0.91 KM |
Images
Nearby Streets
| Name | Average Price | Average Sqft | Distance |
|---|---|---|---|
| A312 | £ 0 | 0 | 0.00 KM |
| Target Roundabout | £ 250,000 | 0 | 0.00 KM |
| Horseshoe Crescent | £ 0 | 0 | 0.00 KM |
| Hurst Close | £ 645,000 | 0 | 0.00 KM |
| Perth Close | £ 0 | 0 | 0.00 KM |
Nearby Transport
| Name | NLC | TLC | Distance |
|---|---|---|---|
| Northolt Park | 1478 | NLT | 2.24 KM |
| South Ruislip | 3057 | SRU | 3.05 KM |
| Greenford | 3136 | GFD | 3.21 KM |
| Southall | 3187 | STL | 4.29 KM |
| South Greenford | 3138 | SGN | 4.37 KM |
Nearby Listings
| Address | Price | Type | Score | Distance |
|---|---|---|---|---|
| Church Road Northolt Middlesex UB5 5AE | £ 230,000 | BUY | 5 / 10 | 0.00 KM |
| Church Road Northolt Middlesex UB5 5AE | £ 230,000 | BUY | 5 / 10 | 0.00 KM |
| Alderney Gardens, Northolt | £ 489,950 | BUY | Unknown | 0.05 KM |
| Church Road, Northolt | £ 230,000 | BUY | 4 / 10 | 0.09 KM |
| Eskdale Avenue, Northolt | £ 199,950 | BUY | 7 / 10 | 0.12 KM |
Nearby Properties
| Address | Price | Distance |
|---|---|---|
| 8 Alderney Gardens | £ 110,000 | 0.05 KM |
| 6 Alderney Gardens | £ 275,000 | 0.05 KM |
| 2 Alderney Gardens | £ 330,000 | 0.05 KM |
| 9 Alderney Gardens | £ 95,000 | 0.05 KM |
| 17 Alderney Gardens | £ 440,000 | 0.05 KM |