G
Pensax Common, Stockton, Worcester
By G Herbert Banks
£ 400,000
Reviews
3 out of 5 stars
G Herbert Banks says ..
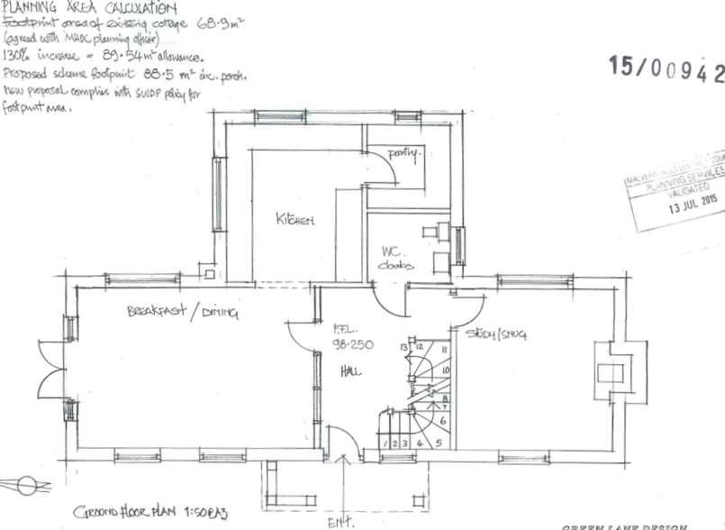
A hidden gem of a building plot with planning permission secured for a large three storey four bedroom house, with detached garage having loft room above. The new dwelling is to stand in a beautiful parcel of land extending to 2.10 acres.
Property Oracle says ..
Therefore, we give this property 7 / 10. *Disclaimer: This is our option and does constitute a recommendation or financial advice. Do your own research. *
- Price
- 7
- Condition
- 8
- Location
- 7
- Land
- 7
- Bedrooms
- 4
- Bathrooms
- 3
- Sqft (est)
- 419.79
The heatmap indicates the level of crime in the area. The color of the heatmap indicates the crime severity and recency.
Metrics Year-on-Year
- Average area value
- 736,042.00 £Increased by 24.23 %
- Est sale value
- 152,383.77 £Decreased by 28.40 %
- Average area rental value
- 1,358.00 £/moIncreased by 23.45 %
- Est letting value
- 0.00 £/mo
- Est rental Yield
- 2.21 %Decreased by 0.90 %
- Crime Rate
- 0.00 %
from 592,499.00 £
from 212,833.53 £
from 1,100.00 £/mo
from 0.00 £/mo
from 2.23 %
from 0.00 %
Agent Activity
G Herbert Banks created the listing.
Nearby Schools
| Name | Type | Ofsted | Distance |
|---|---|---|---|
| Abberley Parochial Vc Primary School | Voluntary Controlled School | Good | 4.89 KM |
| Abberley Hall | Other Independent School | 5.26 KM | |
| Bayton Cofe Primary School | Voluntary Controlled School | Outstanding | 5.43 KM |
| Far Forest Lea Memorial Cofe Primary School | Voluntary Controlled School | Requires improvement | 5.45 KM |
| Lindridge St Lawrence Ce Primary School | Voluntary Aided School | Requires improvement | 6.93 KM |
Images
Nearby Streets
| Name | Average Price | Average Sqft | Distance |
|---|---|---|---|
| Stourcote Cottage | £ 0 | 0 | 0.00 KM |
| Coppice Close | £ 675,000 | 0 | 0.00 KM |
| Stone Cottages | £ 0 | 0 | 0.00 KM |
Nearby Listings
| Address | Price | Type | Score | Distance |
|---|---|---|---|---|
| Pensax Common, Stockton, Worcester | £ 400,000 | BUY | 7 / 10 | 0.00 KM |
| Tilterdown, Stockton | £ 725,000 | BUY | 7 / 10 | 0.50 KM |
| Worcester Road Pensax Abberley, Worcestershire, WR6 6AJ | £ 1,500,000 | BUY | 7 / 10 | 0.98 KM |
| Menith Wood, Menith Wood, Worcester, Worcestershire | £ 95,000 | BUY | Unknown | 1.06 KM |
| 1 Penn Hall, Menith Wood | £ 395,000 | BUY | 7 / 10 | 1.17 KM |
Nearby Properties
| Address | Price | Distance |
|---|---|---|
| Woodvale | £ 365,000 | 1.18 KM |
| Lakewood House | £ 510,000 | 1.18 KM |
| Park House | £ 580,000 | 1.18 KM |
| Willow Bank | £ 250,000 | 1.18 KM |
| Home Farm Cottage | £ 279,000 | 1.18 KM |