Keith Ashton says ..
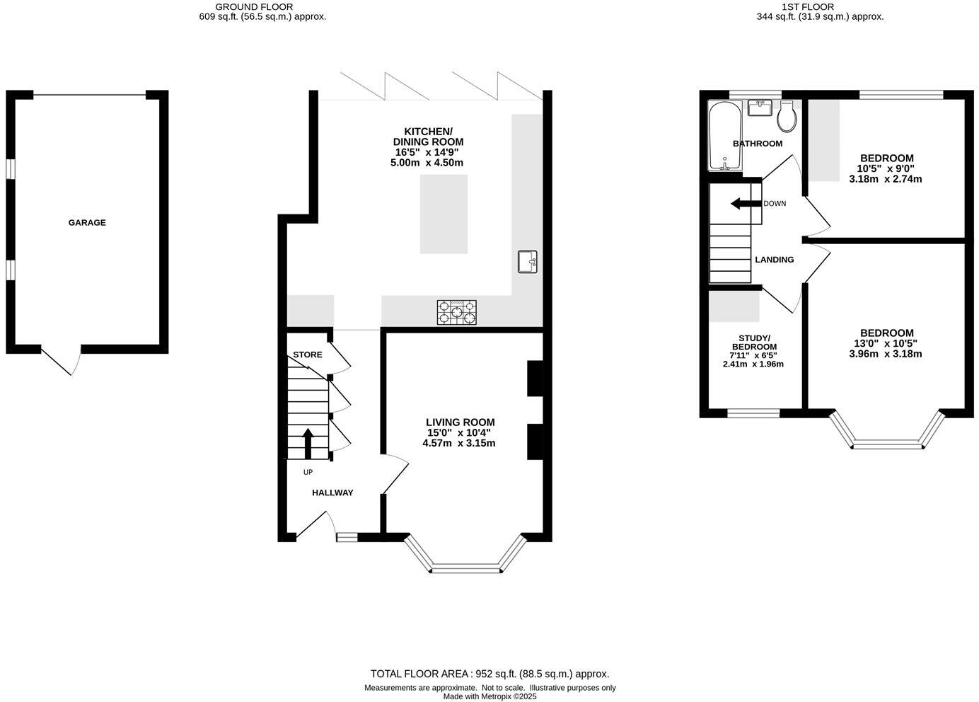
We are pleased to present this well-maintained three-bedroom terraced home, ideally located in a sought-after residential area of Upminster. The property features a stylish kitchen/diner, a bright and inviting living room, and a modern bathroom, with further scope for a loft conversion as demonst...
Property Oracle says ..
Therefore, we give this property 7 / 10. *Disclaimer: This is our option and does constitute a recommendation or financial advice. Do your own research. *
- Price
- 6
- Condition
- 8
- Location
- 8
- Land
- 7
- Bedrooms
- 3
- Bathrooms
- 1
- Sqft (est)
- 952.00
The heatmap indicates the level of crime in the area. The color of the heatmap indicates the crime severity and recency.
Metrics Year-on-Year
- Average area value
- 430,989.00 £Increased by 6.80 %
- Est sale value
- 469,336.00 £Increased by 74.20 %
- Average area rental value
- 1,439.00 £/moIncreased by 15.21 %
- Est letting value
- 952.00 £/mo
- Est rental Yield
- 4.01 %Increased by 8.09 %
- Crime Rate
- 11.00 %Unchanged by 0.00 %
from 403,536.00 £
from 269,416.00 £
from 1,249.00 £/mo
from 0.00 £/mo
from 3.71 %
from 11.00 %
Agent Activity
Keith Ashton created the listing.
Nearby Schools
| Name | Type | Ofsted | Distance |
|---|---|---|---|
| Engayne Primary School | Community School | Good | 0.23 KM |
| Hall Mead School | Academy Converter | Outstanding | 1.03 KM |
| The James Oglethorpe Primary School | Community School | Good | 1.91 KM |
| The Coopers' Company And Coborn School | Academy Converter | Good | 1.92 KM |
| Emerson Park Academy | Academy Converter | Good | 2.51 KM |
Images
Nearby Streets
| Name | Average Price | Average Sqft | Distance |
|---|---|---|---|
| Tees Close | £ 0 | 0 | 0.00 KM |
| Marlborough Close | £ 608,333 | 0 | 0.00 KM |
| Hall Lane | £ 0 | 0 | 0.00 KM |
| Masefield Drive | £ 0 | 0 | 0.00 KM |
Nearby Transport
| Name | NLC | TLC | Distance |
|---|---|---|---|
| Upminster | 7464 | UPM | 2.22 KM |
| Harold Wood | 6879 | HRO | 4.24 KM |
| Emerson Park | 7473 | EMP | 5.06 KM |
| Brentwood | 6872 | BRE | 5.91 KM |
| Ockendon | 7451 | OCK | 6.27 KM |
Nearby Listings
| Address | Price | Type | Score | Distance |
|---|---|---|---|---|
| Stour Way, Upminster | £ 525,000 | BUY | 7 / 10 | 0.00 KM |
| Stour Way, Upminster, RM14 | £ 425,000 | BUY | 6 / 10 | 0.04 KM |
| Severn Drive, Upminster | £ 550,000 | BUY | 7 / 10 | 0.05 KM |
| Severn Drive, Upminster, RM14 | £ 600,000 | BUY | 6 / 10 | 0.08 KM |
| Stour Way, Cranham, Upminster, RM14 | £ 520,000 | BUY | 6 / 10 | 0.09 KM |
Nearby Properties
| Address | Price | Distance |
|---|---|---|
| 60 Stour Way | £ 502,500 | 0.04 KM |
| 34 Stour Way | £ 395,000 | 0.04 KM |
| 4 Stour Way | £ 360,000 | 0.04 KM |
| 12 Stour Way | £ 510,000 | 0.04 KM |
| 20 Stour Way | £ 340,000 | 0.04 KM |