CO
Queen Street, Keinton Mandeville, TA11
By Cooper & Tanner
£ 1,100,000
Reviews
3 out of 5 stars
Cooper & Tanner says ..
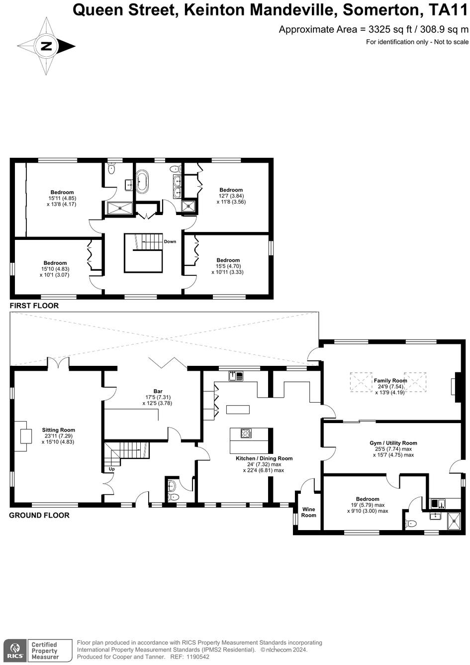
This impressive family home sits within large and beautifully landscaped gardens, enjoying excellent privacy despite its convenient position at the heart of a sought-after village, as well as extensively improved living spaces to a superb specification, totalling c.3325sq.ft of accommodation.
Property Oracle says ..
Therefore, we give this property 7 / 10. *Disclaimer: This is our option and does constitute a recommendation or financial advice. Do your own research. *
- Price
- 6
- Condition
- 9
- Location
- 7
- Land
- 8
- Bedrooms
- 5
- Bathrooms
- 3
- Sqft (est)
- 3,325.00
The heatmap indicates the level of crime in the area. The color of the heatmap indicates the crime severity and recency.
Metrics Year-on-Year
- Average area value
- 388,750.00 £Decreased by 22.01 %
- Est sale value
- 342,475.00 £Decreased by 3.74 %
- Average area rental value
- 1,856.00 £/moIncreased by 37.48 %
- Est letting value
- 0.00 £/mo
- Est rental Yield
- 5.73 %Increased by 76.31 %
- Crime Rate
- 71.00 %Unchanged by 0.00 %
from 498,461.00 £
from 355,775.00 £
from 1,350.00 £/mo
from 0.00 £/mo
from 3.25 %
from 71.00 %
Agent Activity
Cooper & Tanner created the listing.
Nearby Schools
| Name | Type | Ofsted | Distance |
|---|---|---|---|
| Keinton Mandeville Primary School | Community School | Good | 0.15 KM |
| Charlton Mackrell Cofe Primary School | Voluntary Controlled School | Good | 3.87 KM |
| Baltonsborough Church Of England Voluntary Controlled Primary School | Voluntary Controlled School | Good | 4.38 KM |
| Butleigh Church Of England Primary School | Voluntary Controlled School | Good | 5.35 KM |
| Lovington Church Of England Primary School | Voluntary Controlled School | Good | 6.98 KM |
Images
Nearby Streets
| Name | Average Price | Average Sqft | Distance |
|---|---|---|---|
| Rose Court | £ 0 | 0 | 0.00 KM |
| Cotton Lane | £ 595,000 | 0 | 0.00 KM |
| Cotton Lane | £ 0 | 0 | 0.00 KM |
| Copis Lane | £ 0 | 0 | 0.00 KM |
| Double Gates Drove | £ 420,000 | 0 | 0.00 KM |
Nearby Listings
| Address | Price | Type | Score | Distance |
|---|---|---|---|---|
| Queen Street, Keinton Mandeville, TA11 | £ 1,100,000 | BUY | 7 / 10 | 0.00 KM |
| Keinton Mandeville | £ 895,000 | BUY | 6 / 10 | 0.07 KM |
| Queen Street, Keinton Mandeville | £ 599,950 | BUY | 7 / 10 | 0.07 KM |
| Queen Street, Keinton Mandeville | £ 450,000 | BUY | Unknown | 0.11 KM |
| Keinton Mandeville, Somerton | £ 1,025,000 | BUY | 7 / 10 | 0.15 KM |
Nearby Properties
| Address | Price | Distance |
|---|---|---|
| Manor House | £ 367,000 | 0.11 KM |
| Rose Cottage | £ 187,500 | 0.11 KM |
| Kent Lodge | £ 215,000 | 0.11 KM |
| Bay Tree Cottage | £ 289,000 | 0.11 KM |
| Lyas Cottage | £ 290,000 | 0.11 KM |