Goodfellows says ..
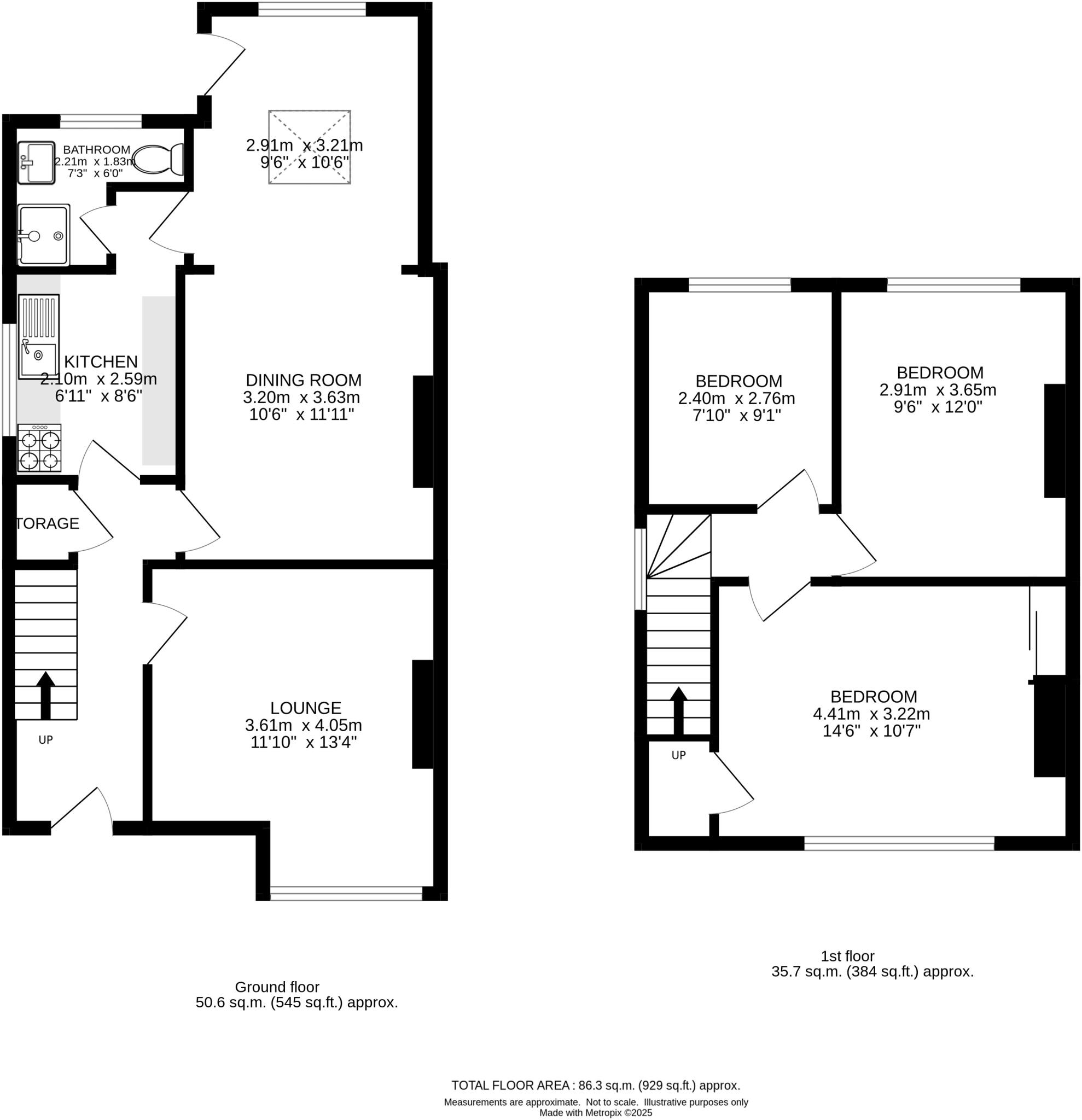
A semi-detached house with large private rear garden offering plenty of scope for improvement and extension (subject to the usual permissions). Currently the property provides well-proportioned accommodation which consists of two reception rooms, three good size bedrooms, a galley kitchen and gro...
Property Oracle says ..
Therefore, we give this property 5 / 10. *Disclaimer: This is our option and does constitute a recommendation or financial advice. Do your own research. *
- Price
- 4
- Condition
- 4
- Location
- 7
- Land
- 6
- Bedrooms
- 3
- Bathrooms
- 1
- Sqft (est)
- 722.90
The heatmap indicates the level of crime in the area. The color of the heatmap indicates the crime severity and recency.
Metrics Year-on-Year
- Average area value
- 406,111.00 £Decreased by 9.13 %
- Est sale value
- 335,425.60 £Decreased by 16.85 %
- Average area rental value
- 1,725.00 £/moDecreased by 7.11 %
- Est letting value
- 722.90 £/moDecreased by 50.00 %
- Est rental Yield
- 5.10 %Increased by 2.20 %
- Crime Rate
- 6.00 %Unchanged by 0.00 %
from 446,906.00 £
from 403,378.20 £
from 1,857.00 £/mo
from 1,445.80 £/mo
from 4.99 %
from 6.00 %
Agent Activity
Goodfellows created the listing.
Nearby Schools
| Name | Type | Ofsted | Distance |
|---|---|---|---|
| Tweeddale Primary School | Academy Converter | Good | 0.30 KM |
| Tweeddale Children'S Centre | Children's Centre | 0.39 KM | |
| Carshalton Boys Sports College | Academy Converter | Good | 0.60 KM |
| Greenshaw High School | Academy Converter | Good | 0.78 KM |
| Green Wrythe Primary School | Academy Sponsor Led | Good | 0.78 KM |
Images
Nearby Streets
| Name | Average Price | Average Sqft | Distance |
|---|---|---|---|
| Paisley Road | £ 0 | 0 | 0.00 KM |
| Middleton Road | £ 0 | 0 | 0.00 KM |
| Bolton Drive | £ 231,667 | 0 | 0.00 KM |
| Limes Avenue | £ 550,000 | 0 | 0.00 KM |
| Temple Way | £ 0 | 0 | 0.00 KM |
Nearby Transport
| Name | NLC | TLC | Distance |
|---|---|---|---|
| Carshalton | 5405 | CSH | 1.99 KM |
| Sutton Common | 5436 | SUC | 2.11 KM |
| St Helier | 5290 | SIH | 2.42 KM |
| Mitcham Junction | 5427 | MIJ | 2.62 KM |
| Hackbridge | 5364 | HCB | 2.75 KM |
Nearby Listings
| Address | Price | Type | Score | Distance |
|---|---|---|---|---|
| Benhill Road, Sutton, SM1 | £ 450,000 | BUY | 5 / 10 | 0.00 KM |
| Titchfield Road, Carshalton, SM5 | £ 425,000 | BUY | 5 / 10 | 0.07 KM |
| Titchfield Road, Carshalton | £ 400,000 | BUY | 6 / 10 | 0.10 KM |
| Tintern Road, Carshalton, SM5 | £ 400,000 | BUY | 6 / 10 | 0.10 KM |
| Tintern Road, Carshalton, Surrey | £ 400,000 | BUY | 6 / 10 | 0.10 KM |
Nearby Properties
| Address | Price | Distance |
|---|---|---|
| 75 Thornton Road | £ 229,000 | 0.04 KM |
| 77 Thornton Road | £ 204,500 | 0.05 KM |
| 111 Thornton Road | £ 264,950 | 0.05 KM |
| 101 Thornton Road | £ 250,000 | 0.05 KM |
| 72 Titchfield Road | £ 367,000 | 0.08 KM |