Pennys says ..
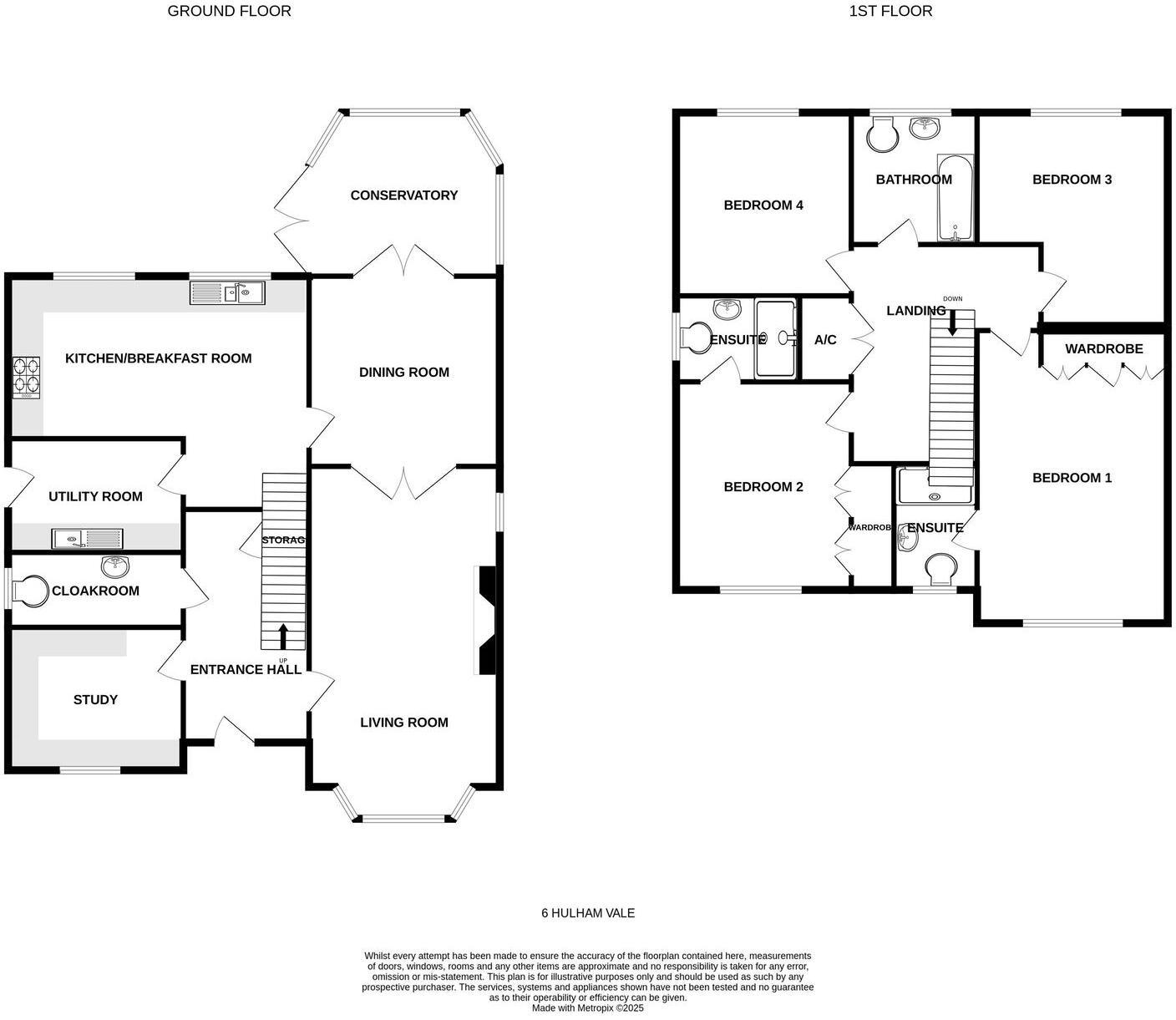
An Extremely Spacious Detached Residence Forming Part Of A Select Cul-De-Sac Of Quality Properties Enjoying Wonderfully Sized Corner Plot Gardens, Double Width Block Paved Driveway And Detached Double Garage
Property Oracle says ..
The property is situated in the desirable Hulham Vale area of Exmouth, offering proximity to well-regarded schools and Exmouth train station. The property itself is well-maintained and presented, showing no obvious signs of needing repair or renovation. A garden is included, though the exact size is not specified. The list price is higher than the area average, but comparable properties in Hulham Vale support this, given the condition and location.
Therefore, we give this property 8 / 10. *Disclaimer: This is our option and does constitute a recommendation or financial advice. Do your own research. *
- Price
- 8
- Condition
- 9
- Location
- 9
- Land
- 7
- Bedrooms
- 4
- Bathrooms
- 3
- Sqft (est)
- 1,550.00
The heatmap indicates the level of crime in the area. The color of the heatmap indicates the crime severity and recency.
Metrics Year-on-Year
- Average area value
- 391,731.00 £Decreased by 6.30 %
- Est sale value
- 511,500.00 £Decreased by 27.79 %
- Average area rental value
- 1,432.00 £/moIncreased by 19.33 %
- Est letting value
- 1,550.00 £/moUnchanged by 0.00 %
- Est rental Yield
- 4.39 %Increased by 27.62 %
- Crime Rate
- 4.00 %Unchanged by 0.00 %
Agent Activity
Pennys created the listing.
Nearby Schools
| Name | Type | Ofsted | Distance |
|---|---|---|---|
| Brixington Primary Academy | Academy Sponsor Led | Requires improvement | 0.78 KM |
| Withycombe Raleigh Church Of England Primary School | Voluntary Controlled School | Good | 0.81 KM |
| Exmouth & District Children'S Centre | Children's Centre | 1.14 KM | |
| Marpool Primary School | Foundation School | Good | 1.19 KM |
| Exmouth Community College | Academy Converter | Requires improvement | 1.23 KM |
Images
Nearby Streets
| Name | Average Price | Average Sqft | Distance |
|---|---|---|---|
| Shackleton Close | £ 0 | 0 | 0.00 KM |
| Pound Lane | £ 0 | 0 | 0.00 KM |
| Kipling Close | £ 450,000 | 0 | 0.00 KM |
| Seymour Road | £ 0 | 0 | 0.00 KM |
| Chestnut Close | £ 385,000 | 0 | 0.00 KM |
Nearby Transport
| Name | NLC | TLC | Distance |
|---|---|---|---|
| Exmouth | 5756 | EXM | 2.29 KM |
| Lympstone Village | 5761 | LYM | 3.53 KM |
| Lympstone Commando | 5762 | LYC | 5.21 KM |
| Starcross | 3413 | SCS | 5.25 KM |
| Exton | 5760 | EXN | 5.89 KM |
Nearby Listings
| Address | Price | Type | Score | Distance |
|---|---|---|---|---|
| Hulham Vale, Exmouth, EX8 4QB | £ 675,000 | BUY | 8 / 10 | 0.00 KM |
| Hulham Vale, Exmouth | £ 665,000 | BUY | 7 / 10 | 0.02 KM |
| Hulham Vale, Exmouth | £ 650,000 | BUY | 7 / 10 | 0.03 KM |
| Shackleton Close, Exmouth | £ 415,000 | BUY | Unknown | 0.15 KM |
| Booth Way, Exmouth | £ 439,950 | BUY | 7 / 10 | 0.15 KM |
Nearby Properties
| Address | Price | Distance |
|---|---|---|
| 8 Hulham Vale | £ 475,000 | 0.01 KM |
| 11 Hulham Vale | £ 520,000 | 0.01 KM |
| 10 Hulham Vale | £ 565,000 | 0.01 KM |
| 3 Hulham Vale | £ 710,000 | 0.01 KM |
| 5 Hulham Vale | £ 455,000 | 0.01 KM |