Walnut Tree Close, Guildford, Surrey, GU1
By Stirling Ackroyd
£ 415,000
Reviews
3 out of 5 stars
Stirling Ackroyd says ..
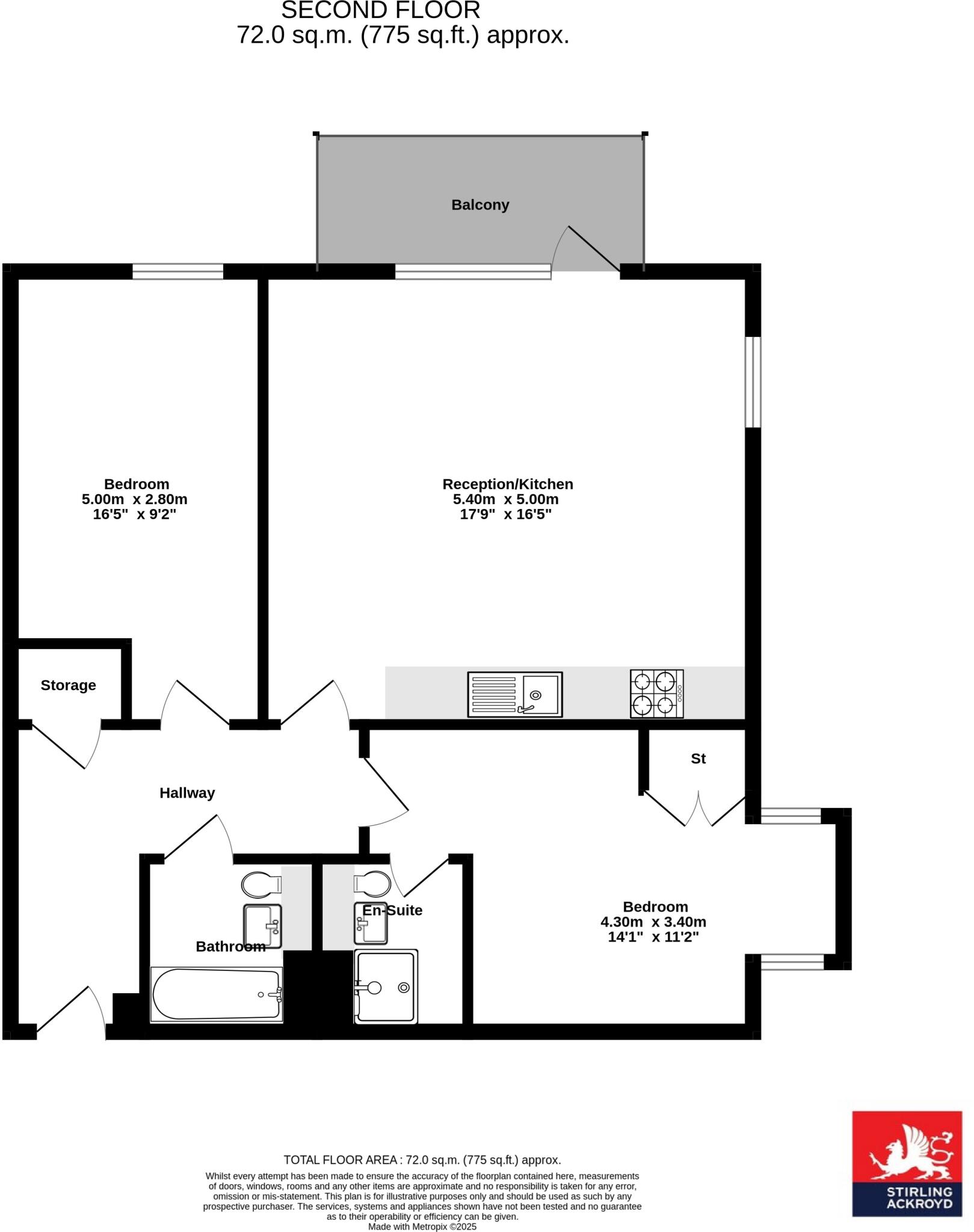
A luxury second floor apartments located just moments away from Guildford main line station and town centre. Accessed via a secure entry system with lift access, the apartment features its own front door opening into a spacious entrance hall. From here, doors lead to a bright and airy ...
Property Oracle says ..
This is a modern two-bedroom, two-bathroom apartment in Guildford. The property appears to be in good condition and benefits from a balcony and access to communal gardens. The location is convenient, with good access to transport links and local schools. The property is located near the River Wey, offering pleasant views and recreational opportunities. The price is slightly above the average for the area, but this is likely due to the property’s condition and modern features.
Therefore, we give this property 6 / 10. *Disclaimer: This is our option and does constitute a recommendation or financial advice. Do your own research. *
- Price
- 6
- Condition
- 8
- Location
- 7
- Land
- 4
- Bedrooms
- 2
- Bathrooms
- 2
The heatmap indicates the level of crime in the area. The color of the heatmap indicates the crime severity and recency.
Metrics Year-on-Year
- Average area value
- 334,167.00 £Decreased by 35.64 %
- Average area rental value
- 2,042.00 £/moIncreased by 12.51 %
- Est rental Yield
- 7.33 %Increased by 74.52 %
- Crime Rate
- 2.00 %Unchanged by 0.00 %
Agent Activity
Stirling Ackroyd created the listing.
Nearby Schools
| Name | Type | Ofsted | Distance |
|---|---|---|---|
| University Of Surrey | Higher Education Institutions | 0.71 KM | |
| Guildford County School | Academy Converter | Outstanding | 1.04 KM |
| Sandfield Primary School | Academy Sponsor Led | Good | 1.08 KM |
| St Nicolas Cofe Aided Infant School | Voluntary Aided School | Good | 1.20 KM |
| Christ'S College, Guildford | Academy Converter | Requires improvement | 1.44 KM |
Images
Nearby Streets
| Name | Average Price | Average Sqft | Distance |
|---|---|---|---|
| Yorke's Bridge | £ 0 | 0 | 0.00 KM |
| Woodbridge Road | £ 262,500 | 0 | 0.00 KM |
| Faraday Road | £ 250,000 | 0 | 0.00 KM |
| Bridge Street | £ 0 | 0 | 0.00 KM |
| Bridge Street | £ 0 | 0 | 0.00 KM |
Nearby Transport
| Name | NLC | TLC | Distance |
|---|---|---|---|
| Guildford | 5631 | GLD | 0.64 KM |
| London Road (Guildford) | 5632 | LRD | 1.83 KM |
| Shalford (Surrey) | 5638 | SFR | 3.55 KM |
| Worplesdon | 5686 | WPL | 5.16 KM |
| Farncombe | 5643 | FNC | 5.67 KM |
Nearby Listings
| Address | Price | Type | Score | Distance |
|---|---|---|---|---|
| Walnut Tree Close, Guildford, GU1 | £ 345,000 | BUY | Unknown | 0.00 KM |
| Walnut Tree Close, Guildford, Surrey, GU1 | £ 415,000 | BUY | 6 / 10 | 0.00 KM |
| Wey Corner, Walnut Tree Close, Guildford, GU1 | £ 400,000 | BUY | Unknown | 0.01 KM |
| Walnut Tree Close, Guildford, GU1 | £ 425,000 | BUY | 5 / 10 | 0.01 KM |
| Walnut Tree Close, Guildford, Surrey, GU1 | £ 425,000 | BUY | 8 / 10 | 0.02 KM |
Nearby Properties
| Address | Price | Distance |
|---|---|---|
| 169 Walnut Tree Close | £ 450,000 | 0.13 KM |
| 155 Walnut Tree Close | £ 223,750 | 0.13 KM |
| 166 Walnut Tree Close | £ 235,000 | 0.13 KM |
| 154 Walnut Tree Close | £ 245,500 | 0.13 KM |
| 165 Walnut Tree Close | £ 158,000 | 0.13 KM |