CL
BUILDING PLOT Old Carnon Hill, Carnon Downs
By Clive Pearce Property
£ 100,000
Reviews
2 out of 5 stars
Clive Pearce Property says ..
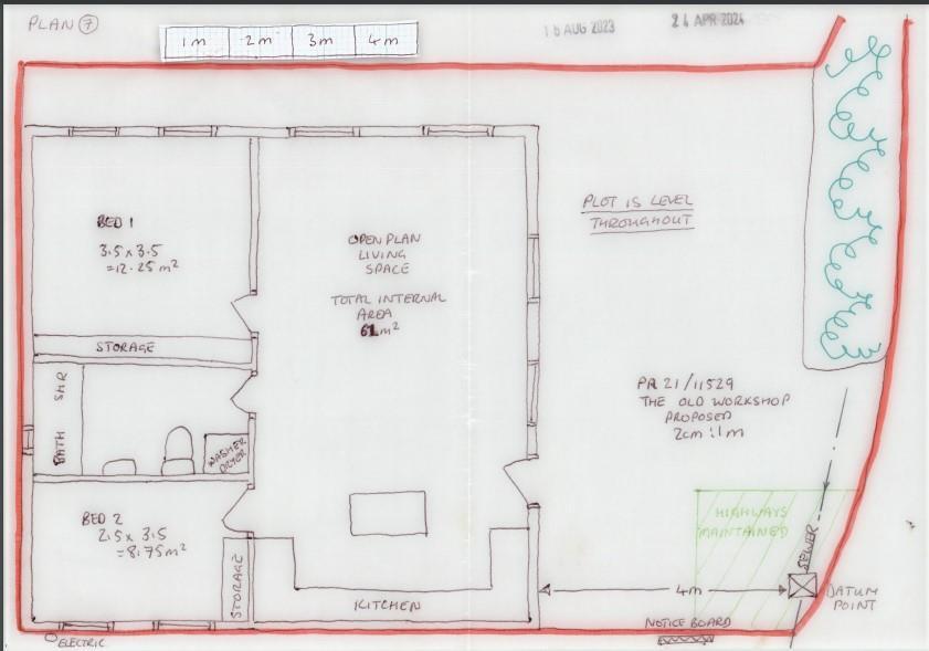
A RARE CARNON DOWNS BUILDING PLOT- A unique opportunity to construct a two bedroom detached bungalow located in the centre of Carnon Downs, a short level walk from the convenience shop and village amenities. The plot currently has a large workshop on site and there is planning consent to demolish...
Property Oracle says ..
Therefore, we give this property 5 / 10. *Disclaimer: This is our option and does constitute a recommendation or financial advice. Do your own research. *
- Price
- 8
- Condition
- 2
- Location
- 7
- Land
- 4
- Bedrooms
- 2
- Bathrooms
- 1
- Sqft (est)
- 656.60
The heatmap indicates the level of crime in the area. The color of the heatmap indicates the crime severity and recency.
Metrics Year-on-Year
- Average area value
- 781,087.00 £Increased by 32.10 %
- Est sale value
- 336,179.20 £Increased by 59.01 %
- Average area rental value
- 1,319.00 £/moDecreased by 39.24 %
- Est letting value
- 0.00 £/moDecreased by 100.00 %
- Est rental Yield
- 2.03 %Decreased by 53.97 %
- Crime Rate
- 30.00 %Unchanged by 0.00 %
from 591,288.00 £
from 211,425.20 £
from 2,171.00 £/mo
from 656.60 £/mo
from 4.41 %
from 30.00 %
Agent Activity
Clive Pearce Property created the listing.
Nearby Schools
| Name | Type | Ofsted | Distance |
|---|---|---|---|
| Devoran School | Community School | Good | 0.88 KM |
| Perran-Ar-Worthal Community Primary School | Community School | Good | 3.75 KM |
| Mylor Community Primary School | Community School | Good | 4.00 KM |
| Kea Community Primary School | Community School | Good | 4.03 KM |
| Richard Lander School | Community School | Good | 4.60 KM |
Images
Nearby Streets
| Name | Average Price | Average Sqft | Distance |
|---|---|---|---|
| Cowling Road | £ 0 | 0 | 0.00 KM |
| Park View Close | £ 605,000 | 0 | 0.00 KM |
Nearby Transport
| Name | NLC | TLC | Distance |
|---|---|---|---|
| Perranwell | 3528 | PRW | 2.39 KM |
| Truro | 3540 | TRU | 5.63 KM |
| Penryn (Cornwall) | 3525 | PYN | 5.94 KM |
| Penmere | 3499 | PNM | 7.78 KM |
| Falmouth Town | 3591 | FMT | 8.45 KM |
Nearby Listings
| Address | Price | Type | Score | Distance |
|---|---|---|---|---|
| BUILDING PLOT Old Carnon Hill, Carnon Downs | £ 100,000 | BUY | 5 / 10 | 0.00 KM |
| Old Carnon Hill, Carnon Downs, Truro, Cornwall, TR3 | £ 380,000 | BUY | 6 / 10 | 0.00 KM |
| Carnon Downs, Truro | £ 600,000 | BUY | 7 / 10 | 0.01 KM |
| Old Carnon Hill, Carnon Downs | £ 450,000 | BUY | 6 / 10 | 0.07 KM |
| Carnon Downs | £ 415,000 | BUY | Unknown | 0.17 KM |
Nearby Properties
| Address | Price | Distance |
|---|---|---|
| Rosemerran | £ 625,000 | 0.01 KM |
| Mount Agar House | £ 275,000 | 0.01 KM |
| Blacksmiths Cottage | £ 465,000 | 0.01 KM |
| Cornerways | £ 340,000 | 0.01 KM |
| Carclew View | £ 240,000 | 0.01 KM |