Melrose Cottage, Coach Place, Glasgow, G65
VI

Melrose Cottage, Coach Place, Glasgow, G65

By Village Estates

£ 270,000

Reviews

3 out of 5 stars

Village Estates says ..

Village Estates are delighted to welcome to the market this stunning 4-bedroom detached villa situated in Coach Place in Kilsyth.

Property Oracle says ..

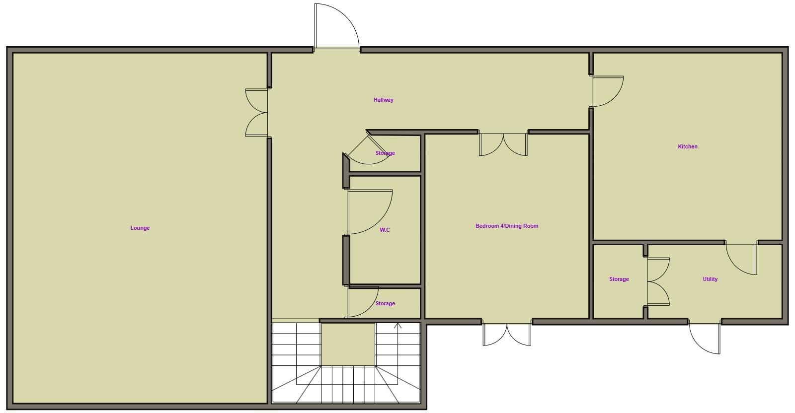
The property is a 4-bedroom, 3-bathroom house located in Kilsyth, North Lanarkshire, Scotland. The list price is £270,000, and the property has 443 sqft of living space. From the photographs, the property appears to be in good condition. The interior is modern and well-maintained, with updated fixtures and finishes. The exterior also looks well-kept, with landscaping and a paved patio area. The property benefits from having a garden. Considering the average house price in the area is significantly higher (£517,143) and the average price per sqft is £379, the list price of £270,000 for this 443 sqft property seems relatively low. However, it is important to note that the average price and sqft data may include properties of different sizes and types, potentially skewing the comparison. The lack of information on plot size makes it difficult to fully assess value for money. The proximity to Croy train station (2.20 KM) is a positive factor for potential buyers.

Therefore, we give this property 7 / 10. *Disclaimer: This is our option and does constitute a recommendation or financial advice. Do your own research. *

Price
8
Condition
9
Location
7
Land
7
Bedrooms
4
Bathrooms
3
Sqft (est)
443.00

The heatmap indicates the level of crime in the area. The color of the heatmap indicates the crime severity and recency.

Metrics Year-on-Year

Average area value
925,000.00 £
Increased by 139.51 %
from 386,204.00 £
Est sale value
194,034.00 £
Increased by 50.52 %
from 128,913.00 £
Average area rental value
825.00 £/mo
Decreased by 10.71 %
from 924.00 £/mo
Est letting value
0.00 £/mo
from 0.00 £/mo
Est rental Yield
1.07 %
Decreased by 62.72 %
from 2.87 %
Crime Rate
0.00 %
from 0.00 %

Agent Activity

  • Village Estates marked this listing as sold.

  • Village Estates created the listing.

Images

Front Lounge Kitchen Rear Lower Hallway Lower Hallway Lower Hallway Lounge Dining Room Dining Room Kitchen Kitchen Utility Utility Upper Hallway Bedroom No. 1 Bedroom No. 1 Bedroom No. 1 En-Suite Bedroom No. 2 Bedroom No. 3 Bathroom Rear Rear

Nearby Streets

NameAverage PriceAverage SqftDistance
Coach Place £ 000.00 KM
Cronulla Place £ 000.00 KM
Hamill Drive £ 000.00 KM
High Barrwood Road £ 235,00000.00 KM
Colzium View £ 99,99500.00 KM

Nearby Transport

NameNLCTLCDistance
Croy9943CRO2.20 KM
Greenfaulds9725GRL7.18 KM
Cumbernauld9721CUB8.03 KM

Nearby Listings

AddressPriceTypeScoreDistance
Melrose Cottage, Coach Place, Glasgow, G65 £ 270,000BUY7 / 100.00 KM
Annie Cottage Coach Place, Glasgow, G65 £ 299,950BUY7 / 100.00 KM
Coach Place, Kilsyth £ 279,000BUYUnknown0.03 KM
South Barrwood Road, Kilsyth, G65 £ 60,000BUY5 / 100.06 KM
14 Mid Barrwood Road, Kilsyth, , Glasgow, G65 £ 230,000BUY8 / 100.18 KM