North End Road, Golders Green, London, NW11
By Foxtons
£ 1,400,000
Reviews
3 out of 5 stars
Foxtons says ..
Having been refurbished throughout to the highest of standards, this superb 3 bedroom house features elegant wood floors, period features and integrated LED lighting throughout.
Property Oracle says ..
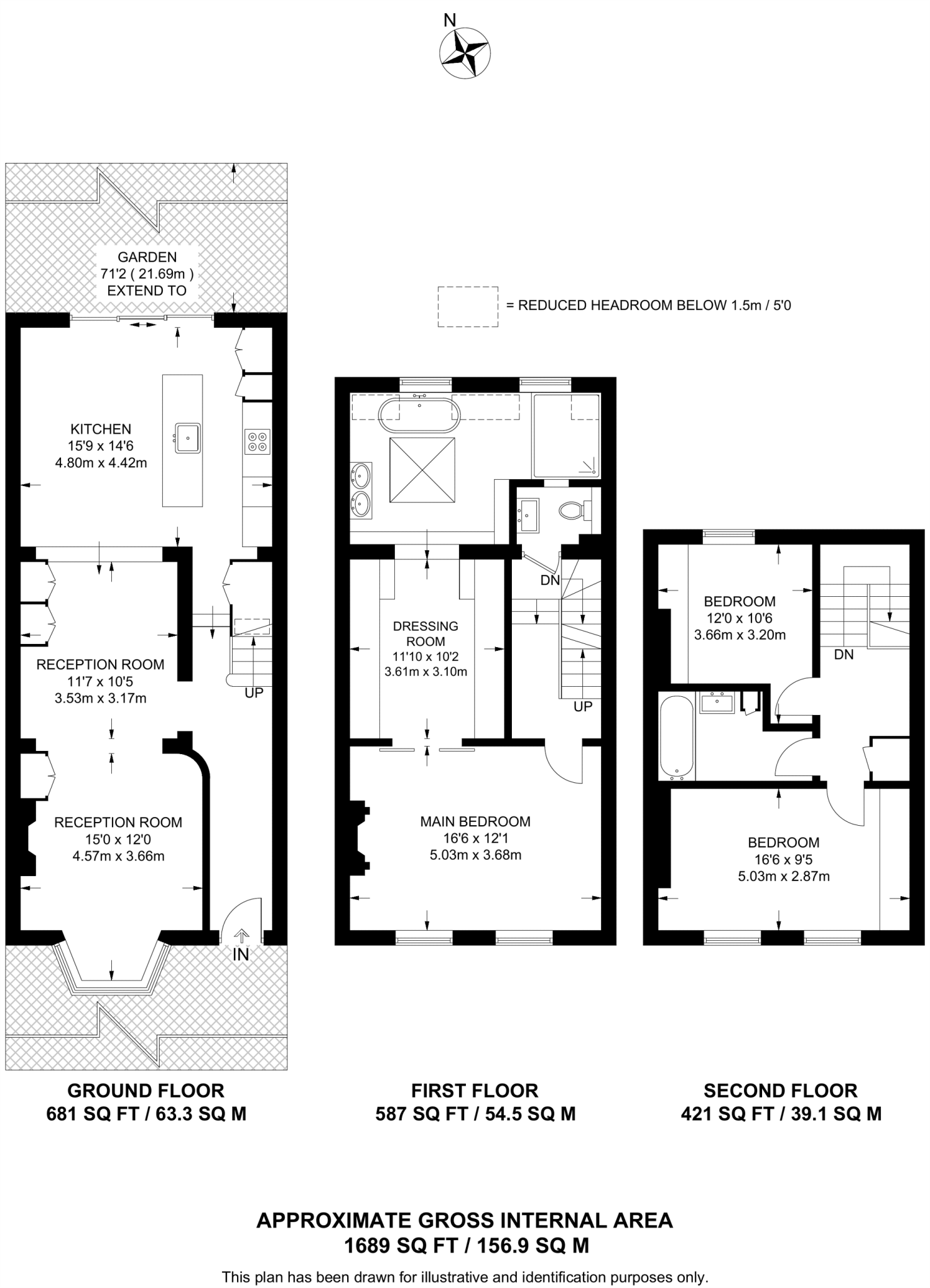
This three-bedroom property located on North End Road, Golders Green, is presented in excellent condition. The photographs reveal a recent, high-quality refurbishment or renovation, resulting in modern and stylish interiors. The kitchen and bathrooms are particularly noteworthy, showcasing contemporary design and premium fixtures. The property benefits from a well-maintained garden, a valuable asset in a London location. The location itself is highly desirable, situated in Golders Green, close to excellent transport links (although specific distances to stations are not detailed), a range of local amenities, and several schools. The proximity to Hampstead Garden Suburb further enhances its desirability. The list price of £1,400,000 is reasonable considering the property’s condition and location, although a more precise assessment of value would require more detailed comparable sales data, particularly average price per square foot for similar properties in the immediate vicinity. The lack of precise plot size data makes a definitive assessment of land value challenging. Overall, this property presents a compelling offering for buyers seeking a well-appointed home in a prime North West London location.
Therefore, we give this property 7 / 10. *Disclaimer: This is our option and does constitute a recommendation or financial advice. Do your own research. *
- Price
- 7
- Condition
- 9
- Location
- 8
- Land
- 7
- Bedrooms
- 3
- Bathrooms
- 2
- Sqft (est)
- 1,689.00
The heatmap indicates the level of crime in the area. The color of the heatmap indicates the crime severity and recency.
Metrics Year-on-Year
- Average area value
- 1,617,059.00 £Decreased by 47.03 %
- Est sale value
- 1,080,960.00 £Decreased by 60.64 %
- Average area rental value
- 2,345.00 £/moDecreased by 26.70 %
- Est letting value
- 0.00 £/moDecreased by 100.00 %
- Est rental Yield
- 1.74 %Increased by 38.10 %
- Crime Rate
- 7.00 %Unchanged by 0.00 %
Agent Activity
Foxtons created the listing.
Nearby Schools
| Name | Type | Ofsted | Distance |
|---|---|---|---|
| The King Alfred School | Other Independent School | 0.33 KM | |
| St Anthony'S School For Girls | Other Independent School | 0.35 KM | |
| Golders Hill School | Other Independent School | Good | 0.96 KM |
| The Henrietta Barnett School | Academy Converter | 1.21 KM | |
| St Margaret'S School | Other Independent School | 1.41 KM |
Images
Nearby Streets
| Name | Average Price | Average Sqft | Distance |
|---|---|---|---|
| Sandy Road | £ 3,495,000 | 0 | 0.00 KM |
| St Albans Lane | £ 2,500,000 | 0 | 0.00 KM |
| Wildwood Terrace | £ 0 | 0 | 0.00 KM |
| Bunkers Hill | £ 0 | 0 | 0.00 KM |
| Meadway Close | £ 0 | 0 | 0.00 KM |
Nearby Transport
| Name | NLC | TLC | Distance |
|---|---|---|---|
| Finchley Road And Frognal | 1445 | FNY | 2.29 KM |
| West Hampstead Thameslink | 1525 | WHP | 2.46 KM |
| West Hampstead | 1421 | WHD | 2.56 KM |
| Hampstead Heath | 1413 | HDH | 3.00 KM |
| Cricklewood | 1519 | CRI | 3.01 KM |
Nearby Listings
| Address | Price | Type | Score | Distance |
|---|---|---|---|---|
| North End Road, Golders Green, London, NW11 | £ 1,400,000 | BUY | 7 / 10 | 0.00 KM |
| North End Road, London | £ 750,000 | BUY | 6 / 10 | 0.04 KM |
| North End Road, London | £ 635,000 | BUY | 6 / 10 | 0.04 KM |
| North End Road, Golders Green, NW11 | £ 1,600,000 | BUY | Unknown | 0.07 KM |
| Park Drive, Golders Green, London, NW11 | £ 450,000 | BUY | 6 / 10 | 0.07 KM |
Nearby Properties
| Address | Price | Distance |
|---|---|---|
| 105 North End Road | £ 950,000 | 0.02 KM |
| 121 North End Road | £ 615,000 | 0.02 KM |
| 117 North End Road | £ 170,000 | 0.02 KM |
| 109 North End Road | £ 630,000 | 0.02 KM |
| 101 North End Road | £ 750,000 | 0.02 KM |