New Build At Leamington Road, Hockley
By Bear SMB Ltd
£ 475,000
Reviews
3 out of 5 stars
Bear SMB Ltd says ..
Nestled on Leamington Road in the charming area of Hockley, this exquisite two-bedroom detached bungalow is a remarkable new build, to be completed in summer 2025. With its beautiful design and modern features, this property offers a perfect blend of comfort and style, making it an ideal home for...
Property Oracle says ..
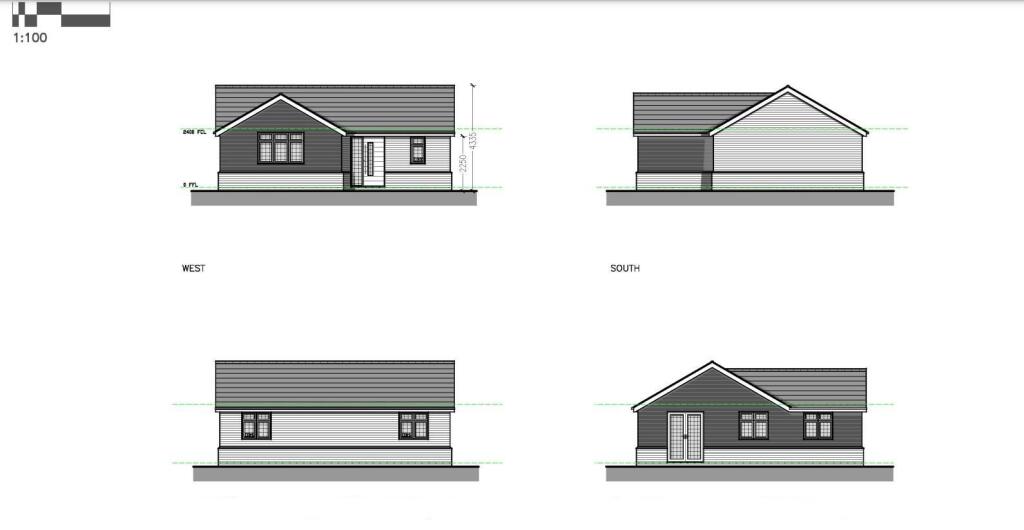
This property is a new build two-bedroom house situated in Hockley, Essex, offered at £475,000. The location is advantageous due to its proximity to well-regarded schools (Greensward Academy and Plumberow Primary Academy, both rated ‘Good’ by Ofsted) and Hockley train station. The convenience of nearby shops and amenities adds to its appeal. The architectural drawings indicate a modern design, suggesting a contemporary aesthetic and potentially efficient layout. However, the plot size, given as 0.00 SQFT, is likely an error. While the aerial imagery shows a small garden area, the limited size might detract from the overall desirability. The property’s price appears reasonably competitive within the context of neighboring sales, although more concrete information on the square footage of comparable properties would allow for a more definitive assessment of the value for money. The absence of photographs of the completed property prevents a full evaluation of the interior’s condition and finishing. The provided information provides a positive overall impression, yet more details are needed for a comprehensive assessment.
Therefore, we give this property 6 / 10. *Disclaimer: This is our option and does constitute a recommendation or financial advice. Do your own research. *
- Price
- 7
- Condition
- 8
- Location
- 7
- Land
- 4
- Bedrooms
- 2
- Bathrooms
- 1
- Sqft (est)
- 700.00
The heatmap indicates the level of crime in the area. The color of the heatmap indicates the crime severity and recency.
Metrics Year-on-Year
- Average area value
- 466,667.00 £Decreased by 1.98 %
- Est sale value
- 303,100.00 £Increased by 8.79 %
- Average area rental value
- 1,463.00 £/moIncreased by 0.90 %
- Est letting value
- 700.00 £/moUnchanged by 0.00 %
- Est rental Yield
- 3.76 %Increased by 3.01 %
- Crime Rate
- 14.00 %Unchanged by 0.00 %
Agent Activity
Bear SMB Ltd created the listing.
Nearby Schools
| Name | Type | Ofsted | Distance |
|---|---|---|---|
| Greensward Academy | Academy Sponsor Led | Good | 0.16 KM |
| Plumberow Primary Academy | Academy Converter | Good | 0.51 KM |
| Westerings Primary Academy | Academy Converter | Good | 1.72 KM |
| Ashingdon Primary Academy | Academy Converter | Requires improvement | 2.04 KM |
| Hockley Primary School | Academy Converter | Outstanding | 2.33 KM |
Images
Nearby Streets
| Name | Average Price | Average Sqft | Distance |
|---|---|---|---|
| Magnolia Road | £ 390,000 | 0 | 0.00 KM |
| Selbourne Road | £ 630,000 | 0 | 0.00 KM |
| Wood Lane | £ 750,000 | 0 | 0.00 KM |
| Greensward Lane | £ 0 | 0 | 0.00 KM |
| Cromwell Road | £ 385,000 | 0 | 0.00 KM |
Nearby Transport
| Name | NLC | TLC | Distance |
|---|---|---|---|
| Hockley | 6880 | HOC | 0.95 KM |
| Rochford | 6885 | RFD | 4.86 KM |
| North Fambridge | 6875 | NFA | 4.88 KM |
| Southend Airport | 4787 | SIA | 6.04 KM |
| Rayleigh | 6884 | RLG | 7.65 KM |
Nearby Listings
| Address | Price | Type | Score | Distance |
|---|---|---|---|---|
| New Build At Leamington Road, Hockley | £ 475,000 | BUY | 6 / 10 | 0.00 KM |
| Leamington Road, Hockley, SS5 | £ 450,000 | BUY | 6 / 10 | 0.13 KM |
| Harrogate Road, Hockley | £ 425,000 | BUY | 6 / 10 | 0.16 KM |
| Cheltenham Road, Hockley | £ 375,000 | BUY | 7 / 10 | 0.16 KM |
| Leamington Road, Hockley, Essex, SS5 5HP | £ 535,000 | BUY | Unknown | 0.17 KM |
Nearby Properties
| Address | Price | Distance |
|---|---|---|
| 131 Greensward Lane | £ 325,000 | 0.10 KM |
| 115 Greensward Lane | £ 410,000 | 0.10 KM |
| 129 Greensward Lane | £ 485,000 | 0.10 KM |
| 135 Greensward Lane | £ 275,000 | 0.10 KM |
| 109 Greensward Lane | £ 57,000 | 0.10 KM |