St Martins Road, Deal, CT14
By Jenkinson Estates
£ 279,950
Reviews
3 out of 5 stars
Jenkinson Estates says ..
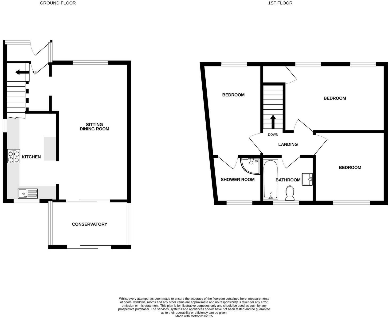
Jenkinson Estates are pleased to bring to the market this spacious semi detached home in the ever popular location of St Martins Road, Deal. The generous accommodation provides a sitting / dining room that stretches over 19ft (5.79m) in length and opens the kitchen and to a conservatory. The cons...
Property Oracle says ..
This three-bedroom semi-detached house in Deal, Kent is listed at £279,950. The property benefits from a good-sized rear garden, and appears to be in reasonable condition, though some modernisation may be desired by some buyers. The location is convenient, with nearby schools and transportation links. However, the average house price in the area is significantly higher, suggesting that this property may be priced competitively, especially considering its size and features. The lack of plot size information in the listing makes a definitive conclusion difficult.
Therefore, we give this property 7 / 10. *Disclaimer: This is our option and does constitute a recommendation or financial advice. Do your own research. *
- Price
- 8
- Condition
- 7
- Location
- 7
- Land
- 7
- Bedrooms
- 3
- Bathrooms
- 2
- Sqft (est)
- 990.00
The heatmap indicates the level of crime in the area. The color of the heatmap indicates the crime severity and recency.
Metrics Year-on-Year
- Average area value
- 696,062.00 £Decreased by 2.02 %
- Est sale value
- 513,810.00 £Decreased by 10.05 %
- Average area rental value
- 2,443.00 £/moDecreased by 15.35 %
- Est letting value
- 990.00 £/moDecreased by 50.00 %
- Est rental Yield
- 4.21 %Decreased by 13.55 %
- Crime Rate
- 20.00 %Unchanged by 0.00 %
Agent Activity
Jenkinson Estates created the listing.
Nearby Schools
| Name | Type | Ofsted | Distance |
|---|---|---|---|
| Hornbeam Primary School | Academy Converter | 0.27 KM | |
| Sholden Church Of England Primary School | Academy Converter | 0.48 KM | |
| St Mary'S Catholic Primary School | Academy Converter | Good | 0.79 KM |
| Warden House Primary School | Academy Converter | Outstanding | 1.06 KM |
| Brewood Secondary School | Other Independent Special School | Good | 2.25 KM |
Images
Nearby Streets
| Name | Average Price | Average Sqft | Distance |
|---|---|---|---|
| St. Nicholas Close | £ 0 | 0 | 0.00 KM |
| St. Augustines Road | £ 0 | 0 | 0.00 KM |
| Farm Lane | £ 394,500 | 0 | 0.00 KM |
| Norman Place | £ 342,970 | 0 | 0.00 KM |
| Jute Fields | £ 0 | 0 | 0.00 KM |
Nearby Transport
| Name | NLC | TLC | Distance |
|---|---|---|---|
| Walmer | 5041 | WAM | 1.98 KM |
| Deal | 5011 | DEA | 3.03 KM |
| Martin Mill | 5040 | MTM | 5.83 KM |
| Sandwich | 5026 | SDW | 6.68 KM |
Nearby Listings
| Address | Price | Type | Score | Distance |
|---|---|---|---|---|
| St Martins Road, Deal, CT14 | £ 279,950 | BUY | 7 / 10 | 0.00 KM |
| Mongeham Road, Deal, CT14 | £ 165,000 | BUY | 6 / 10 | 0.13 KM |
| Mongeham Road, Deal, CT14 9FT | £ 160,000 | BUY | 6 / 10 | 0.13 KM |
| Mongeham Road, Deal, CT14 | £ 165,000 | BUY | 6 / 10 | 0.13 KM |
| Mongeham Road, Great Mongeham, Deal, Kent, CT14 | £ 260,000 | BUY | 7 / 10 | 0.14 KM |
Nearby Properties
| Address | Price | Distance |
|---|---|---|
| 62 St Martins Road | £ 138,000 | 0.06 KM |
| 66 St Martins Road | £ 183,000 | 0.06 KM |
| 111 St Martins Road | £ 162,950 | 0.06 KM |
| 115 St Martins Road | £ 146,000 | 0.06 KM |
| 64 St Martins Road | £ 195,000 | 0.06 KM |