Whitehall Road, Whitehall, Bristol
HO

Whitehall Road, Whitehall, Bristol

By House + Co Property

£ 340,000

Reviews

3 out of 5 stars

House + Co Property says ..

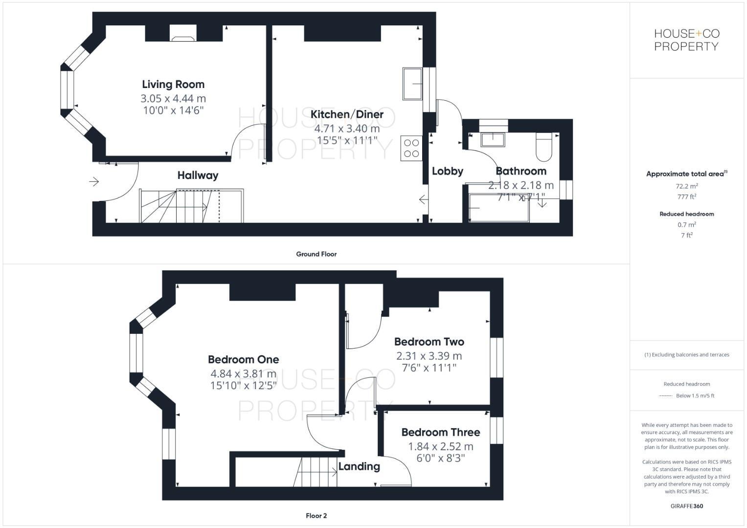
Spacious and well presented Victorian home located in St George just a short walk from the park. This home has been much improved by its current owner and offers lots of period features. With a lovely bayed living room with wood burning stove and a full width kitchen diner and open hallway yo...

Property Oracle says ..

This three-bedroom terraced house in Whitehall, Bristol is located in the St George West area. The property benefits from being close to several well-regarded schools, including Whitehall Primary School and St Patrick’s Catholic Primary School, both rated as Outstanding by Ofsted. Transport links are also convenient, with several train stations within a reasonable distance. The house itself appears to be in good condition, having undergone some modernisation while retaining traditional character. The kitchen and bathroom have been recently updated, and the property includes a garden. However, the plot size is not specified. Compared to the average price per square foot in the area (£577), the listed price of £340,000 seems reasonable, especially considering its location and condition. Nearby comparable properties are listed between £300,000 and £425,000.

Therefore, we give this property 7 / 10. *Disclaimer: This is our option and does constitute a recommendation or financial advice. Do your own research. *

Price
7
Condition
8
Location
9
Land
6
Bedrooms
3
Bathrooms
1
Sqft (est)
777.15

The heatmap indicates the level of crime in the area. The color of the heatmap indicates the crime severity and recency.

Metrics Year-on-Year

Average area value
590,893.00 £
Increased by 22.51 %
from 482,314.00 £
Est sale value
481,833.00 £
Increased by 21.09 %
from 397,900.80 £
Average area rental value
2,120.00 £/mo
Increased by 44.51 %
from 1,467.00 £/mo
Est letting value
1,554.30 £/mo
Increased by 100.00 %
from 777.15 £/mo
Est rental Yield
4.31 %
Increased by 18.08 %
from 3.65 %
Crime Rate
4.00 %
Unchanged by 0.00 %
from 4.00 %

Agent Activity

  • House + Co Property created the listing.

Nearby Schools

NameTypeOfstedDistance
Whitehall Primary SchoolCommunity SchoolOutstanding0.50 KM
The Limes Nursery SchoolLocal Authority Nursery SchoolGood0.51 KM
The Limes Nursery School & Children'S CentreChildren's Centre0.57 KM
St Patrick'S Catholic Primary SchoolAcademy ConverterOutstanding0.74 KM
Redfield Educate Together Primary AcademyAcademy Sponsor LedGood0.81 KM

Images

IMG_8899.jpeg CAM01530G0-PR0259-STILL013.jpg CAM01530G0-PR0259-STILL020.jpg CAM01530G0-PR0259-STILL002.jpg CAM01530G0-PR0259-STILL028.jpg CAM01530G0-PR0259-STILL032.jpg CAM01530G0-PR0259-STILL014.jpg CAM01530G0-PR0259-STILL016.jpg CAM01530G0-PR0259-STILL012.jpg CAM01530G0-PR0259-STILL019.jpg CAM01530G0-PR0259-STILL021.jpg CAM01530G0-PR0259-STILL022.jpg CAM01530G0-PR0259-STILL025.jpg CAM01530G0-PR0259-STILL023.jpg CAM01530G0-PR0259-STILL026.jpg CAM01530G0-PR0259-STILL027.jpg CAM01530G0-PR0259-STILL010.jpg CAM01530G0-PR0259-STILL003.jpg CAM01530G0-PR0259-STILL004.jpg CAM01530G0-PR0259-STILL005.jpg CAM01530G0-PR0259-STILL006.jpg CAM01530G0-PR0259-STILL008.jpg CAM01530G0-PR0259-STILL009.jpg CAM01530G0-PR0259-STILL029.jpg CAM01530G0-PR0259-STILL030.jpg CAM01530G0-PR0259-STILL031.jpg CAM01530G0-PR0259-STILL033.jpg CAM01530G0-PR0259-STILL034.jpg CAM01530G0-PR0259-STILL035.jpg

Nearby Streets

NameAverage PriceAverage SqftDistance
Gordon Road £ 380,00000.00 KM
Chalks Road £ 325,00000.00 KM
Shaw Road £ 430,00000.00 KM
Broma Place £ 000.00 KM
Gordon Road £ 000.00 KM

Nearby Transport

NameNLCTLCDistance
Lawrence Hill3225LWH1.64 KM
Stapleton Road3250SRD1.76 KM
Bristol Temple Meads3231BRI3.75 KM
Montpelier3203MTP4.22 KM
Filton Abbey Wood3235FIT4.76 KM

Nearby Listings

AddressPriceTypeScoreDistance
Whitehall Road, Whitehall, Bristol £ 340,000BUY7 / 100.00 KM
Whitehall Road, Bristol £ 330,000BUY6 / 100.05 KM
Whitehall Road, Bristol, BS5 £ 385,000BUYUnknown0.08 KM
Ambrosia House, St George, Bristol, BS5 £ 300,000BUY7 / 100.10 KM
Gordon Road, Whitehall, Bristol, BS5 7DP £ 330,000BUYUnknown0.10 KM

Nearby Properties

AddressPriceDistance
9 Stretford Road £ 105,0000.04 KM
14 Stretford Road £ 380,0000.04 KM
6 Stretford Road £ 225,0000.04 KM
22 Stretford Road £ 110,5270.04 KM
20 Stretford Road £ 352,0000.05 KM