Shorediche Close, Ickenham, Uxbridge, UB10
By Kearns Residential
£ 435,000
Reviews
3 out of 5 stars
Kearns Residential says ..
This lovely two-bedroom terraced home offers bright and spacious interiors throughout. It is perfect for first-time buyers or a growing family looking for a property located in a convenient location close to local amenities, transport links and highly regarded schools. Presented in gre...
Property Oracle says ..
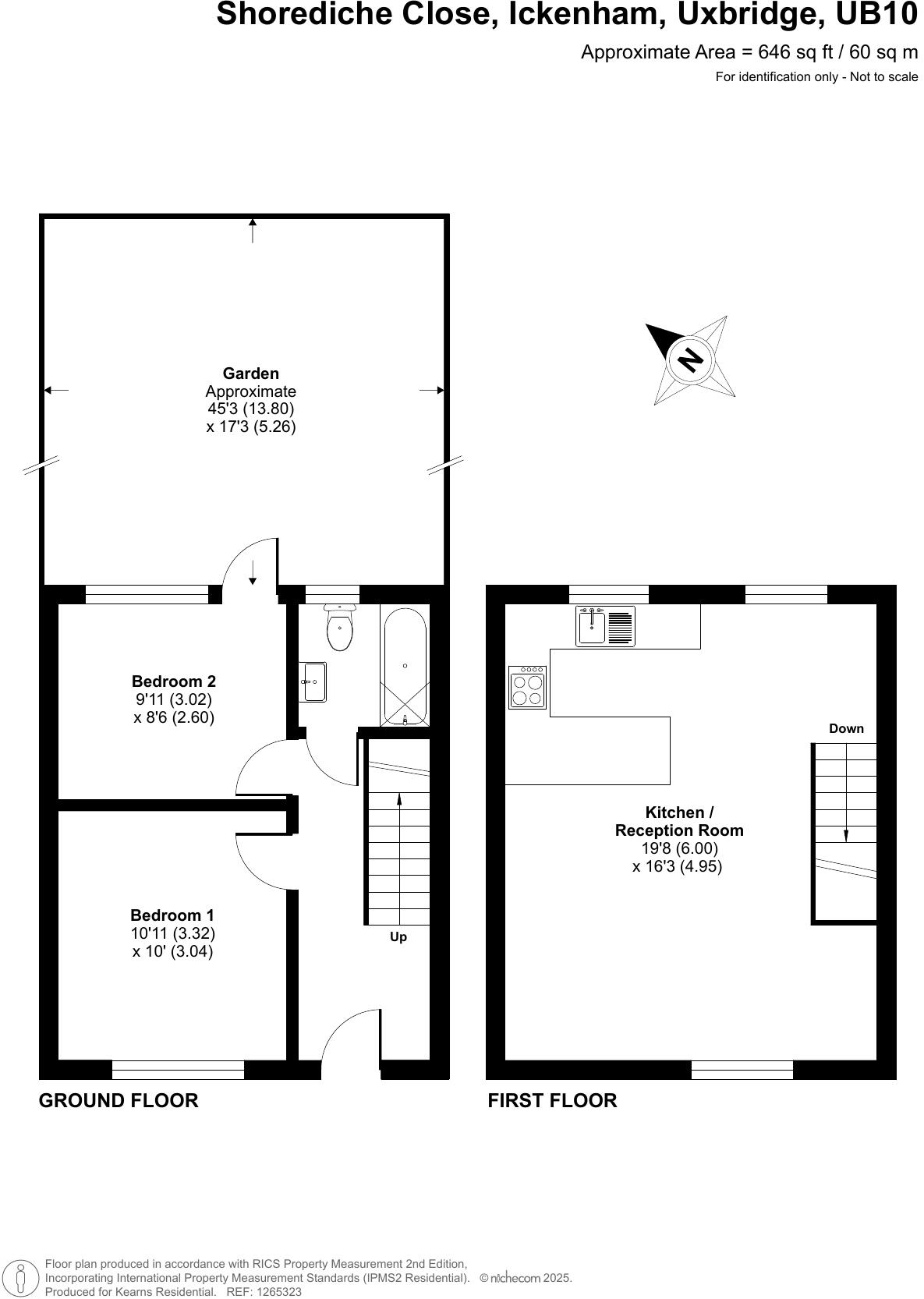
This two-bedroom terraced house in Ickenham, Uxbridge is listed at £435,000. The property benefits from a modern kitchen and bathroom, and appears well-maintained based on the provided images. The location is convenient, with nearby schools (Vyners School, The Breakspear School) and transportation links (West Ruislip Underground station). The plot size is 646 sqft, offering a manageable garden space. Compared to the average price per sqft in the area (£360), the list price seems slightly higher, but considering the modern updates and desirable location, it may be justified. More information on the condition and land would be needed for a more precise evaluation.
Therefore, we give this property 7 / 10. *Disclaimer: This is our option and does constitute a recommendation or financial advice. Do your own research. *
- Price
- 7
- Condition
- 8
- Location
- 8
- Land
- 6
- Bedrooms
- 2
- Bathrooms
- 1
- Sqft (est)
- 1,165.08
- Lot (est)
- 646.00
The heatmap indicates the level of crime in the area. The color of the heatmap indicates the crime severity and recency.
Metrics Year-on-Year
- Average area value
- 845,563.00 £Decreased by 7.05 %
- Est sale value
- 685,067.04 £Increased by 6.91 %
- Average area rental value
- 2,280.00 £/moDecreased by 28.32 %
- Est letting value
- 1,165.08 £/moUnchanged by 0.00 %
- Est rental Yield
- 3.24 %Decreased by 22.86 %
- Crime Rate
- 9.00 %Unchanged by 0.00 %
Agent Activity
Kearns Residential created the listing.
Nearby Schools
| Name | Type | Ofsted | Distance |
|---|---|---|---|
| Vyners School | Academy Converter | Outstanding | 0.65 KM |
| The Breakspear School | Community School | Good | 1.31 KM |
| Hcuc (Harrow College & Uxbridge College) | Further Education | 1.77 KM | |
| The Douay Martyrs Catholic School | Academy Converter | Good | 2.02 KM |
| Hermitage Primary School | Academy Converter | 2.11 KM |
Images
Nearby Streets
| Name | Average Price | Average Sqft | Distance |
|---|---|---|---|
| Malcolm Road | £ 0 | 0 | 0.00 KM |
| Windrush Close | £ 900,000 | 0 | 0.00 KM |
| Skip Lane | £ 1,510,000 | 0 | 0.00 KM |
| The Mead | £ 940,000 | 0 | 0.00 KM |
| Bushey Close | £ 0 | 0 | 0.00 KM |
Nearby Transport
| Name | NLC | TLC | Distance |
|---|---|---|---|
| West Ruislip | 3059 | WRU | 2.76 KM |
| Denham | 3052 | DNM | 4.23 KM |
| West Drayton | 3174 | WDT | 6.14 KM |
| Denham Golf Club | 3060 | DGC | 6.42 KM |
| South Ruislip | 3057 | SRU | 7.00 KM |
Nearby Listings
| Address | Price | Type | Score | Distance |
|---|---|---|---|---|
| Shorediche Close, Ickenham, Uxbridge, UB10 | £ 435,000 | BUY | 6 / 10 | 0.00 KM |
| London View, Swakeleys Road, Ickenham, UB10 | £ 565,000 | BUY | Unknown | 0.03 KM |
| Shorediche Close, Ickenham, UB10 | £ 450,000 | BUY | 7 / 10 | 0.08 KM |
| Shorediche Close, Ickenham, UB10 | £ 450,000 | BUY | 7 / 10 | 0.08 KM |
| Shorediche Close, Ickenham, UB10 | £ 425,000 | BUY | 7 / 10 | 0.08 KM |
Nearby Properties
| Address | Price | Distance |
|---|---|---|
| 6 Shorediche Close | £ 580,000 | 0.05 KM |
| 13 Shorediche Close | £ 357,500 | 0.05 KM |
| 36 Shorediche Close | £ 249,950 | 0.05 KM |
| 33 Shorediche Close | £ 400,000 | 0.05 KM |
| 19 Shorediche Close | £ 250,000 | 0.05 KM |