Greystoke Avenue, Plymouth, Devon, PL6 5UL
By Sensible Move
£ 158,000
Reviews
2 out of 5 stars
Sensible Move says ..
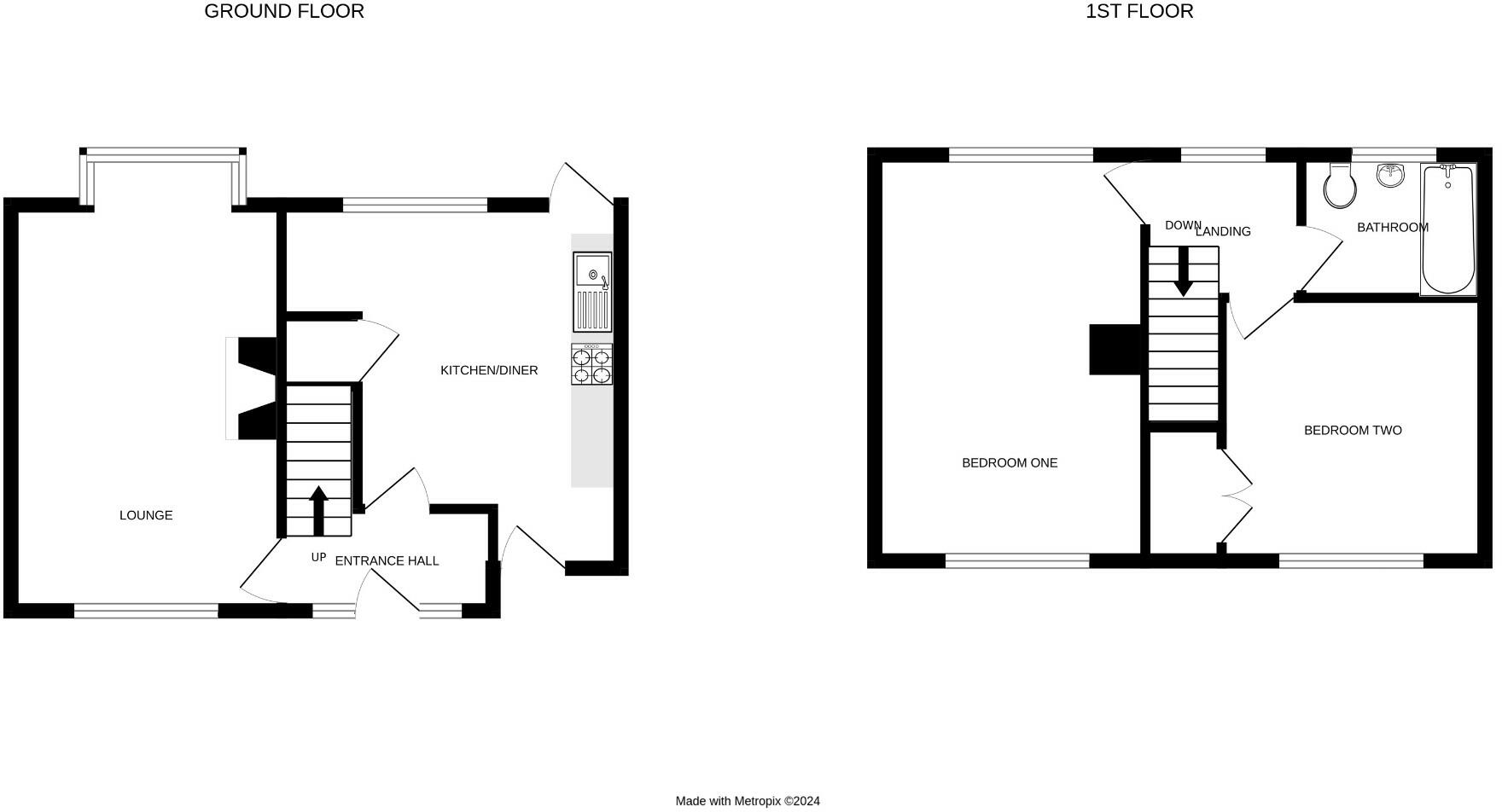
2 BEDROOM SEMI DETACHED HOUSE REQUIRING SOME MODERNISATION BENEFITING FROM DOUBLE GLAZING, GAS CENTRAL HEATING AND GARDENS
Property Oracle says ..
This two-bedroom semi-detached house in Eggbuckland, Plymouth, is listed at £158,000. The property requires some modernisation, as evidenced by the dated interior décor and wallpaper seen in the photos. The kitchen and bathroom are particularly in need of updating. The property benefits from double glazing and gas central heating, which are standard features in properties of this age range and location. There is a garden at the rear of the property, though it needs some attention. The location is a positive point, being close to schools such as Austin Farm Academy and St. Edward’s Cofe Primary School, while still within a reasonable distance of Plymouth city centre. The average price of nearby properties is helpful when determining the property’s value. Potential buyers should factor in the costs of refurbishment when considering the listed price. The proximity to major transportation routes and amenities in Plymouth is also a plus. Overall, the property offers potential for a buyer willing to invest in some updates.
Therefore, we give this property 5 / 10. *Disclaimer: This is our option and does constitute a recommendation or financial advice. Do your own research. *
- Price
- 7
- Condition
- 5
- Location
- 6
- Land
- 4
- Bedrooms
- 2
- Bathrooms
- 1
- Sqft (est)
- 733.50
The heatmap indicates the level of crime in the area. The color of the heatmap indicates the crime severity and recency.
Metrics Year-on-Year
- Average area value
- 251,250.00 £Decreased by 14.94 %
- Est sale value
- 217,849.50 £Decreased by 1.33 %
- Average area rental value
- 1,138.00 £/moIncreased by 4.88 %
- Est letting value
- 733.50 £/moUnchanged by 0.00 %
- Est rental Yield
- 5.44 %Increased by 23.36 %
- Crime Rate
- 1.00 %Unchanged by 0.00 %
Agent Activity
Sensible Move marked this listing as sold.
Sensible Move created the listing.
Nearby Schools
| Name | Type | Ofsted | Distance |
|---|---|---|---|
| Austin Farm Academy | Academy Sponsor Led | Requires improvement | 0.12 KM |
| Crownlands Children'S Centre | Children's Centre | 0.13 KM | |
| St Edward'S Cofe Primary School | Academy Converter | Good | 0.73 KM |
| D.E.L.L. Children'S Centre | Children's Centre | 1.22 KM | |
| Laira Green Primary School | Community School | Requires improvement | 1.44 KM |
Images
Nearby Streets
| Name | Average Price | Average Sqft | Distance |
|---|---|---|---|
| Florida Gardens | £ 0 | 0 | 0.00 KM |
| Cardigan Road | £ 0 | 0 | 0.00 KM |
| Carisbrooke Road | £ 325,000 | 0 | 0.00 KM |
| Petersfield Close | £ 0 | 0 | 0.00 KM |
| Greatfield Road | £ 0 | 0 | 0.00 KM |
Nearby Transport
| Name | NLC | TLC | Distance |
|---|---|---|---|
| Plymouth | 3580 | PLY | 4.61 KM |
| Devonport | 3579 | DPT | 7.42 KM |
| Dockyard (Devonport) | 3588 | DOC | 7.88 KM |
| Keyham | 3571 | KEY | 8.15 KM |
| St Budeaux Ferry Road | 3590 | SBF | 8.93 KM |
Nearby Listings
| Address | Price | Type | Score | Distance |
|---|---|---|---|---|
| Greystoke Avenue, Plymouth, Devon, PL6 5UL | £ 158,000 | BUY | 5 / 10 | 0.00 KM |
| Greystoke Avenue, Plymouth | £ 220,000 | BUY | 7 / 10 | 0.03 KM |
| Eggbuckland, Plymouth | £ 200,000 | BUY | 7 / 10 | 0.05 KM |
| Delamere Road, Austin Farm | £ 185,000 | BUY | 6 / 10 | 0.18 KM |
| Shallowford Close, Plymouth Stunning Three Bedroom Detached Home | £ 400,000 | BUY | 6 / 10 | 0.22 KM |
Nearby Properties
| Address | Price | Distance |
|---|---|---|
| 1 Greystoke Avenue | £ 123,000 | 0.00 KM |
| 25 Greystoke Avenue | £ 176,000 | 0.00 KM |
| 9 Greystoke Avenue | £ 170,000 | 0.00 KM |
| 23 Greystoke Avenue | £ 128,000 | 0.00 KM |
| 22 Greystoke Avenue | £ 129,000 | 0.00 KM |