PR
Queens Crescent, Livingston
By Property Connections
£ 125,000
Reviews
3 out of 5 stars
Property Connections says ..
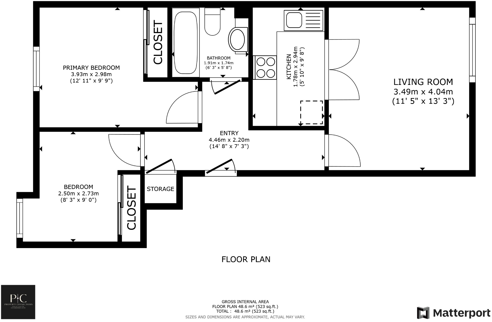
Discover this two-bedroom second-floor apartment in Livingston, offering spacious living, a contemporary kitchen, and excellent transport links. Perfect for first-time buyers or investors.
Property Oracle says ..
The property is a 2-bedroom flat located in Queens Crescent, Livingston North, West Lothian.
Therefore, we give this property 6 / 10. *Disclaimer: This is our option and does constitute a recommendation or financial advice. Do your own research. *
- Price
- 9
- Condition
- 8
- Location
- 7
- Land
- 1
- Bedrooms
- 2
- Bathrooms
- 1
- Sqft (est)
- 548.88
The heatmap indicates the level of crime in the area. The color of the heatmap indicates the crime severity and recency.
Metrics Year-on-Year
- Average area value
- 712,500.00 £Increased by 63.65 %
- Est sale value
- 195,401.28 £Increased by 11.95 %
- Average area rental value
- 1,330.00 £/moIncreased by 17.28 %
- Est letting value
- 0.00 £/mo
- Est rental Yield
- 2.24 %Decreased by 28.43 %
- Crime Rate
- 0.00 %
from 435,374.00 £
from 174,543.84 £
from 1,134.00 £/mo
from 0.00 £/mo
from 3.13 %
from 0.00 %
Agent Activity
Property Connections marked this listing as sold.
Property Connections created the listing.
Images
Nearby Streets
| Name | Average Price | Average Sqft | Distance |
|---|---|---|---|
| Deans East Road | £ 0 | 0 | 0.00 KM |
| Ladywood Place | £ 400,000 | 0 | 0.00 KM |
| Rosebery Place | £ 0 | 0 | 0.00 KM |
| Alderstone Road | £ 0 | 0 | 0.00 KM |
| Coatdyke Crescent | £ 310,000 | 0 | 0.00 KM |
Nearby Transport
| Name | NLC | TLC | Distance |
|---|---|---|---|
| Livingston North | 9371 | LSN | 0.30 KM |
| Uphall | 9373 | UHA | 4.96 KM |
| Livingston South | 9372 | LVG | 5.48 KM |
| West Calder | 9250 | WCL | 5.76 KM |
| Addiewell | 9310 | ADW | 9.43 KM |
Nearby Listings
| Address | Price | Type | Score | Distance |
|---|---|---|---|---|
| Queens Crescent, Livingston | £ 125,000 | BUY | 6 / 10 | 0.00 KM |
| Queens Crescent, Livingston, West Lothian, EH54 | £ 140,000 | BUY | 6 / 10 | 0.04 KM |
| Queens Crescent, Livingston, West Lothian, EH54 | £ 143,000 | BUY | 6 / 10 | 0.05 KM |
| Queens Crescent, Eliburn, Livingston, EH54 8EF | £ 129,000 | BUY | 6 / 10 | 0.07 KM |
| Queens Crescent, Livingston, EH54 8EF | £ 125,000 | BUY | 6 / 10 | 0.07 KM |