LA
Holytown Road, Motherwell, ML1
By Lanarkshire Law Estate Agents Limited
£ 129,995
Reviews
3 out of 5 stars
Lanarkshire Law Estate Agents Limited says ..
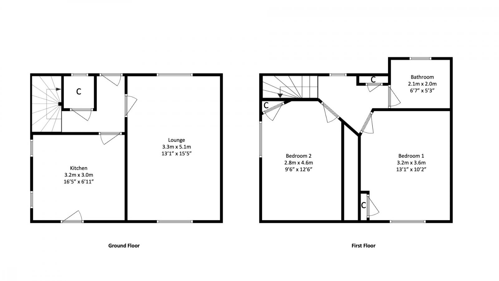
Welcome to Holytown Road, this beautifully presented two-bedroom semi-detached family home offers a perfect blend of modern living and comfortable style. This charming home is presented to the market in turn-key condition and early viewing is highly recommended.
Property Oracle says ..
Therefore, we give this property 7 / 10. *Disclaimer: This is our option and does constitute a recommendation or financial advice. Do your own research. *
- Price
- 8
- Condition
- 8
- Location
- 6
- Land
- 7
- Bedrooms
- 2
- Bathrooms
- 1
- Sqft (est)
- 592.34
The heatmap indicates the level of crime in the area. The color of the heatmap indicates the crime severity and recency.
Metrics Year-on-Year
- Average area value
- 204,776.00 £Decreased by 22.85 %
- Est sale value
- 185,402.42 £Increased by 70.11 %
- Average area rental value
- 638.00 £/moDecreased by 23.32 %
- Est letting value
- 0.00 £/mo
- Est rental Yield
- 3.74 %Decreased by 0.53 %
- Crime Rate
- 0.00 %
from 265,442.00 £
from 108,990.56 £
from 832.00 £/mo
from 0.00 £/mo
from 3.76 %
from 0.00 %
Agent Activity
Lanarkshire Law Estate Agents Limited created the listing.
Images
Nearby Streets
| Name | Average Price | Average Sqft | Distance |
|---|---|---|---|
| Hermes Way | £ 0 | 0 | 0.00 KM |
| Albert Quadrant | £ 0 | 0 | 0.00 KM |
| Triton Place | £ 0 | 0 | 0.00 KM |
| Neptune Way | £ 255,000 | 0 | 0.00 KM |
| Park Avenue | £ 117,000 | 0 | 0.00 KM |
Nearby Transport
| Name | NLC | TLC | Distance |
|---|---|---|---|
| Holytown | 9738 | HLY | 1.43 KM |
| Carfin | 9877 | CRF | 3.42 KM |
| Motherwell | 9691 | MTH | 3.46 KM |
| Airbles | 9695 | AIR | 4.39 KM |
| Bellshill | 9714 | BLH | 4.51 KM |
Nearby Listings
| Address | Price | Type | Score | Distance |
|---|---|---|---|---|
| Holytown Road, Motherwell, ML1 | £ 129,995 | BUY | 7 / 10 | 0.00 KM |
| Woodhall Avenue, Holytown, Motherwell, ML1 | £ 79,995 | BUY | 7 / 10 | 0.20 KM |
| Holly Grove, Bellshill, ML4 | £ 100,000 | BUY | 7 / 10 | 0.22 KM |
| Woodlands Drive, Motherwell, ML1 | £ 170,000 | BUY | 7 / 10 | 0.34 KM |
| 24 Holytown Road, Bellshill, ML4 | £ 185,000 | BUY | Unknown | 0.39 KM |