Watford Road, Wembley
DA

Watford Road, Wembley

By Daniels

£ 490,000

Reviews

3 out of 5 stars

Daniels says ..

Daniels are appointed sole agents on this delightful two-bedroom cottage which has been brought to market ready to move into. Presented to a high standard internally the property benefits from a ground floor extension and boasts off street parking for two cars at the rear of the garden. Internal ...

Property Oracle says ..

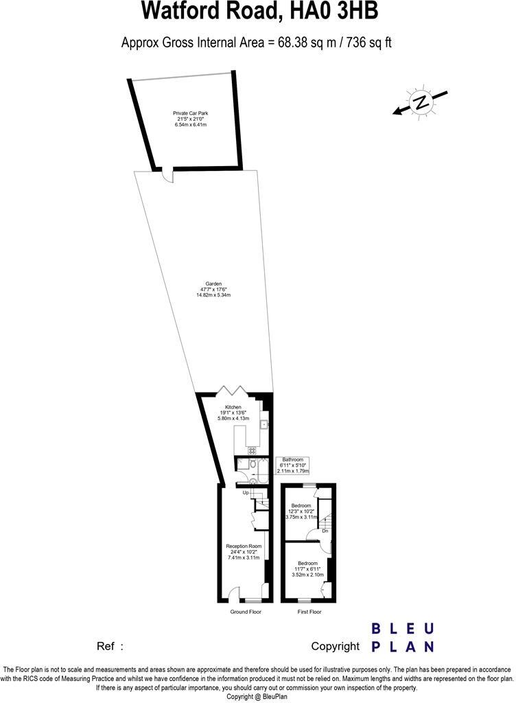
This property is a 2 bedroom, 1 bathroom terraced house located on Watford Road in Wembley, Brent. The property benefits from a modern extension to the rear, creating a spacious kitchen/diner with bi-fold doors opening onto a garden. The property is well presented and has been recently updated. It is conveniently located close to Sudbury Hill Harrow and Sudbury & Harrow Road train stations, offering good transport links. There are also several well-regarded primary schools within walking distance. The average property price in the area is £461,344, with an average price per sqft of £526. This property is listed at £490,000 and has 736 sqft of living space. While the price per sqft is slightly above average, the recent modernisation and convenient location may justify the slightly higher price.

Therefore, we give this property 7 / 10. *Disclaimer: This is our option and does constitute a recommendation or financial advice. Do your own research. *

Price
7
Condition
9
Location
8
Land
7
Bedrooms
2
Bathrooms
1
Sqft (est)
736.04

The heatmap indicates the level of crime in the area. The color of the heatmap indicates the crime severity and recency.

Metrics Year-on-Year

Average area value
497,772.00 £
Increased by 11.11 %
from 447,990.00 £
Est sale value
440,887.96 £
Increased by 37.70 %
from 320,177.40 £
Average area rental value
1,863.00 £/mo
Decreased by 5.72 %
from 1,976.00 £/mo
Est letting value
1,472.08 £/mo
Increased by 100.00 %
from 736.04 £/mo
Est rental Yield
4.49 %
Decreased by 15.12 %
from 5.29 %
Crime Rate
15.00 %
Unchanged by 0.00 %
from 15.00 %

Agent Activity

  • Daniels created the listing.

Nearby Schools

NameTypeOfstedDistance
Sudbury Primary SchoolAcademy ConverterGood0.18 KM
Wembley High Technology CollegeAcademy Converter1.01 KM
Byron Court Primary SchoolCommunity SchoolOutstanding1.27 KM
North Brent SchoolFree Schools1.32 KM
East Lane Primary SchoolAcademy ConverterOutstanding1.32 KM

Images

172 Watford Road - uhTk0ovKzmRpBQPBLT6L.jpg 172 Watford Road - gFRKarIcAKAJLiDjqk5h.jpg 172 Watford Road - 4YfT25FrnrHQ5FwjreTh.jpg 172 Watford Road - 8feJ81LWJ25rHgmDLxV5.jpg 172 Watford Road - Hvyg7mFwgaGLahyXm4rl.jpg 172 Watford Road - 0pvIjdJGZFbRtQJ6Cchz.jpg 172 Watford Road - TEcu8p4o1nsyWkMqwM8Q.jpg 172 Watford Road - bO5UUoiHQeCw3SN7Q2r0.jpg 172 Watford Road - Yt37fpEjU47hec6De9Pf.jpg 172 Watford Road - W8z4i6Jy4I3AGVRx6VtM.jpg 172 Watford Road - tePyD7LcVfiRRkhhmwDN.jpg

Nearby Streets

NameAverage PriceAverage SqftDistance
Pasture Close £ 916,66700.00 KM
Rowan Close £ 000.00 KM
Elms Lane £ 499,95000.00 KM
Chestnut Avenue £ 621,66700.00 KM
St. Andrews Avenue £ 000.00 KM

Nearby Transport

NameNLCTLCDistance
Sudbury And Harrow Road1483SUD0.90 KM
South Kenton1453SOK1.57 KM
North Wembley1422NWB1.72 KM
Sudbury Hill Harrow1484SDH1.83 KM
Kenton1399KNT2.29 KM

Nearby Listings

AddressPriceTypeScoreDistance
Watford Road, Wembley £ 490,000BUY7 / 100.00 KM
Watford Road, Wembley, HA0 £ 475,000BUY6 / 100.01 KM
Court Parade, East Lane, Wembley, HA0 3HS £ 175,000BUY4 / 100.07 KM
OVER 60'S £ 225,000BUY6 / 100.10 KM
Bishops Court, Watford Road, Wembley, Middlesex HA0 £ 210,000BUYUnknown0.10 KM

Nearby Properties

AddressPriceDistance
184 Watford Road £ 240,0000.01 KM
115 Watford Road £ 245,0000.08 KM
127 Watford Road £ 386,7000.08 KM
121 Watford Road £ 320,0000.09 KM
129 Watford Road £ 760,0000.09 KM