Lynton Road, Hythe, Kent
By Rogans Estate Agents
£ 360,000
Reviews
3 out of 5 stars
Rogans Estate Agents says ..
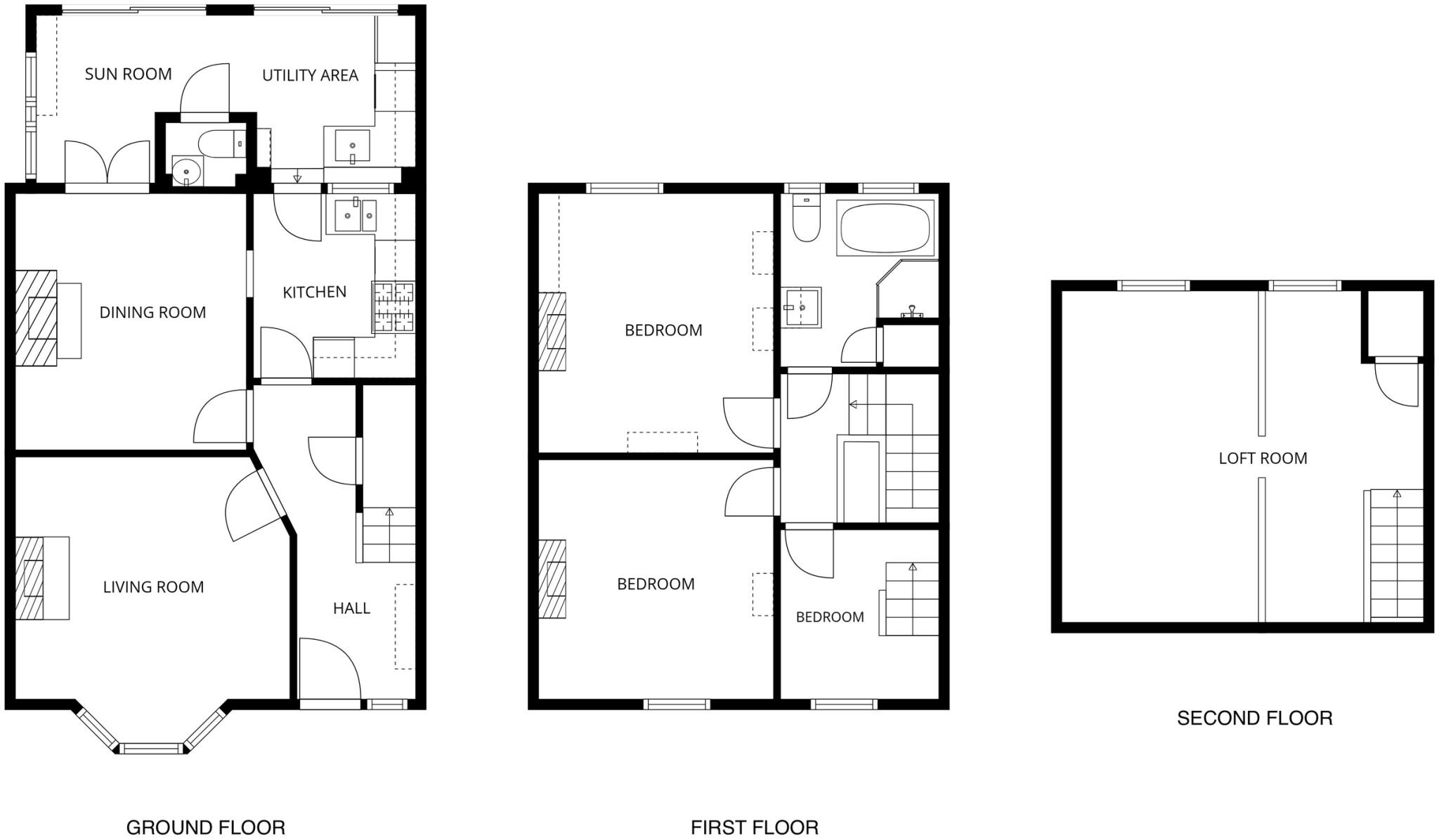
A charming three bedroom end-terraced home with additional loft room, conveniently located close to Hythe town centre. The property comprises an entrance hall, living room, dining room, kitchen, cloakroom and sun room with utility area to the ground floor, with three bedrooms and a family bathroo...
Property Oracle says ..
This is a three-bedroom end-of-terrace house located on Lynton Road in Hythe, Kent. The property is within walking distance of Hythe Bay Cofe Primary School and is approximately 3.07km from Sandling train station. The house has a good-sized garden with a shed and a decked area. The property appears to be in reasonable condition, but could benefit from some modernisation. The kitchen and bathroom, in particular, look dated. The property is listed for £360,000, which seems reasonable given its location, size, and condition.
Therefore, we give this property 7 / 10. *Disclaimer: This is our option and does constitute a recommendation or financial advice. Do your own research. *
- Price
- 8
- Condition
- 6
- Location
- 7
- Land
- 7
- Bedrooms
- 3
- Bathrooms
- 1
- Sqft (est)
- 1,400.00
The heatmap indicates the level of crime in the area. The color of the heatmap indicates the crime severity and recency.
Metrics Year-on-Year
- Average area value
- 695,750.00 £Increased by 35.80 %
- Est sale value
- 816,200.00 £Increased by 15.22 %
- Average area rental value
- 1,400.00 £/moDecreased by 11.56 %
- Est letting value
- 1,400.00 £/moUnchanged by 0.00 %
- Est rental Yield
- 2.41 %Decreased by 35.04 %
- Crime Rate
- 22.00 %Unchanged by 0.00 %
Agent Activity
Rogans Estate Agents created the listing.
Nearby Schools
| Name | Type | Ofsted | Distance |
|---|---|---|---|
| Hythe Bay Children'S Centre | Children's Centre | 0.42 KM | |
| Hythe Bay Cofe Primary School | Voluntary Controlled School | Good | 0.51 KM |
| Saltwood Cofe Primary School | Voluntary Aided School | Outstanding | 1.42 KM |
| St Augustine'S Catholic Primary School | Voluntary Aided School | Good | 1.62 KM |
| Brockhill Park Performing Arts College | Academy Converter | Good | 2.38 KM |
Images
Nearby Streets
| Name | Average Price | Average Sqft | Distance |
|---|---|---|---|
| Chapel Mews | £ 0 | 0 | 0.00 KM |
| St. Leonards Mews | £ 0 | 0 | 0.00 KM |
| Mount Street | £ 325,000 | 0 | 0.00 KM |
| The Tile House | £ 0 | 0 | 0.00 KM |
| Oak Hill Passage | £ 1,250,000 | 0 | 0.00 KM |
Nearby Transport
| Name | NLC | TLC | Distance |
|---|---|---|---|
| Sandling | 5025 | SDG | 3.07 KM |
| Westenhanger | 5030 | WHA | 5.74 KM |
| Folkestone West | 5027 | FKW | 8.12 KM |
| Folkestone Central | 5035 | FKC | 9.77 KM |
Nearby Listings
| Address | Price | Type | Score | Distance |
|---|---|---|---|---|
| Lynton Road, Hythe, Kent | £ 360,000 | BUY | 7 / 10 | 0.00 KM |
| Lynton Road, Hythe, Kent | £ 425,000 | BUY | 6 / 10 | 0.01 KM |
| Lynton Road, Hythe, Kent, CT21 | £ 410,000 | BUY | 7 / 10 | 0.02 KM |
| Stade Street, Hythe | £ 400,000 | BUY | 7 / 10 | 0.07 KM |
| Park Road, Hythe, Kent, CT21 | £ 325,000 | BUY | 6 / 10 | 0.07 KM |
Nearby Properties
| Address | Price | Distance |
|---|---|---|
| Lynton House | £ 441,730 | 0.02 KM |
| 7 Lynton Road | £ 315,000 | 0.02 KM |
| 16 Lynton Road | £ 229,500 | 0.02 KM |
| 9 Lynton Road | £ 325,000 | 0.02 KM |
| 15 Lynton Road | £ 197,000 | 0.02 KM |