Halstead Walk, Allington, Maidstone, ME16
By Hatch Batten Estates
£ 330,000
Reviews
2 out of 5 stars
Hatch Batten Estates says ..
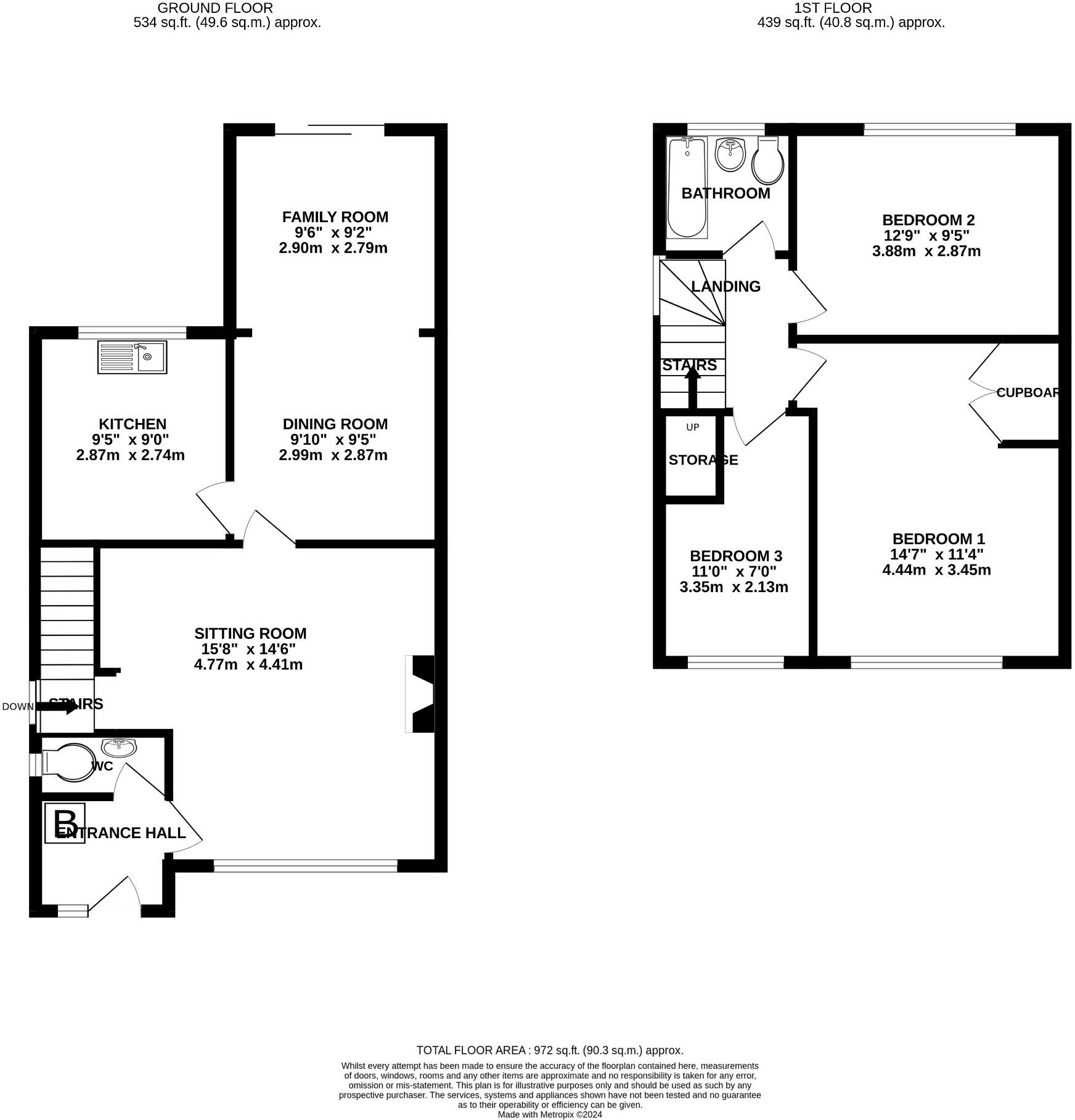
EXTENDED SEMI-DETACHED HOUSE.THREE BEDROOMS AND BATHROOM.LIVING ROOM. DINING ROOM AND FAMILY ROOM.KITCHEN AND DOWNSTAIRS CLOAKROOM.FRONT AND REAR GARDENS.GARAGE EN-BLOC.
Property Oracle says ..
This three-bedroom semi-detached house in Allington, Maidstone is listed at £330,000. The property is conveniently located near several primary schools, making it attractive to families. The train station is within reasonable distance. While the images show a garden, its size is not defined in the property details. The interior images reveal a property that appears lived-in and in need of modernisation. The décor is outdated and could benefit significantly from refurbishment. The kitchen and bathrooms appear functional but are in need of updating to modern standards. The property’s overall condition is satisfactory but doesn’t reach a premium level. While the listed price seems competitive with other properties in the immediate vicinity, further investigation into comparable properties with precise square footage is needed for a conclusive valuation. The lack of precise square footage information for comparable properties prevents a conclusive assessment of the price per square foot and thus the value of the property. Overall, it presents as a suitable family home requiring some updating and investment.
Therefore, we give this property 5 / 10. *Disclaimer: This is our option and does constitute a recommendation or financial advice. Do your own research. *
- Price
- 7
- Condition
- 5
- Location
- 7
- Land
- 4
- Bedrooms
- 3
- Bathrooms
- 1
- Sqft (est)
- 971.98
The heatmap indicates the level of crime in the area. The color of the heatmap indicates the crime severity and recency.
Metrics Year-on-Year
- Average area value
- 444,370.00 £Decreased by 0.41 %
- Est sale value
- 531,673.06 £Increased by 35.06 %
- Average area rental value
- 1,706.00 £/moIncreased by 21.86 %
- Est letting value
- 1,943.96 £/moIncreased by 100.00 %
- Est rental Yield
- 4.61 %Increased by 22.61 %
- Crime Rate
- 7.00 %Unchanged by 0.00 %
Agent Activity
Hatch Batten Estates marked this listing as sold.
Hatch Batten Estates created the listing.
Nearby Schools
| Name | Type | Ofsted | Distance |
|---|---|---|---|
| Allington Primary School | Academy Converter | 0.24 KM | |
| Palace Wood Primary School | Community School | Good | 0.68 KM |
| St Francis' Catholic Primary School, Maidstone | Voluntary Aided School | Good | 1.77 KM |
| St Simon Stock Catholic School | Academy Converter | Good | 1.84 KM |
| The Maplesden Noakes School | Academy Converter | Good | 1.90 KM |
Images
Nearby Streets
| Name | Average Price | Average Sqft | Distance |
|---|---|---|---|
| Beauelieu Walk | £ 0 | 0 | 0.00 KM |
| Woodpecker Close | £ 0 | 0 | 0.00 KM |
| Nursery Avenue | £ 583,333 | 0 | 0.00 KM |
| Newbury Avenue | £ 345,000 | 0 | 0.00 KM |
| Wyatt Road | £ 0 | 0 | 0.00 KM |
Nearby Transport
| Name | NLC | TLC | Distance |
|---|---|---|---|
| Barming | 5133 | BMG | 1.89 KM |
| Maidstone Barracks | 5237 | MDB | 2.46 KM |
| Maidstone West | 5222 | MDW | 3.08 KM |
| Maidstone East | 5115 | MDE | 3.14 KM |
| Aylesford | 5162 | AYL | 3.50 KM |
Nearby Listings
| Address | Price | Type | Score | Distance |
|---|---|---|---|---|
| Halstead Walk, Allington, Maidstone, ME16 | £ 330,000 | BUY | 5 / 10 | 0.00 KM |
| Halstead Walk, Maidstone | £ 300,000 | BUY | 6 / 10 | 0.01 KM |
| Eastry Close, Allington, ME16 | £ 475,000 | BUY | 7 / 10 | 0.05 KM |
| Chilham Road, Maidstone, Kent | £ 475,000 | BUY | 6 / 10 | 0.10 KM |
| Hildenborough Crescent, Allington, Maidstone ME16 | £ 290,000 | BUY | 6 / 10 | 0.11 KM |
Nearby Properties
| Address | Price | Distance |
|---|---|---|
| 52 Halstead Walk | £ 262,500 | 0.00 KM |
| 54 Halstead Walk | £ 235,000 | 0.00 KM |
| 60 Halstead Walk | £ 265,000 | 0.00 KM |
| 64 Halstead Walk | £ 220,000 | 0.00 KM |
| 92 Halstead Walk | £ 240,500 | 0.00 KM |