Market St Homes says ..
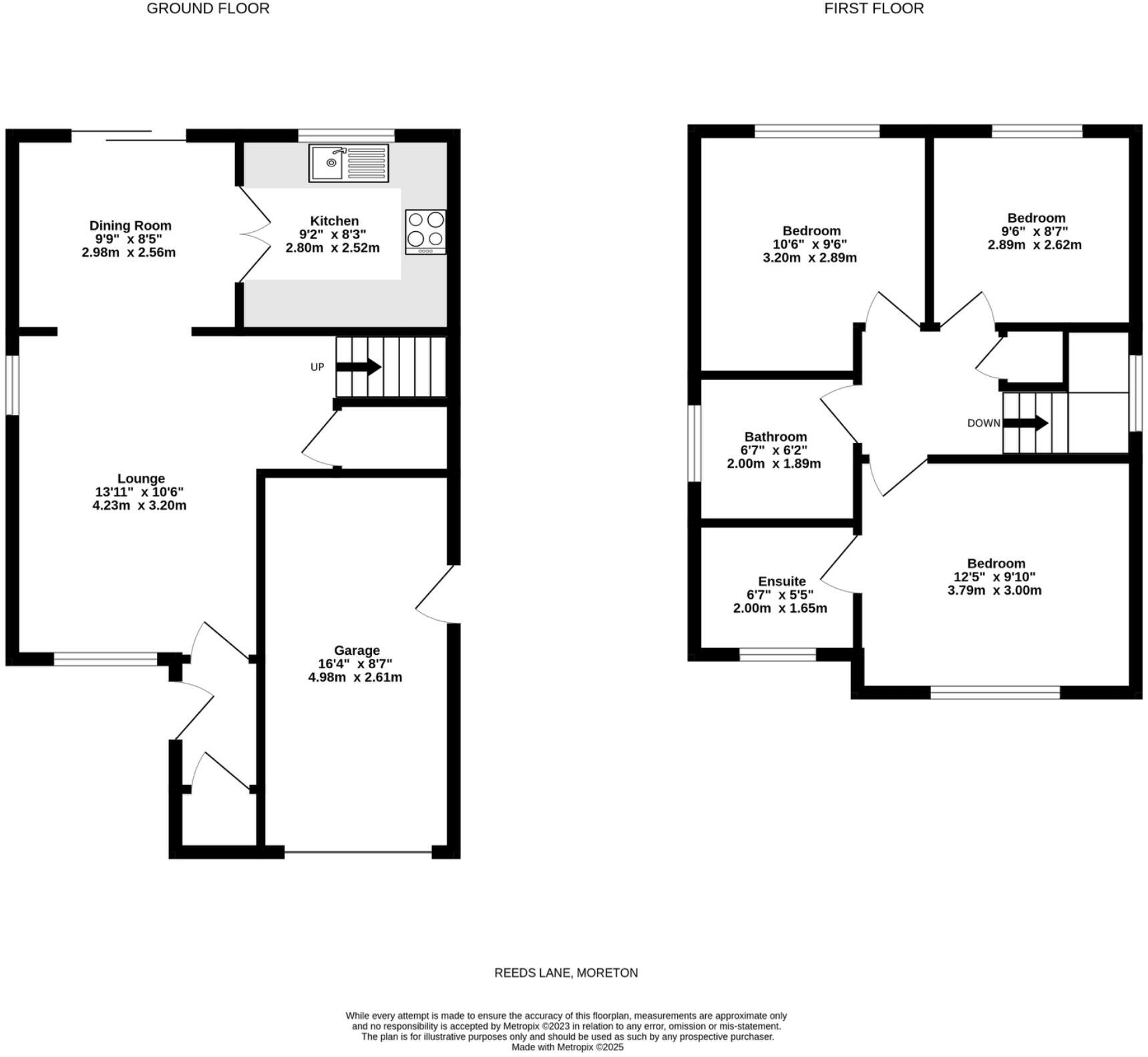
3 Bed detached house with 2 bathrooms. Conveniently located walking distance to station.The property has a through lounge to dining room with double doors to kitchen, 3 bedrooms the master with en suite.Outside to the front is a driveway and garage , and sunny rear garden.
Property Oracle says ..
The property is located in Leasowe And Moreton East, Wirral, Merseyside. It is a three-bedroom, two-bathroom detached house with a list price of £250,000. The property has a plot size of 0.00 sqft and is 909.55 sqft in size.
The property appears to be in good condition. The interior is clean and well-maintained and the exterior is also in good condition. The garden is relatively small but well-maintained.
The location is good. The property is close to several schools, including Clare Mount Specialist Sports College (Outstanding Ofsted rating) and Orrets Meadow School (Outstanding Ofsted rating), and is also within easy reach of several train stations, including Leasowe station.
Considering the condition of the property, the location, and the size of the plot, the list price of £250,000 seems reasonable. The average price for a property in the area is £242,906, and the average price per square foot is £249. This property is slightly smaller than average but the price is in line with other nearby properties. The slightly smaller than average size and the lack of significant additional features may justify the price being slightly below the average for the area.
Based on the images provided, the property includes a garage.
Therefore, we give this property 6 / 10. *Disclaimer: This is our option and does constitute a recommendation or financial advice. Do your own research. *
- Price
- 7
- Condition
- 8
- Location
- 7
- Land
- 4
- Bedrooms
- 3
- Bathrooms
- 2
- Sqft (est)
- 909.55
The heatmap indicates the level of crime in the area. The color of the heatmap indicates the crime severity and recency.
Metrics Year-on-Year
- Average area value
- 240,833.00 £Increased by 22.31 %
- Est sale value
- 231,935.25 £Increased by 64.52 %
- Average area rental value
- 1,167.00 £/moIncreased by 34.60 %
- Est letting value
- 909.55 £/mo
- Est rental Yield
- 5.81 %Increased by 10.04 %
- Crime Rate
- 5.00 %Unchanged by 0.00 %
Agent Activity
Market St Homes created the listing.
Nearby Schools
| Name | Type | Ofsted | Distance |
|---|---|---|---|
| Clare Mount Specialist Sports College | Community Special School | Outstanding | 0.19 KM |
| Sacred Heart Catholic Primary School | Voluntary Aided School | Good | 0.53 KM |
| Sandbrook Primary School | Community School | Requires improvement | 0.79 KM |
| Orrets Meadow School | Community Special School | Outstanding | 0.85 KM |
| Eastway Primary School | Community School | Requires improvement | 0.89 KM |
Images
Nearby Streets
| Name | Average Price | Average Sqft | Distance |
|---|---|---|---|
| Avondale Avenue | £ 330,000 | 0 | 0.00 KM |
| Willow Way | £ 650,000 | 0 | 0.00 KM |
| Copps Mead | £ 280,000 | 0 | 0.00 KM |
| Frobisher Road | £ 159,200 | 0 | 0.00 KM |
| Witley Avenue | £ 0 | 0 | 0.00 KM |
Nearby Transport
| Name | NLC | TLC | Distance |
|---|---|---|---|
| Leasowe | 2237 | LSW | 0.18 KM |
| Moreton (Merseyside) | 2151 | MRT | 1.64 KM |
| Bidston | 2136 | BID | 2.24 KM |
| Upton (Merseyside) | 2141 | UPT | 2.76 KM |
| Wallasey Village | 2265 | WLV | 3.73 KM |
Nearby Listings
| Address | Price | Type | Score | Distance |
|---|---|---|---|---|
| Reeds Lane, CH46 | £ 250,000 | BUY | 6 / 10 | 0.00 KM |
| Reeds Lane, Moreton, Wirral | £ 350,000 | BUY | 6 / 10 | 0.11 KM |
| Marram Close, Moreton, Wirral | £ 200,000 | BUY | 7 / 10 | 0.13 KM |
| Kingsmead Road, Moreton | £ 170,000 | BUY | 7 / 10 | 0.17 KM |
| Daneswell Drive, Wirral, Merseyside | £ 200,000 | BUY | 6 / 10 | 0.20 KM |
Nearby Properties
| Address | Price | Distance |
|---|---|---|
| 192 Reeds Lane | £ 185,000 | 0.00 KM |
| 182 Reeds Lane | £ 168,000 | 0.00 KM |
| 180 Reeds Lane | £ 180,000 | 0.00 KM |
| 155 Reeds Lane | £ 205,000 | 0.07 KM |
| 161 Reeds Lane | £ 143,000 | 0.07 KM |