Dunster Gardens, London
By Excel Property Services
£ 525,000
Reviews
4 out of 5 stars
Excel Property Services says ..
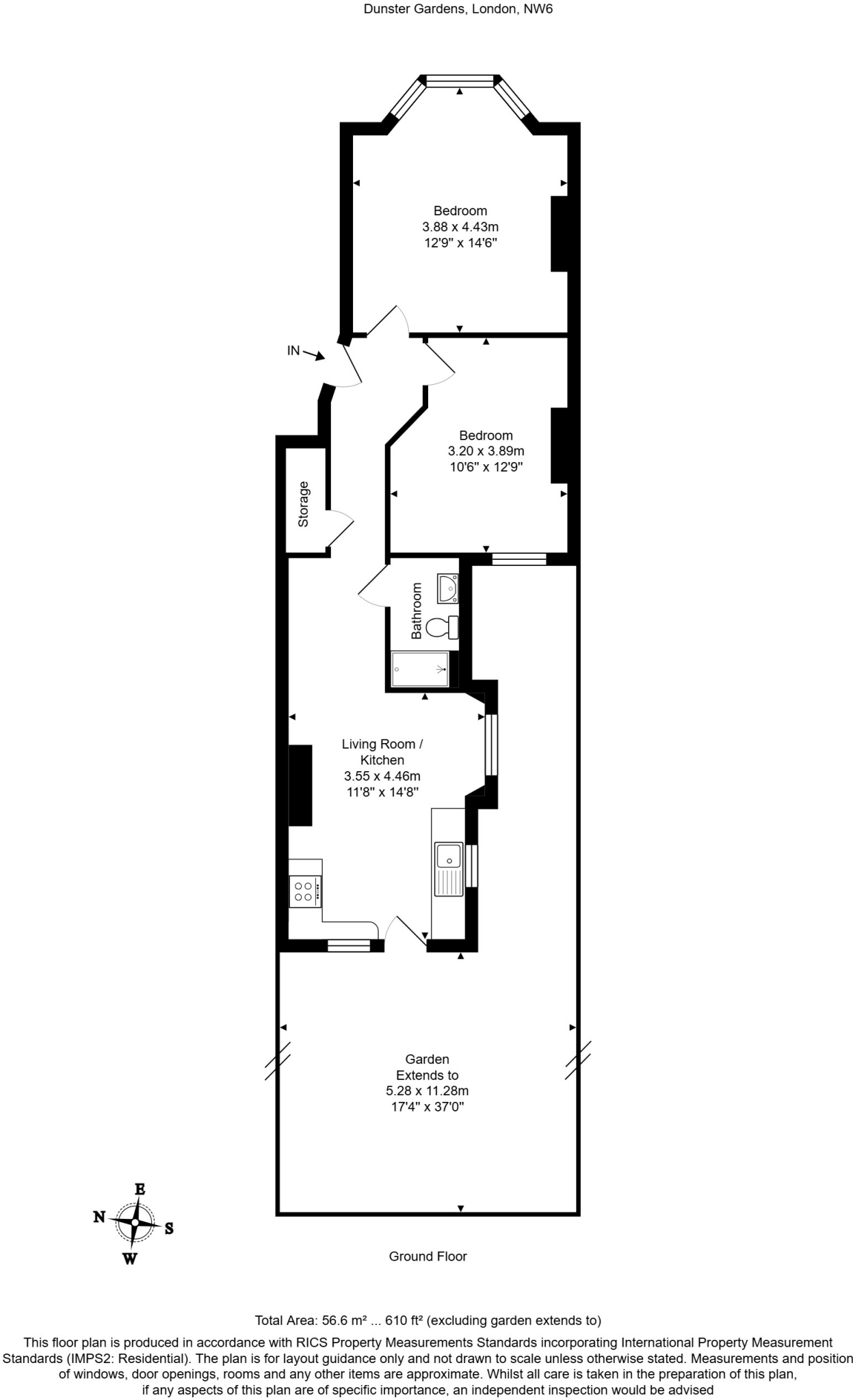
Two Double Bedrooms | Period Conversion | Private Rear Garden | Open-Plan Kitchen / Living Room | Fully Tiled Bathroom | 0.3m From Kilburn Tube Station | Period Features | Easy Reach Of Green Open Spaces | Potential To Extend STPP & Freeholder Consent
Property Oracle says ..
This property is a 2-bedroom apartment located in Kilburn, London. The apartment benefits from a private garden, which is a desirable feature in this area. The location is convenient, with several transportation options nearby, including the London Overground and Underground. There are also a number of well-regarded schools within a reasonable distance. The list price is below the average price for the area, and given the size of the property and its features, it appears to be reasonably priced. However, further investigation into the specific condition of the property would be needed to confirm this assessment. The images show a property that is well-maintained and presented.
Therefore, we give this property 8 / 10. *Disclaimer: This is our option and does constitute a recommendation or financial advice. Do your own research. *
- Price
- 8
- Condition
- 8
- Location
- 9
- Land
- 7
- Bedrooms
- 2
- Bathrooms
- 1
- Sqft (est)
- 1,853.55
The heatmap indicates the level of crime in the area. The color of the heatmap indicates the crime severity and recency.
Metrics Year-on-Year
- Average area value
- 598,568.00 £Decreased by 21.57 %
- Est sale value
- 1,314,166.95 £Decreased by 22.77 %
- Average area rental value
- 2,229.00 £/moIncreased by 6.80 %
- Est letting value
- 3,707.10 £/moUnchanged by 0.00 %
- Est rental Yield
- 4.47 %Increased by 36.28 %
- Crime Rate
- 15.00 %Unchanged by 0.00 %
Agent Activity
Excel Property Services created the listing.
Nearby Schools
| Name | Type | Ofsted | Distance |
|---|---|---|---|
| Christ Church Cofe Primary School | Voluntary Aided School | Good | 0.40 KM |
| Kilburn Grange Childrens Centre | Children's Centre | 0.42 KM | |
| Kingsgate Primary School | Community School | Outstanding | 0.51 KM |
| Kilburn Grange School | Free Schools | Good | 0.55 KM |
| Salusbury Primary School | Community School | Good | 0.80 KM |
Images
Nearby Streets
| Name | Average Price | Average Sqft | Distance |
|---|---|---|---|
| Gladstone Mews | £ 0 | 0 | 0.00 KM |
| Grangeway | £ 0 | 0 | 0.00 KM |
| Aldershot Road | £ 0 | 0 | 0.00 KM |
| Kilburn High Road | £ 0 | 0 | 0.00 KM |
| Coral Mews | £ 0 | 0 | 0.00 KM |
Nearby Transport
| Name | NLC | TLC | Distance |
|---|---|---|---|
| Brondesbury | 1437 | BSY | 0.26 KM |
| Brondesbury Park | 1438 | BSP | 0.99 KM |
| Queens Park (London) | 1419 | QPW | 1.08 KM |
| Kilburn High Road | 1415 | KBN | 1.20 KM |
| West Hampstead Thameslink | 1525 | WHP | 1.23 KM |
Nearby Listings
| Address | Price | Type | Score | Distance |
|---|---|---|---|---|
| Dunster Gardens, London | £ 525,000 | BUY | 8 / 10 | 0.00 KM |
| Dunster Gardens, Brondesbury Park | £ 750,000 | BUY | 6 / 10 | 0.03 KM |
| Dunster Gardens, Queen's Park, London, NW6 | £ 450,000 | BUY | Unknown | 0.04 KM |
| Dunster Gardens, Brondesbury, NW6 | £ 630,000 | BUY | 5 / 10 | 0.04 KM |
| Streatley Road, London, NW6 | £ 1,595,000 | BUY | 8 / 10 | 0.05 KM |
Nearby Properties
| Address | Price | Distance |
|---|---|---|
| 3 Dunster Gardens | £ 700,000 | 0.02 KM |
| 9b Dunster Gardens | £ 477,000 | 0.02 KM |
| 36a Dunster Gardens | £ 1,040,000 | 0.04 KM |
| 22 Dunster Gardens | £ 380,000 | 0.04 KM |
| 6 Dunster Gardens | £ 125,000 | 0.04 KM |