Mudeford Lane, Christchurch, Dorset, BH23
By Slades Estate Agents
£ 250,000
Reviews
3 out of 5 stars
Slades Estate Agents says ..
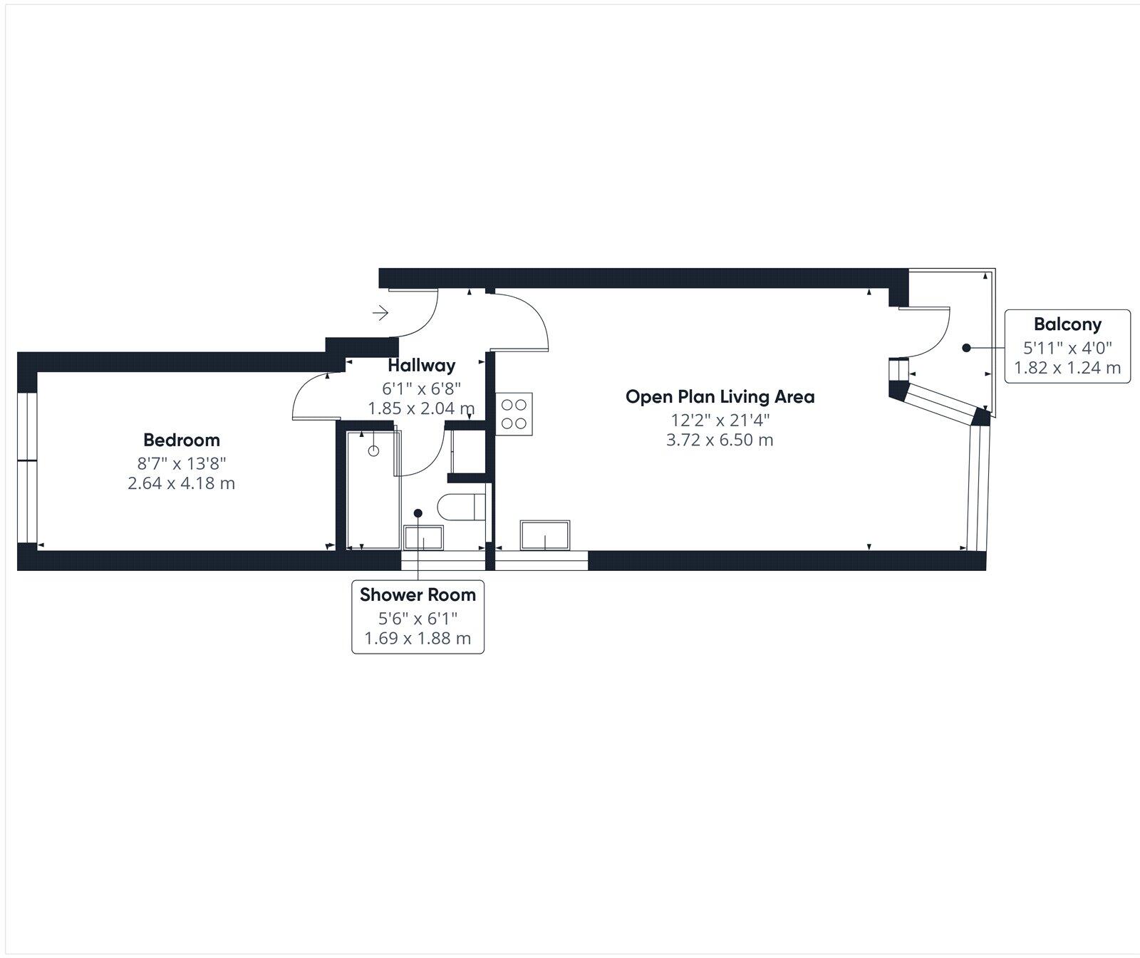
This RECENTLY REFURBISHED TOP FLOOR APARTMENT is situated just a STONES THROW FROM MUDEFORD QUAY and benefits from LOVELY VIEWS towards the water and A GARAGE.
Property Oracle says ..
This property is a one bedroom apartment located in Mudeford, Christchurch. The apartment is in good condition and benefits from having a communal garden and allocated parking. The location is excellent, being close to the beach and local amenities. Mudeford is a popular seaside location with good transport links to Christchurch and Bournemouth. The price of £250,000 is reasonable considering the current market conditions and comparable properties in the area. However, the lack of plot size information makes it difficult to fully assess the value of the property.
Therefore, we give this property 7 / 10. *Disclaimer: This is our option and does constitute a recommendation or financial advice. Do your own research. *
- Price
- 7
- Condition
- 8
- Location
- 9
- Land
- 6
- Bedrooms
- 1
- Bathrooms
- 1
- Sqft (est)
- 743.68
The heatmap indicates the level of crime in the area. The color of the heatmap indicates the crime severity and recency.
Metrics Year-on-Year
- Average area value
- 487,500.00 £Decreased by 12.22 %
- Est sale value
- 464,056.32 £Increased by 41.50 %
- Average area rental value
- 1,970.00 £/moIncreased by 18.96 %
- Est letting value
- 1,487.36 £/moIncreased by 100.00 %
- Est rental Yield
- 4.85 %Increased by 35.47 %
- Crime Rate
- 4.00 %Unchanged by 0.00 %
Agent Activity
Slades Estate Agents created the listing.
Nearby Schools
| Name | Type | Ofsted | Distance |
|---|---|---|---|
| Mudeford Junior School | Community School | Outstanding | 0.59 KM |
| Mudeford Community Infants' School | Community School | Good | 1.28 KM |
| Somerford Primary School | Community School | Good | 1.37 KM |
| Somerford Children'S Centre | Children's Centre | 1.37 KM | |
| St Joseph'S Catholic Primary School, Christchurch | Voluntary Aided School | Good | 1.66 KM |
Images
Nearby Streets
| Name | Average Price | Average Sqft | Distance |
|---|---|---|---|
| Partridge Close | £ 700,000 | 0 | 0.00 KM |
| Briar Close | £ 385,000 | 0 | 0.00 KM |
| Viking Way | £ 0 | 0 | 0.00 KM |
| Mudeford Quay Dinghy Park | £ 0 | 0 | 0.00 KM |
| Mortimer Close | £ 640,000 | 0 | 0.00 KM |
Nearby Transport
| Name | NLC | TLC | Distance |
|---|---|---|---|
| Christchurch | 5879 | CHR | 4.33 KM |
| Hinton Admiral | 5880 | HNA | 4.42 KM |
| Pokesdown | 5885 | POK | 8.70 KM |
Nearby Listings
| Address | Price | Type | Score | Distance |
|---|---|---|---|---|
| Mudeford Lane, Christchurch, Dorset, BH23 | £ 250,000 | BUY | 7 / 10 | 0.00 KM |
| Mudeford Lane, Christchurch, Dorset, BH23 | £ 219,950 | BUY | 6 / 10 | 0.00 KM |
| Flat 10, Sandford House, 151 Mudeford Lane, Christchurch, Bournemouth, BH23 3HR | £ 170,000 | BUY | 6 / 10 | 0.01 KM |
| Flat 10, Sandford House, 151 Mudeford Lane, Christchurch, Bournemouth, BH23 3HR | £ 150,000 | BUY | 6 / 10 | 0.01 KM |
| Mudeford Lane, Christchurch, BH23 | £ 450,000 | BUY | 6 / 10 | 0.01 KM |
Nearby Properties
| Address | Price | Distance |
|---|---|---|
| 149 Mudeford Lane | £ 369,950 | 0.02 KM |
| 115b Mudeford Lane | £ 250,000 | 0.02 KM |
| 117 Mudeford Lane | £ 225,250 | 0.02 KM |
| 115a Mudeford Lane | £ 328,000 | 0.02 KM |
| 125 Mudeford Lane | £ 600,000 | 0.02 KM |