Ben Rose says ..
Ben Rose Estate Agents are pleased to present to market this two-bedroom semi-detached home, located in a quiet and family-friendly area of Leyland, Lancashire. This ideal home offers spacious interiors and a generous garden – perfect for small families or couples. Conveniently situated close to ...
Property Oracle says ..
This property is a 2 bedroom semi-detached house located in Leyland, Lancashire. The property benefits from a good size garden and appears to be well maintained, although the images do not show the full extent of the property. There are several nearby schools with good Ofsted ratings and the property is within a reasonable distance of several train stations. The list price is below the average price for the area, however, the average price per square foot is not available due to the missing sqft data for this property. Therefore, a definitive conclusion on value for money cannot be reached. More information is needed to fully assess the property and provide a complete analysis.
Therefore, we give this property 7 / 10. *Disclaimer: This is our option and does constitute a recommendation or financial advice. Do your own research. *
- Price
- 7
- Condition
- 8
- Location
- 7
- Land
- 7
- Bedrooms
- 2
- Bathrooms
- 1
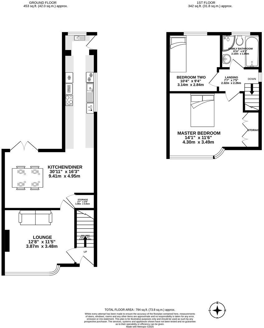
- Lot (est)
- 794.00
The heatmap indicates the level of crime in the area. The color of the heatmap indicates the crime severity and recency.
Metrics Year-on-Year
- Average area value
- 301,650.00 £Increased by 6.02 %
- Average area rental value
- 1,179.00 £/moDecreased by 1.50 %
- Est rental Yield
- 4.69 %Decreased by 7.13 %
- Crime Rate
- 7.00 %Unchanged by 0.00 %
Agent Activity
Ben Rose created the listing.
Nearby Schools
| Name | Type | Ofsted | Distance |
|---|---|---|---|
| Leyland St James Church Of England Primary School | Voluntary Aided School | Good | 0.39 KM |
| Moss Side Primary School | Community School | Outstanding | 0.45 KM |
| Seven Stars Primary School | Community School | Good | 1.02 KM |
| St Anne'S Catholic Primary School | Voluntary Aided School | Requires improvement | 1.02 KM |
| Academy@Worden | Academy Converter | Good | 1.55 KM |
Images
Nearby Streets
| Name | Average Price | Average Sqft | Distance |
|---|---|---|---|
| Moorfield Road | £ 170,000 | 0 | 0.00 KM |
| Paradise Lane | £ 0 | 0 | 0.00 KM |
| Cartmel Road | £ 0 | 0 | 0.00 KM |
| Homestead Close | £ 0 | 0 | 0.00 KM |
| Fairhaven Road | £ 200,000 | 0 | 0.00 KM |
Nearby Transport
| Name | NLC | TLC | Distance |
|---|---|---|---|
| Leyland | 2710 | LEY | 4.44 KM |
| Lostock Hall | 2689 | LOH | 5.66 KM |
| Croston | 2313 | CSO | 6.25 KM |
| Euxton Balshaw Lane | 2080 | EBA | 6.94 KM |
| Buckshaw Parkway | 7501 | BSV | 7.54 KM |
Nearby Listings
| Address | Price | Type | Score | Distance |
|---|---|---|---|---|
| Dunkirk Lane, Leyland | £ 165,000 | BUY | 7 / 10 | 0.00 KM |
| Dunkirk Lane, Leyland, Lancashire, PR26 | £ 130,000 | BUY | 7 / 10 | 0.02 KM |
| Dunkirk lane, Leyland | £ 160,000 | BUY | 7 / 10 | 0.03 KM |
| Parkfield Close, Leyland, Lancashire, PR26 | £ 300,000 | BUY | 7 / 10 | 0.11 KM |
| Pasture Field Close, Leyland, Lancashire, PR26 | £ 200,000 | BUY | 6 / 10 | 0.11 KM |
Nearby Properties
| Address | Price | Distance |
|---|---|---|
| 16 Parkfield Close | £ 163,000 | 0.11 KM |
| 5 Parkfield Close | £ 187,000 | 0.11 KM |
| 8 Parkfield Close | £ 126,000 | 0.11 KM |
| 11 Parkfield Close | £ 198,000 | 0.11 KM |
| 16 Pasture Field Close | £ 135,000 | 0.11 KM |