Gray & Toynbee says ..
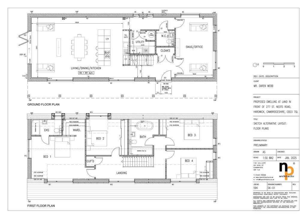
A freehold building plot with full planning permission for a large detached house of about 2160 sq. ft, situated in a popular location about 4 miles from Cambridge. The property is well planned and will have spacious ground-floor accommodation with a large open-plan living space. Upstair...
Property Oracle says ..
This plot of land in Hardwick, Cambridgeshire, presents a development opportunity. The site plan indicates a sizable plot, offering potential for a substantial dwelling. The location benefits from proximity to a primary school but may lack convenient transport links. The list price is lower than the average house price in the area, reflecting the fact that it is a plot rather than a finished property. Further investigation into planning permissions and potential building costs is recommended before making a purchase decision.
Therefore, we give this property 5 / 10. *Disclaimer: This is our option and does constitute a recommendation or financial advice. Do your own research. *
- Price
- 4
- Condition
- 0
- Location
- 6
- Land
- 7
- Bedrooms
- 0
- Bathrooms
- 0
The heatmap indicates the level of crime in the area. The color of the heatmap indicates the crime severity and recency.
Metrics Year-on-Year
- Average area value
- 457,116.00 £Decreased by 2.18 %
- Average area rental value
- 1,475.00 £/moDecreased by 15.71 %
- Est rental Yield
- 3.87 %Decreased by 13.81 %
- Crime Rate
- 85.00 %Unchanged by 0.00 %
Agent Activity
Gray & Toynbee marked this listing as sold.
Gray & Toynbee created the listing.
Nearby Schools
| Name | Type | Ofsted | Distance |
|---|---|---|---|
| Hardwick And Cambourne Community Primary School | Community School | Good | 1.50 KM |
| Caldecote Primary School | Community School | Good | 2.83 KM |
| Dry Drayton Cofe (C) Primary School | Voluntary Controlled School | Requires improvement | 3.41 KM |
| Comberton Village College | Academy Converter | Outstanding | 4.03 KM |
| Meridian Primary School | Community School | Good | 4.39 KM |
Images
Nearby Streets
| Name | Average Price | Average Sqft | Distance |
|---|---|---|---|
| Howells Way | £ 0 | 0 | 0.00 KM |
| Lark Rise | £ 0 | 0 | 0.00 KM |
| Lambourne Road | £ 375,000 | 0 | 0.00 KM |
| Millers' Way | £ 0 | 0 | 0.00 KM |
Nearby Listings
| Address | Price | Type | Score | Distance |
|---|---|---|---|---|
| St. Neots Road, Hardwick | £ 275,000 | BUY | 5 / 10 | 0.00 KM |
| St. Neots Road, Cambridge, CB23 | £ 500,000 | BUY | Unknown | 0.03 KM |
| St. Neots Road, Hardwick | £ 700,000 | BUY | 6 / 10 | 0.07 KM |
| St. Neots Road, Hardwick, Cambridge, Cambridgeshire, CB23 | £ 470,000 | BUY | 7 / 10 | 0.09 KM |
| Meridian Close, Hardwick, Cambridge, Cambridgeshire, CB23 | £ 310,000 | BUY | Unknown | 0.14 KM |
Nearby Properties
| Address | Price | Distance |
|---|---|---|
| 321 St Neots Road | £ 545,000 | 0.04 KM |
| 309 St Neots Road | £ 375,000 | 0.05 KM |
| 325 St Neots Road | £ 260,000 | 0.05 KM |
| 307 St Neots Road | £ 294,300 | 0.05 KM |
| 311 St Neots Road | £ 445,000 | 0.07 KM |