Tredinnick & Bower says ..
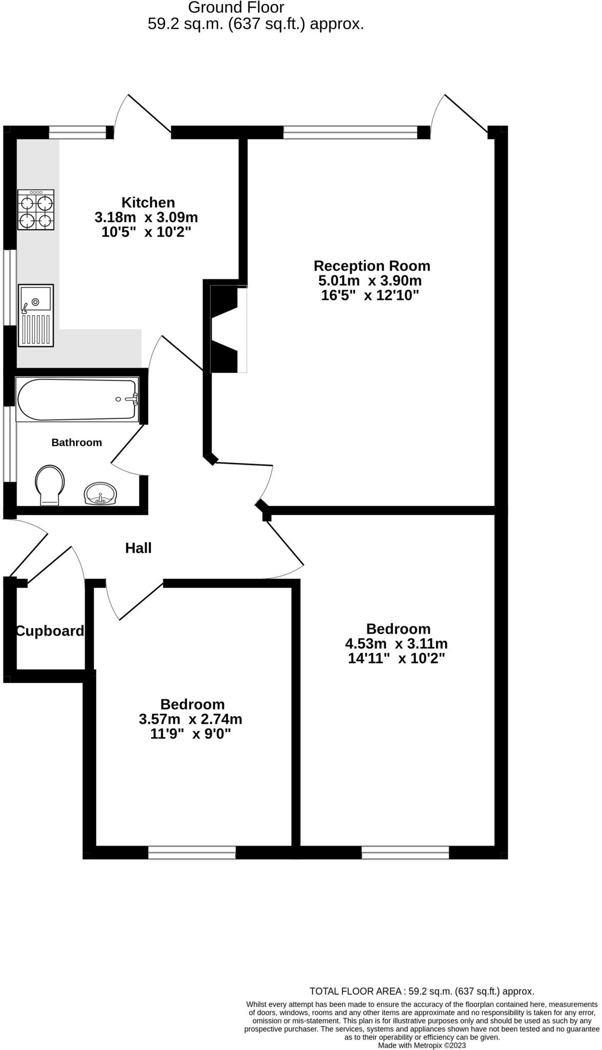
Located in a popular area convenient for the village shops, bus services, station and schools a spacious two double bedroom ground floor maisonette with gas central heating double glazing, living room with fireplace and door to own rear garden, well equipped updated kitchen with door to garden. ...
Property Oracle says ..
This two-bedroom property in Priory Court, Hampton, is presented as a well-maintained home with recent renovations to the kitchen and bathroom. The interior features modern flooring and a clean, updated aesthetic. The property benefits from a small paved rear garden, offering some outdoor space. The location in Hampton is advantageous, with close proximity to highly-rated primary schools and Hampton train station providing convenient links to central London. However, the lack of provided square footage data hinders a complete assessment of value. The price of £400,000 appears reasonable for the area and condition, but further details are needed to determine its precise value for money. The small garden may be a limiting factor for some buyers. Overall, this property represents a solid offering in a desirable location, suitable for a range of buyers, particularly those with young children or valuing convenience to transport links.
Therefore, we give this property 5 / 10. *Disclaimer: This is our option and does constitute a recommendation or financial advice. Do your own research. *
- Price
- 7
- Condition
- 6
- Location
- 7
- Land
- 3
- Bedrooms
- 2
- Bathrooms
- 0
The heatmap indicates the level of crime in the area. The color of the heatmap indicates the crime severity and recency.
Metrics Year-on-Year
- Average area value
- 557,772.00 £Decreased by 25.18 %
- Average area rental value
- 2,626.00 £/moDecreased by 24.91 %
- Est rental Yield
- 5.65 %Increased by 0.36 %
- Crime Rate
- 7.00 %Unchanged by 0.00 %
Agent Activity
Tredinnick & Bower created the listing.
Nearby Schools
| Name | Type | Ofsted | Distance |
|---|---|---|---|
| Hampton Junior School | Community School | Good | 0.20 KM |
| Hampton Infant School And Nursery | Community School | Outstanding | 0.30 KM |
| St Mary'S Hampton Church Of England Primary | Free Schools | Good | 0.45 KM |
| Jack And Jill School | Other Independent School | Outstanding | 0.84 KM |
| Tangley Park Children'S Centre | Children's Centre | 1.03 KM |
Images
Nearby Streets
| Name | Average Price | Average Sqft | Distance |
|---|---|---|---|
| Lower Sunbury Road | £ 70,000 | 0 | 0.00 KM |
| Linear Walk | £ 499,950 | 0 | 0.00 KM |
| Driveway to 5 and 5A Acacia Road | £ 0 | 0 | 0.00 KM |
| Coombe Close | £ 0 | 0 | 0.00 KM |
| Post Office Passage | £ 325,000 | 0 | 0.00 KM |
Nearby Transport
| Name | NLC | TLC | Distance |
|---|---|---|---|
| Hampton | 5560 | HMP | 0.30 KM |
| Fulwell | 5587 | FLW | 3.18 KM |
| Hampton Court | 5561 | HMC | 3.82 KM |
| Whitton | 5611 | WTN | 3.90 KM |
| Kempton Park Racecourse | 5678 | KMP | 4.02 KM |
Nearby Listings
| Address | Price | Type | Score | Distance |
|---|---|---|---|---|
| Hampton | £ 400,000 | BUY | 5 / 10 | 0.00 KM |
| Percy Road, Hampton | £ 400,000 | BUY | Unknown | 0.00 KM |
| Percy Road, Hampton | £ 425,000 | BUY | Unknown | 0.01 KM |
| Percy Road, Hampton | £ 325,000 | BUY | 7 / 10 | 0.06 KM |
| Percy Road, Hampton, TW12 | £ 425,000 | BUY | 6 / 10 | 0.09 KM |
Nearby Properties
| Address | Price | Distance |
|---|---|---|
| 32 Priory Road | £ 2,105,000 | 0.05 KM |
| 75 Percy Road | £ 887,000 | 0.08 KM |
| 81 Percy Road | £ 725,000 | 0.08 KM |
| 47 Priory Road | £ 880,000 | 0.12 KM |
| 49 Priory Road | £ 1,296,000 | 0.12 KM |