Whiteley Helyar says ..
Located a short walk from the city centre this bright and spacious three bedroom maisonette comes with off street parking for two vehicles and small decked garden. This charming property forming the vast majority of this Grade II listed townhouse, it offers over 1300 square feet of versatile a...
Property Oracle says ..
This three-bedroom property in Bath’s Walcot area presents a mixed bag. The location is a significant plus, offering convenient access to transport links, schools, and amenities. The proximity to Bath Spa train station is especially appealing for commuters. However, the property’s condition requires immediate attention. The images reveal that it requires a full refurbishment, including redecoration, kitchen and bathroom upgrades, and potential floor repairs. The lack of extensive garden space could also be a drawback for some buyers. The price of £400,000 reflects the property’s location and size; however, the extensive renovation needed must be factored into the overall cost. A prospective buyer should budget for substantial costs beyond the purchase price. Overall, this property presents a considerable project that may be particularly attractive to buyers willing to undertake a renovation and add value to the property.
Therefore, we give this property 5 / 10. *Disclaimer: This is our option and does constitute a recommendation or financial advice. Do your own research. *
- Price
- 7
- Condition
- 5
- Location
- 7
- Land
- 3
- Bedrooms
- 3
- Bathrooms
- 2
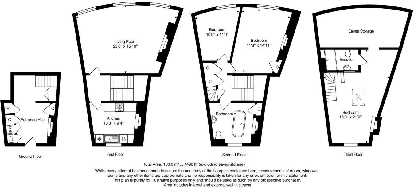
- Sqft (est)
- 1,492.00
The heatmap indicates the level of crime in the area. The color of the heatmap indicates the crime severity and recency.
Metrics Year-on-Year
- Average area value
- 511,667.00 £Decreased by 1.51 %
- Est sale value
- 441,632.00 £Decreased by 31.00 %
- Average area rental value
- 1,296.00 £/moDecreased by 23.76 %
- Est letting value
- 0.00 £/moDecreased by 100.00 %
- Est rental Yield
- 3.04 %Decreased by 22.65 %
- Crime Rate
- 7.00 %Unchanged by 0.00 %
Agent Activity
Whiteley Helyar created the listing.
Nearby Schools
| Name | Type | Ofsted | Distance |
|---|---|---|---|
| St Stephens Church School | Academy Converter | 0.75 KM | |
| Bath Academy | Other Independent School | 0.96 KM | |
| St Andrew'S Church School | Academy Converter | 1.11 KM | |
| Bathwick St Mary Church School | Academy Converter | 1.21 KM | |
| St Mark'S Cofe School | Academy Converter | 1.22 KM |
Images
Nearby Streets
| Name | Average Price | Average Sqft | Distance |
|---|---|---|---|
| Margaret's Hill | £ 350,000 | 0 | 0.00 KM |
| Saint John's Court | £ 0 | 0 | 0.00 KM |
| Upper Hedgemead Road | £ 570,000 | 0 | 0.00 KM |
| Ainslie's Belvedere | £ 0 | 0 | 0.00 KM |
| Paragon Steps | £ 650,000 | 0 | 0.00 KM |
Nearby Transport
| Name | NLC | TLC | Distance |
|---|---|---|---|
| Bath Spa | 3271 | BTH | 1.35 KM |
| Oldfield Park | 3219 | OLF | 2.85 KM |
| Freshford | 3344 | FFD | 8.16 KM |
Nearby Listings
| Address | Price | Type | Score | Distance |
|---|---|---|---|---|
| Cleveland Place West, Bath | £ 400,000 | BUY | 5 / 10 | 0.00 KM |
| Cleveland Cottages, Walcot, Bath | £ 415,000 | BUY | Unknown | 0.03 KM |
| 1 Walcot Terrace, Bath, Somerset, BA1 6AB | £ 140,000 | BUY | 5 / 10 | 0.07 KM |
| Walcot Parade, Walcot, Bath, BA1 | £ 425,000 | BUY | Unknown | 0.07 KM |
| Walcot Parade, Walcot, Bath, BA1 | £ 425,000 | BUY | 5 / 10 | 0.07 KM |
Nearby Properties
| Address | Price | Distance |
|---|---|---|
| 9 Cleveland Place West | £ 207,000 | 0.01 KM |
| 12a Cleveland Place West | £ 297,000 | 0.01 KM |
| 1 Cleveland Cottages | £ 265,000 | 0.04 KM |
| 2 Cleveland Cottages | £ 312,500 | 0.05 KM |
| 3 Cleveland Cottages | £ 102,000 | 0.05 KM |