TW Gaze says ..
Ivy Cottage in Thorndon is a charming and highly individual period home, originally dating back to the 1700s and later extended to create a wonderfully versatile living space. Blending historic character with artistic touches and a generous garden complete with orchard and beck, this is a propert...
Property Oracle says ..
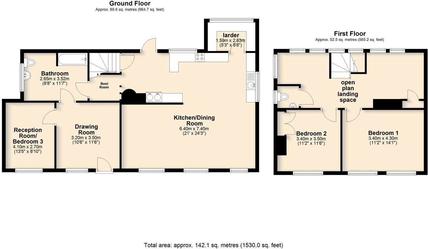
This is a detached period property located in the village of Thorndon, Suffolk. The house features three bedrooms and three bathrooms. The property includes a large garden with mature trees and several outbuildings. While the house retains much of its original character, it would benefit from some modernisation. The nearest primary school requires improvement, but Hartismere School, which is rated ‘Outstanding’, is within a reasonable distance.
Therefore, we give this property 6 / 10. *Disclaimer: This is our option and does constitute a recommendation or financial advice. Do your own research. *
- Price
- 6
- Condition
- 5
- Location
- 7
- Land
- 8
- Bedrooms
- 3
- Bathrooms
- 3
The heatmap indicates the level of crime in the area. The color of the heatmap indicates the crime severity and recency.
Metrics Year-on-Year
- Average area value
- 493,441.00 £Increased by 6.32 %
- Average area rental value
- 1,008.00 £/moDecreased by 18.84 %
- Est rental Yield
- 2.45 %Decreased by 23.68 %
- Crime Rate
- 0.00 %
Agent Activity
TW Gaze created the listing.
Nearby Schools
| Name | Type | Ofsted | Distance |
|---|---|---|---|
| Thorndon Church Of England Voluntary Controlled Primary School | Voluntary Controlled School | Requires improvement | 1.02 KM |
| Wetheringsett Manor School | Other Independent Special School | 3.15 KM | |
| Occold Primary School | Academy Converter | 3.58 KM | |
| Wetheringsett Church Of England Primary School | Academy Converter | 3.59 KM | |
| Hartismere School | Academy Converter | Outstanding | 4.25 KM |
Images
Nearby Transport
| Name | NLC | TLC | Distance |
|---|---|---|---|
| Diss | 7348 | DIS | 9.80 KM |
Nearby Listings
| Address | Price | Type | Score | Distance |
|---|---|---|---|---|
| The Street, Thorndon | £ 685,000 | BUY | 6 / 10 | 0.00 KM |
| Stanwell Green, Thorndon, Eye, IP23 | £ 430,000 | BUY | Unknown | 0.21 KM |
| Soers Close, Thorndon, IP23 | £ 500,000 | BUY | 6 / 10 | 0.26 KM |
| Stanwell Green, Thorndon | £ 425,000 | BUY | 6 / 10 | 0.33 KM |
| Stoke Road, Thorndon - IP23 7JG | £ 595,000 | BUY | 7 / 10 | 0.41 KM |
Nearby Properties
| Address | Price | Distance |
|---|---|---|
| Three Ways | £ 260,000 | 0.01 KM |
| The Barns | £ 825,000 | 0.01 KM |
| Cragside | £ 385,000 | 0.01 KM |
| Pendlestone | £ 377,500 | 0.01 KM |
| Willow Cottage | £ 190,000 | 0.01 KM |