Coopers says ..
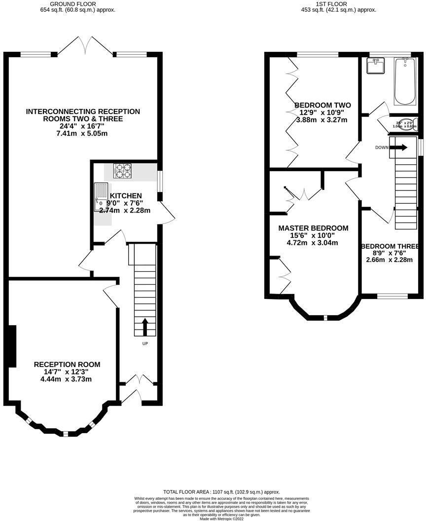
This wonderful three bedroom detached home offers buyers a chance to purchase this dream property which comes to the market in a fantastic condition and has been extended to the rear to maximise the living space. The property, located on Angus Drive, is just short walk away from tube links and hi...
Property Oracle says ..
Therefore, we give this property 7 / 10. *Disclaimer: This is our option and does constitute a recommendation or financial advice. Do your own research. *
- Price
- 6
- Condition
- 7
- Location
- 8
- Land
- 7
- Bedrooms
- 3
- Bathrooms
- 1
- Sqft (est)
- 1,013.00
The heatmap indicates the level of crime in the area. The color of the heatmap indicates the crime severity and recency.
Metrics Year-on-Year
- Average area value
- 588,333.00 £Increased by 17.78 %
- Est sale value
- 711,126.00 £Increased by 18.78 %
- Average area rental value
- 2,068.00 £/moIncreased by 5.78 %
- Est letting value
- 2,026.00 £/moUnchanged by 0.00 %
- Est rental Yield
- 4.22 %Decreased by 10.21 %
- Crime Rate
- 6.00 %Unchanged by 0.00 %
from 499,509.00 £
from 598,683.00 £
from 1,955.00 £/mo
from 2,026.00 £/mo
from 4.70 %
from 6.00 %
Agent Activity
Coopers created the listing.
Nearby Schools
| Name | Type | Ofsted | Distance |
|---|---|---|---|
| St Swithun Wells Catholic Primary School | Voluntary Aided School | Outstanding | 0.65 KM |
| Deanesfield Primary School | Community School | Good | 0.66 KM |
| South Ruislip Children'S Centre | Children's Centre | 0.66 KM | |
| Queensmead School | Academy Converter | 0.85 KM | |
| Bourne Primary School | Community School | Good | 0.90 KM |
Images
Nearby Streets
| Name | Average Price | Average Sqft | Distance |
|---|---|---|---|
| Cat Alley | £ 0 | 0 | 0.00 KM |
| West Mead | £ 320,000 | 0 | 0.00 KM |
| Whitby Service Road | £ 535,000 | 0 | 0.00 KM |
| Nairn Road | £ 0 | 0 | 0.00 KM |
| Broadhurst Gardens | £ 0 | 0 | 0.00 KM |
Nearby Transport
| Name | NLC | TLC | Distance |
|---|---|---|---|
| South Ruislip | 3057 | SRU | 0.48 KM |
| Northolt Park | 1478 | NLT | 4.11 KM |
| West Ruislip | 3059 | WRU | 4.69 KM |
| Greenford | 3136 | GFD | 5.95 KM |
| Hatch End | 1398 | HTE | 6.28 KM |
Nearby Listings
| Address | Price | Type | Score | Distance |
|---|---|---|---|---|
| Angus Drive, Ruislip, HA4 | £ 775,000 | BUY | 7 / 10 | 0.00 KM |
| The Croft, Ruislip | £ 650,000 | BUY | 7 / 10 | 0.04 KM |
| Angus Drive, Ruislip | £ 700,000 | BUY | 6 / 10 | 0.10 KM |
| Rydal Way, Ruislip, HA4 | £ 375,000 | BUY | 6 / 10 | 0.11 KM |
| Rydal Way, Ruislip, HA4 | £ 375,000 | BUY | Unknown | 0.15 KM |
Nearby Properties
| Address | Price | Distance |
|---|---|---|
| 28 Angus Drive | £ 590,000 | 0.01 KM |
| 32 Angus Drive | £ 310,000 | 0.01 KM |
| 38 Angus Drive | £ 550,000 | 0.01 KM |
| 36 Angus Drive | £ 350,000 | 0.01 KM |
| 54 Angus Drive | £ 249,995 | 0.01 KM |