GA
Gisbourne Drive, Chapel-En-Le-Frith, High Peak
By Gascoigne Halman
£ 347,995
Reviews
3 out of 5 stars
Gascoigne Halman says ..
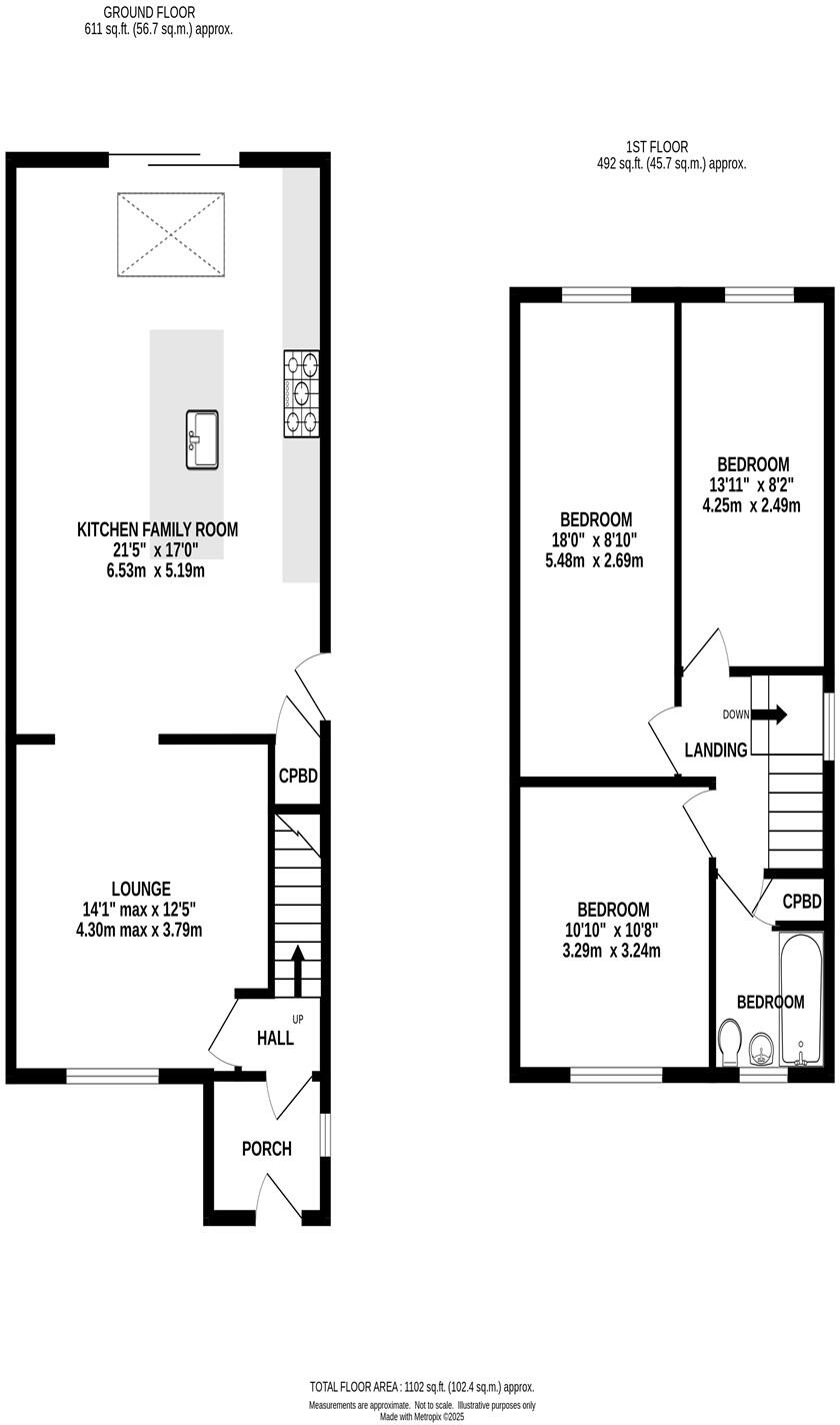
A stunning newly refurbished and significantly extended THREE DOUBLE BEDROOM detached home in a popular location. The property has undergone an impressive program of refurbishment by the current owners to create a fantastic modern family home. This includes a rear, two storey extension making all...
Property Oracle says ..
Therefore, we give this property 7 / 10. *Disclaimer: This is our option and does constitute a recommendation or financial advice. Do your own research. *
- Price
- 6
- Condition
- 8
- Location
- 7
- Land
- 7
- Bedrooms
- 3
- Bathrooms
- 1
- Sqft (est)
- 930.00
The heatmap indicates the level of crime in the area. The color of the heatmap indicates the crime severity and recency.
Metrics Year-on-Year
- Average area value
- 334,167.00 £Increased by 24.23 %
- Est sale value
- 239,010.00 £Decreased by 19.44 %
- Average area rental value
- 1,252.00 £/moIncreased by 4.33 %
- Est letting value
- 0.00 £/moDecreased by 100.00 %
- Est rental Yield
- 4.50 %Decreased by 15.89 %
- Crime Rate
- 11.00 %Unchanged by 0.00 %
from 269,000.00 £
from 296,670.00 £
from 1,200.00 £/mo
from 930.00 £/mo
from 5.35 %
from 11.00 %
Agent Activity
Gascoigne Halman marked this listing as sold.
Gascoigne Halman created the listing.
Nearby Schools
| Name | Type | Ofsted | Distance |
|---|---|---|---|
| Chapel-En-Le-Frith High School | Community School | Good | 0.62 KM |
| Chapel-En-Le-Frith Cofe Vc Primary School | Voluntary Controlled School | Good | 1.15 KM |
| Chinley Primary School | Foundation School | Good | 2.69 KM |
| Combs Infant School | Community School | Outstanding | 3.00 KM |
| Peak School | Academy Special Converter | 3.09 KM |
Images
Nearby Streets
| Name | Average Price | Average Sqft | Distance |
|---|---|---|---|
| The Hawthorns | £ 264,950 | 0 | 0.00 KM |
| Station Road | £ 0 | 0 | 0.00 KM |
| The Rushes | £ 252,498 | 0 | 0.00 KM |
| Sycamore Road | £ 0 | 0 | 0.00 KM |
| Cromwell Avenue | £ 0 | 0 | 0.00 KM |
Nearby Transport
| Name | NLC | TLC | Distance |
|---|---|---|---|
| Chapel-En-Le-Frith | 2762 | CEF | 0.58 KM |
| Dove Holes | 2766 | DVH | 3.55 KM |
| Chinley | 2823 | CLY | 3.95 KM |
| Buxton | 2946 | BUX | 6.29 KM |
| Whaley Bridge | 2772 | WBR | 7.63 KM |
Nearby Listings
| Address | Price | Type | Score | Distance |
|---|---|---|---|---|
| Gisbourne Drive, Chapel-En-Le-Frith, High Peak | £ 347,995 | BUY | 7 / 10 | 0.00 KM |
| Long Lane, Chapel-En-Le-Frith, High Peak | £ 385,000 | BUY | 8 / 10 | 0.01 KM |
| Gisbourne Drive, Chapel-En-Le-Frith, SK23 | £ 290,000 | BUY | Unknown | 0.04 KM |
| Rowton Grange Road, Chapel-En-Le-Frith, SK23 | £ 399,950 | BUY | 7 / 10 | 0.06 KM |
| Long Lane, Chapel-En-Le-Frith, SK23 | £ 285,000 | BUY | Unknown | 0.09 KM |
Nearby Properties
| Address | Price | Distance |
|---|---|---|
| 3 Gisbourne Drive | £ 180,000 | 0.06 KM |
| 2 Alston Road | £ 161,000 | 0.06 KM |
| 7 Gisbourne Drive | £ 163,000 | 0.06 KM |
| 14 Alston Road | £ 275,000 | 0.06 KM |
| 6 Gisbourne Drive | £ 166,000 | 0.06 KM |