Chestnut Road, Alresford, CO7
By Town & Country Residential
£ 350,000
Reviews
3 out of 5 stars
Town & Country Residential says ..
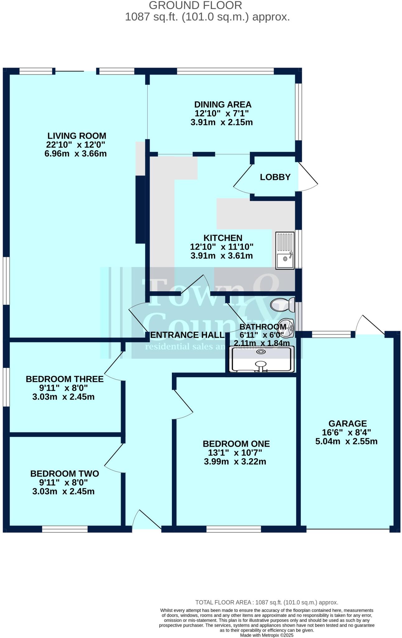
CHAIN FREE A great opportunity to acquire this extended three bedroom detached bungalow located in a favourable position close to local shops and Alresford's main line railway station. This generously sized bungalow has undergone a rear extension, allowing for a larger than average living room ...
Property Oracle says ..
This is a three-bedroom bungalow located on Chestnut Road in Alresford, Essex. The property is listed for £350,000 by Town & Country Residential. The bungalow offers 1,087.16 sqft of living space and includes a garden. While the location benefits from proximity to local amenities and transportation, the property appears to be in need of renovation, which is reflected in the condition score. The price seems reasonable given the size and location.
Therefore, we give this property 6 / 10. *Disclaimer: This is our option and does constitute a recommendation or financial advice. Do your own research. *
- Price
- 7
- Condition
- 5
- Location
- 7
- Land
- 7
- Bedrooms
- 3
- Bathrooms
- 1
- Sqft (est)
- 1,087.16
The heatmap indicates the level of crime in the area. The color of the heatmap indicates the crime severity and recency.
Metrics Year-on-Year
- Average area value
- 350,323.00 £Decreased by 1.18 %
- Est sale value
- 468,565.96 £Increased by 20.73 %
- Average area rental value
- 1,334.00 £/moDecreased by 2.49 %
- Est letting value
- 1,087.16 £/moUnchanged by 0.00 %
- Est rental Yield
- 4.57 %Decreased by 1.30 %
- Crime Rate
- 20.00 %Unchanged by 0.00 %
Agent Activity
Town & Country Residential created the listing.
Nearby Schools
| Name | Type | Ofsted | Distance |
|---|---|---|---|
| Alresford Primary School | Community School | Good | 0.68 KM |
| Market Field School | Academy Special Converter | Good | 2.70 KM |
| Millfields Primary School | Foundation School | Outstanding | 3.36 KM |
| Elmstead Primary School | Foundation School | Good | 3.39 KM |
| Colne Community School And College (Secondary And 16 To 19 Provision) | Academy Converter | 4.59 KM |
Images
Nearby Streets
| Name | Average Price | Average Sqft | Distance |
|---|---|---|---|
| High Elms | £ 310,000 | 0 | 0.00 KM |
| Ash Road | £ 0 | 0 | 0.00 KM |
| St Andrews Close | £ 497,000 | 0 | 0.00 KM |
Nearby Transport
| Name | NLC | TLC | Distance |
|---|---|---|---|
| Alresford (Essex) | 6847 | ALR | 0.44 KM |
| Wivenhoe | 6860 | WIV | 4.92 KM |
| Great Bentley | 6855 | GRB | 7.15 KM |
| Hythe (Essex) | 6851 | HYH | 8.72 KM |
Nearby Listings
| Address | Price | Type | Score | Distance |
|---|---|---|---|---|
| Chestnut Road, Alresford, CO7 | £ 350,000 | BUY | 6 / 10 | 0.00 KM |
| Chestnut Road, Alresford, Colchester, CO7 | £ 350,000 | BUY | 7 / 10 | 0.05 KM |
| Chestnut Road, Alresford, Colchester, Essex, CO7 | £ 350,000 | BUY | 6 / 10 | 0.05 KM |
| Coppice Road, Alresford, Colchester, CO7 | £ 340,000 | BUY | 7 / 10 | 0.08 KM |
| Alresford, Colchester | £ 310,000 | BUY | 7 / 10 | 0.09 KM |
Nearby Properties
| Address | Price | Distance |
|---|---|---|
| 2 Chestnut Road | £ 235,000 | 0.06 KM |
| 5 Chestnut Road | £ 207,000 | 0.06 KM |
| Floral Cottage | £ 350,000 | 0.07 KM |
| Tenpenny Farm Cottage | £ 236,000 | 0.07 KM |
| Pantiles | £ 182,500 | 0.07 KM |