2, 1 Sion Hill Place, Bath, Somerset, BA1
SA

2, 1 Sion Hill Place, Bath, Somerset, BA1

By Savills New Homes

£ 1,800,000

Reviews

4 out of 5 stars

Savills New Homes says ..

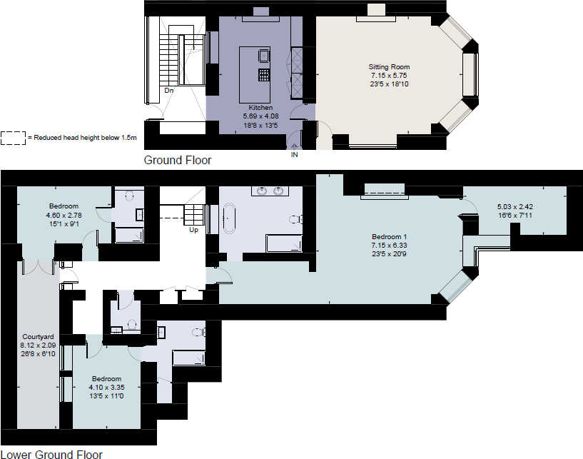
1 Sion Hill Place, a superb and comprehensive redevelopment of an important Grade 1 listed double fronted Georgian property in Bath

Property Oracle says ..

The property is located in the Lansdown area of Bath, known for its affluent residential character and proximity to excellent schools and transportation links. The images showcase a beautifully renovated property with modern amenities within a period building. The property benefits from a private garden, visible in several images. While the exact square footage is not provided, the list price of £1,800,000 appears high compared to the area average of £607,770, and the average price per sqft of £6.00. However, considering the property’s apparent high-quality renovation, desirable location, and inclusion of a garden, the price may be justified within the context of the local market. More information on square footage would allow a more precise assessment of value.

Therefore, we give this property 8 / 10. *Disclaimer: This is our option and does constitute a recommendation or financial advice. Do your own research. *

Price
7
Condition
9
Location
9
Land
7
Bedrooms
3
Bathrooms
3

The heatmap indicates the level of crime in the area. The color of the heatmap indicates the crime severity and recency.

Metrics Year-on-Year

Average area value
411,214.00 £
Decreased by 39.25 %
from 676,899.00 £
Average area rental value
1,876.00 £/mo
Increased by 11.40 %
from 1,684.00 £/mo
Est rental Yield
5.47 %
Increased by 82.94 %
from 2.99 %
Crime Rate
0.00 %
from 0.00 %

Agent Activity

  • Savills New Homes created the listing.

Nearby Schools

NameTypeOfstedDistance
Kingswood Preparatory SchoolOther Independent School0.13 KM
Kingswood SchoolOther Independent School0.55 KM
Royal High School GdstOther Independent School0.83 KM
St Andrew'S Church SchoolAcademy Converter0.93 KM
St Stephens Church SchoolAcademy Converter1.28 KM

Images

Sion Hill Place Sion Hill Place 1 Sion Hill Place 1 Sion Hill Place Sion Hill Place Sion Hill Place Sion Hill Place Sion Hill Place 1 Sion Hill Place Picture No. 28 Picture No. 40 Picture No. 29 Picture No. 33 Picture No. 34 Picture No. 32 Picture No. 35 Picture No. 30 Picture No. 31 Picture No. 36 Picture No. 37 Picture No. 39 Picture No. 38

Nearby Streets

NameAverage PriceAverage SqftDistance
Northfields £ 000.00 KM
Cow Lane £ 000.00 KM
The Shrubbery £ 000.00 KM
Upper Church Street £ 000.00 KM
Richmond Close £ 000.00 KM

Nearby Transport

NameNLCTLCDistance
Oldfield Park3219OLF1.93 KM
Bath Spa3271BTH2.54 KM
Freshford3344FFD9.83 KM

Nearby Listings

AddressPriceTypeScoreDistance
2, 1 Sion Hill Place, Bath, Somerset, BA1 £ 1,800,000BUY8 / 100.00 KM
1, 1 Sion Hill Place, Bath, Somerset, BA1 £ 995,000BUY8 / 100.00 KM
4, 1 Sion Hill Place, Bath, Somerset, BA1 £ 1,125,000BUY6 / 100.00 KM
Sion Hill Place, Bath, Somerset, BA1 £ 595,000BUY8 / 100.02 KM
Sion Hill Place, Bath £ 650,000BUY7 / 100.05 KM

Nearby Properties

AddressPriceDistance
4 Sion Hill Place £ 495,0000.01 KM
2a Sion Hill Place £ 1,365,0000.01 KM
7 Laggan Gardens £ 1,150,0000.13 KM
Lime Tree Lodge £ 2,150,0000.15 KM
The Wight House £ 803,0000.15 KM