The Cairn, High Street, Aberlady, EH32 0RA
MC

The Cairn, High Street, Aberlady, EH32 0RA

By McDougall McQueen

£ 245,000

Reviews

3 out of 5 stars

McDougall McQueen says ..

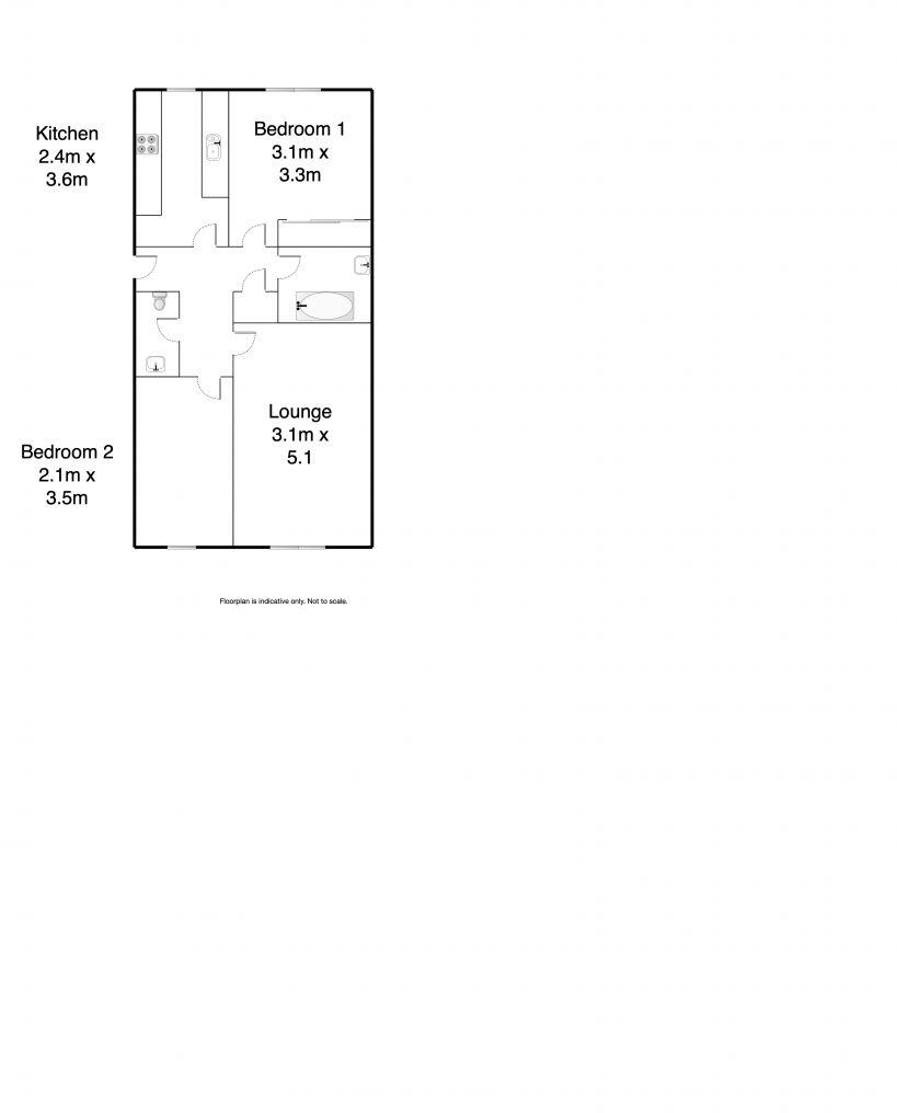
Set in the heart of Aberlady, this bright and spacious two bedroom main door flat enjoys far-reaching views towards Aberlady Bay and the Fife coastline. The property offers generous accommodation, excellent natural light and a large south facing garden, all positioned within one of East Lothian's...

Property Oracle says ..

This is a charming two-bedroom flat located on the High Street in Aberlady. The property features a well-maintained interior, a modern bathroom, and a generously sized garden with a shed. While some aspects of the property could benefit from updating, it is generally in good condition and offers a comfortable living space. The location in a desirable coastal village, combined with the outdoor space and reasonable price, makes it an attractive option for potential buyers. The property is conveniently located near local amenities and transportation links, enhancing its appeal.

Therefore, we give this property 7 / 10. *Disclaimer: This is our option and does constitute a recommendation or financial advice. Do your own research. *

Price
8
Condition
7
Location
7
Land
8
Bedrooms
2
Bathrooms
1

The heatmap indicates the level of crime in the area. The color of the heatmap indicates the crime severity and recency.

Metrics Year-on-Year

Average area value
776,250.00 £
Increased by 102.63 %
from 383,083.00 £
Average area rental value
1,000.00 £/mo
Decreased by 13.04 %
from 1,150.00 £/mo
Est rental Yield
1.55 %
Decreased by 56.94 %
from 3.60 %
Crime Rate
0.00 %
from 0.00 %

Agent Activity

  • McDougall McQueen created the listing.

Images

Primary Property Image Property Image 2 Property Image 8 Property Image 9 Property Image 7 Property Image 10 Property Image 11 Property Image 3 Property Image 4 Property Image 5 Property Image 6 Property Image 12 Property Image 13 Property Image 14 Property Image 15 Property Image 16 Property Image 17 Property Image 18

Nearby Streets

NameAverage PriceAverage SqftDistance
Sinclair Court £ 000.00 KM
Rig Street £ 000.00 KM
Mair End £ 000.00 KM
Elcho Terrace £ 260,00000.00 KM
Gosford Park £ 490,00000.00 KM

Nearby Transport

NameNLCTLCDistance
Longniddry9354LND4.91 KM
Drem9317DRM8.05 KM

Nearby Listings

AddressPriceTypeScoreDistance
The Cairn, High Street, Aberlady, EH32 0RA £ 245,000BUY7 / 100.00 KM
Sinclair Court, Aberlady, Longniddry, East Lothian £ 275,000BUY6 / 100.04 KM
7 The Maltings, Seawynd, Aberlady, EH32 0SD £ 220,000BUY7 / 100.12 KM
31a, Rig Street, Aberlady, East Lothian, EH32 0RP £ 320,000BUYUnknown0.14 KM
24 Back Lane, Aberlady, EH32 0RU £ 285,000BUY7 / 100.15 KM