Gloucester Avenue, Grimsby, DN34 5BW
By Canters
£ 189,950
Reviews
3 out of 5 stars
Canters says ..
A Traditional Bay Fronted 1930s Semi-Detached House found within this highly regarded and much sought after residential area.
Property Oracle says ..
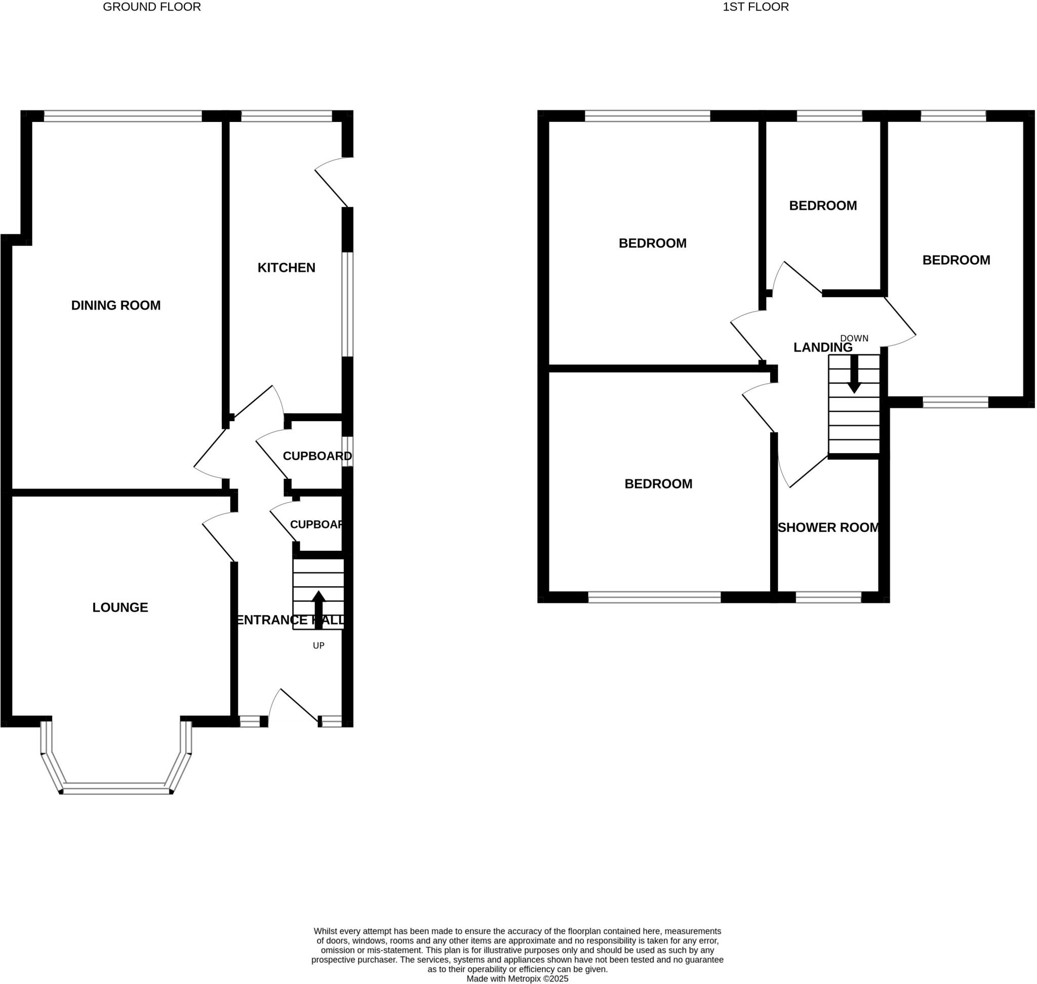
The property is a 4-bedroom semi-detached house located on Gloucester Avenue in Grimsby, North East Lincolnshire. The list price is £189,950. The property appears to be in good condition, with a recently updated bathroom visible in the provided photos. The kitchen also appears well-maintained, although the style may be considered dated by some buyers. The rest of the house shows a consistent level of upkeep. There is evidence of a garden, which appears to be of a reasonable size for a semi-detached property in this area. The average house price in the area is £269,233, significantly higher than the list price of this property. However, the average price per square foot is £324, and this property is 1260 sqft. Considering the property’s condition, the presence of a garden, and its location, the list price of £189,950 appears to be relatively reasonable, potentially representing good value for money, especially when compared to other similar properties in the area. Nearby properties on Laceby Road, for example, show a range of prices between £110,000 and £160,000 for semi-detached houses. The property’s location offers proximity to several schools, with Oasis Academy Nunsthorpe rated as “Good” by Ofsted. Transportation links are also reasonably accessible, with Grimsby Town train station within a short distance. Based on the images, the property could be tagged as ‘Traditional’.
Therefore, we give this property 7 / 10. *Disclaimer: This is our option and does constitute a recommendation or financial advice. Do your own research. *
- Price
- 8
- Condition
- 8
- Location
- 7
- Land
- 7
- Bedrooms
- 4
- Bathrooms
- 1
- Sqft (est)
- 1,260.00
The heatmap indicates the level of crime in the area. The color of the heatmap indicates the crime severity and recency.
Metrics Year-on-Year
- Average area value
- 279,877.00 £Decreased by 1.23 %
- Est sale value
- 462,420.00 £Increased by 21.12 %
- Average area rental value
- 1,053.00 £/moDecreased by 7.39 %
- Est letting value
- 1,260.00 £/moUnchanged by 0.00 %
- Est rental Yield
- 4.51 %Decreased by 6.43 %
- Crime Rate
- 2.00 %Unchanged by 0.00 %
Agent Activity
Canters created the listing.
Nearby Schools
| Name | Type | Ofsted | Distance |
|---|---|---|---|
| Ormiston Maritime Academy | Academy Converter | Requires improvement | 0.35 KM |
| Tec Partnership | Further Education | 0.39 KM | |
| Oasis Academy Nunsthorpe | Academy Sponsor Led | Good | 0.47 KM |
| Franklin College | Further Education | Good | 0.77 KM |
| Nunsthorpe And Bradley Park Children'S Centre | Children's Centre | 0.79 KM |
Images
Nearby Streets
| Name | Average Price | Average Sqft | Distance |
|---|---|---|---|
| Hereford Avenue | £ 0 | 0 | 0.00 KM |
| First Avenue | £ 0 | 0 | 0.00 KM |
| Newton Grove | £ 0 | 0 | 0.00 KM |
| The Glade | £ 0 | 0 | 0.00 KM |
| St James Court | £ 0 | 0 | 0.00 KM |
Nearby Transport
| Name | NLC | TLC | Distance |
|---|---|---|---|
| Grimsby Town | 6280 | GMB | 1.67 KM |
| Grimsby Docks | 6276 | GMD | 3.42 KM |
| Great Coates | 6275 | GCT | 4.32 KM |
| New Clee | 6289 | NCE | 4.75 KM |
| Healing | 6283 | HLI | 7.58 KM |
Nearby Listings
| Address | Price | Type | Score | Distance |
|---|---|---|---|---|
| Gloucester Avenue, Grimsby, DN34 5BW | £ 189,950 | BUY | 7 / 10 | 0.00 KM |
| Hereford Avenue, Grimsby, DN34 | £ 165,000 | BUY | 7 / 10 | 0.05 KM |
| Gloucester Avenue, Grimsby | £ 155,000 | BUY | 7 / 10 | 0.11 KM |
| First Avenue, Grimsby | £ 199,000 | BUY | Unknown | 0.21 KM |
| Hereford Avenue, Grimsby, Lincolnshire, DN34 5AJ | £ 139,000 | BUY | 6 / 10 | 0.21 KM |
Nearby Properties
| Address | Price | Distance |
|---|---|---|
| 86 Laceby Road | £ 155,000 | 0.09 KM |
| 72 Laceby Road | £ 160,000 | 0.09 KM |
| 94 Laceby Road | £ 122,000 | 0.09 KM |
| 84 Laceby Road | £ 140,000 | 0.09 KM |
| 78 Laceby Road | £ 110,000 | 0.09 KM |