Masons Sales says ..
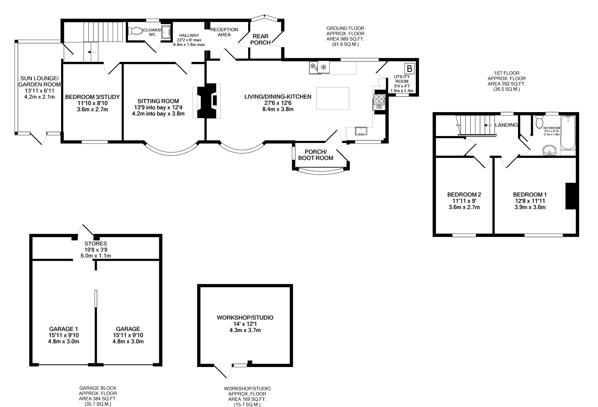
A beautifully presented and well-maintained detached character cottage located on the outskirts of popular Legbourne village, with good size gardens, driveway, detached garage and workshop/studio or home office. 2/3-bedroom accommodation featuring a spacious living and dining-kitchen, sun lounge ...
Property Oracle says ..
Legbourne is a small village in Lincolnshire, and the property is situated on Station Road. The proximity to East Wold Church of England Primary School (0.13km) is a positive for families. However, information on other amenities such as shops and transportation links is limited, impacting the overall location score.
Therefore, we give this property 8 / 10. *Disclaimer: This is our option and does constitute a recommendation or financial advice. Do your own research. *
- Price
- 8
- Condition
- 9
- Location
- 0
- Land
- 9
- Bedrooms
- 3
- Bathrooms
- 1
- Sqft (est)
- 2,175.39
The heatmap indicates the level of crime in the area. The color of the heatmap indicates the crime severity and recency.
Metrics Year-on-Year
- Average area value
- 437,242.00 £Increased by 45.04 %
- Est sale value
- 822,297.42 £Increased by 14.89 %
- Average area rental value
- 1,319.00 £/moDecreased by 47.24 %
- Est letting value
- 2,175.39 £/moDecreased by 50.00 %
- Est rental Yield
- 3.62 %Decreased by 63.62 %
- Crime Rate
- 142.00 %Unchanged by 0.00 %
Agent Activity
Masons Sales created the listing.
Nearby Schools
| Name | Type | Ofsted | Distance |
|---|---|---|---|
| East Wold Church Of England Primary School | Voluntary Controlled School | Good | 0.13 KM |
| Grimoldby Primary School | Foundation School | Good | 4.74 KM |
| St Bernard'S School | Academy Special Converter | Good | 5.68 KM |
| North Cockerington Church Of England Primary School | Voluntary Controlled School | Good | 6.05 KM |
| Lacey Gardens Junior Academy | Academy Converter | 6.44 KM |
Images
Nearby Streets
| Name | Average Price | Average Sqft | Distance |
|---|---|---|---|
| Paddock Close | £ 350,000 | 0 | 0.00 KM |
| Furze Lane | £ 0 | 0 | 0.00 KM |
| Church Walk | £ 650,000 | 0 | 0.00 KM |
| Manor Park | £ 425,000 | 0 | 0.00 KM |
| Beaumont Place | £ 0 | 0 | 0.00 KM |
Nearby Listings
| Address | Price | Type | Score | Distance |
|---|---|---|---|---|
| Legbourne LN11 8LS | £ 385,000 | BUY | 8 / 10 | 0.00 KM |
| Reston Road, Legbourne, Louth, Lincolnshire, LN11 | £ 825,000 | BUY | 7 / 10 | 0.09 KM |
| Paddock Close, Legbourne LN11 8FL | £ 435,000 | BUY | Unknown | 0.14 KM |
| Station Road, Legbourne | £ 399,950 | BUY | 7 / 10 | 0.52 KM |
| Glenmore Station Road Legbourne Louth LN11 8LL | £ 325,000 | BUY | 7 / 10 | 0.55 KM |
Nearby Properties
| Address | Price | Distance |
|---|---|---|
| Waterside | £ 155,000 | 0.28 KM |
| 2 Cowle Lane | £ 164,000 | 0.28 KM |
| Wiella | £ 228,500 | 0.32 KM |
| The Cottage | £ 115,000 | 0.32 KM |
| Stanton | £ 153,000 | 0.55 KM |