Greenwood Gardens, Strode Farm, Herne Bay, Canterbury, Kent, CT6 7FR
By Vistry Kent (Countryside)
£ 310,000
Reviews
3 out of 5 stars
Vistry Kent (Countryside) says ..
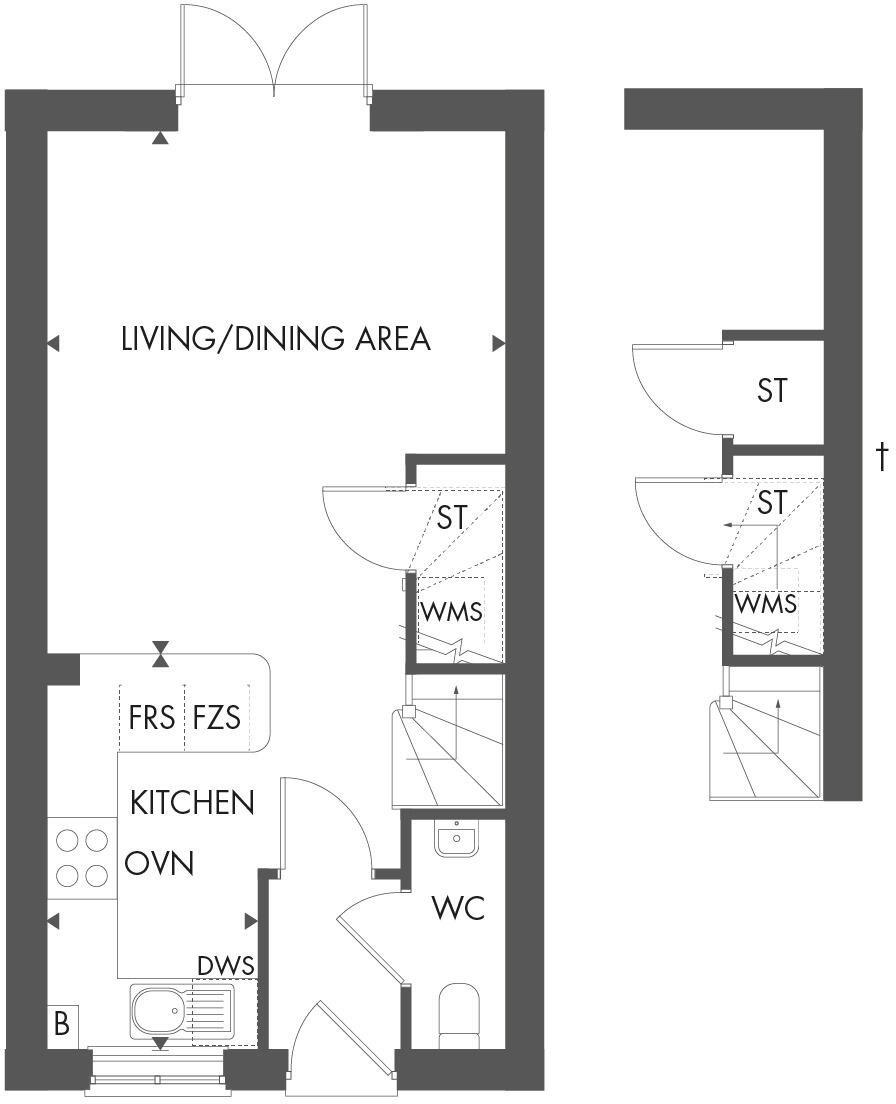
Enjoy Stamp Duty paid worth £5,500 when you reserve this home by 30th June^Modern, thoughtfully designed two bedroom home ideal for first time buyers. The ground floor boasts an open plan living/dining area perfect for entertaining, convenient WC and understairs storage. Upstairs you'...
Property Oracle says ..
This property is a new build terraced house located in Herne Bay, Kent. The location benefits from being close to several well-regarded primary schools, including Herne Church of England Junior School and Herne Church of England Infant and Nursery School, both rated as Outstanding by Ofsted. Herne Bay train station is also within reasonable distance, providing convenient access to Canterbury and other areas. The property itself appears to be in excellent condition, based on the provided images. It is a modern build with a contemporary design and finish. The plot size is small, typical for a terraced house in this area. The list price of £310,000 seems reasonable when compared to the average price per square foot in the area (£355) and considering the property’s new build status and location. However, it is important to note that the average house price in the area is higher than the list price, and this property is smaller than average. More information on the square footage of the property would allow for a more precise analysis of the price.
Therefore, we give this property 7 / 10. *Disclaimer: This is our option and does constitute a recommendation or financial advice. Do your own research. *
- Price
- 7
- Condition
- 10
- Location
- 8
- Land
- 3
- Bedrooms
- 2
- Bathrooms
- 0
- Sqft (est)
- 290.00
The heatmap indicates the level of crime in the area. The color of the heatmap indicates the crime severity and recency.
Metrics Year-on-Year
- Average area value
- 277,995.00 £Increased by 12.95 %
- Est sale value
- 73,370.00 £Decreased by 3.44 %
- Average area rental value
- 1,080.00 £/moDecreased by 3.91 %
- Est letting value
- 0.00 £/moDecreased by 100.00 %
- Est rental Yield
- 4.66 %Decreased by 14.96 %
- Crime Rate
- 3.00 %Unchanged by 0.00 %
Agent Activity
Vistry Kent (Countryside) created the listing.
Nearby Schools
| Name | Type | Ofsted | Distance |
|---|---|---|---|
| Herne Church Of England Junior School | Voluntary Aided School | Outstanding | 0.80 KM |
| Herne Church Of England Infant And Nursery School | Voluntary Controlled School | Outstanding | 1.15 KM |
| Herne Bay Infant School | Community School | Good | 1.52 KM |
| Herne Bay Junior School | Foundation School | Good | 1.57 KM |
| Fairlight Glen Independent Special School | Other Independent Special School | Good | 1.69 KM |
Images
Nearby Streets
| Name | Average Price | Average Sqft | Distance |
|---|---|---|---|
| Herne Relief Road | £ 0 | 0 | 0.00 KM |
| St. Augustines Court | £ 265,000 | 0 | 0.00 KM |
| Reynolds Drive | £ 353,000 | 0 | 0.00 KM |
| Steel Close | £ 242,000 | 0 | 0.00 KM |
| Chapel Row | £ 0 | 0 | 0.00 KM |
Nearby Transport
| Name | NLC | TLC | Distance |
|---|---|---|---|
| Herne Bay | 5174 | HNB | 1.72 KM |
| Sturry | 5029 | STU | 5.99 KM |
| Chestfield And Swalecliffe | 5200 | CSW | 6.94 KM |
| Canterbury West | 5007 | CBW | 9.83 KM |
Nearby Listings
| Address | Price | Type | Score | Distance |
|---|---|---|---|---|
| Greenwood Gardens, Strode Farm, Herne Bay, Canterbury, Kent, CT6 7FR | £ 505,000 | BUY | 6 / 10 | 0.00 KM |
| Greenwood Gardens, Strode Farm, Herne Bay, Canterbury, Kent, CT6 7FR | £ 459,995 | BUY | Unknown | 0.00 KM |
| Greenwood Gardens, Strode Farm, Herne Bay, Canterbury, Kent, CT6 7FR | £ 359,995 | BUY | 7 / 10 | 0.00 KM |
| Greenwood Gardens, Strode Farm, Herne Bay, Canterbury, Kent, CT6 7FR | £ 310,000 | BUY | 7 / 10 | 0.00 KM |
| Greenwood Gardens, Strode Farm, Herne Bay, Canterbury, Kent, CT6 7FR | £ 540,000 | BUY | 6 / 10 | 0.00 KM |
Nearby Properties
| Address | Price | Distance |
|---|---|---|
| 4 Lower Herne Road | £ 350,000 | 0.00 KM |
| 11 Lower Herne Road | £ 247,000 | 0.00 KM |
| 9 Lower Herne Road | £ 510,000 | 0.00 KM |
| 27 Lower Herne Road | £ 190,000 | 0.00 KM |
| 17 Lower Herne Road | £ 175,000 | 0.00 KM |